福岡市西区横浜2丁目の新築戸建
掲載情報更新日:2025年10月21日 次回更新予定日:2025年11月04日
- 4,498万円
- 
                    - 借入ご希望金額
 万円
-  借入期間
 年
-  借入金利
 %
-  月々のお支払い金額
 円
 
- 借入ご希望金額
※ 月々のお支払例は目安の試算となりますので、実際の金額とは異なる場合がございます。詳しくは店舗までお問合わせください。
- 福岡市西区横浜2丁目
- 
                    昭和バス『美浜停』 徒歩4分 (約320m)
 
福岡市西区横浜2丁目一戸建て | 物件情報
物件の設備
- 電気
- 上水道
- 公営水道
- 下水道
- 側溝
- プロパンガス
- 集中プロパン
- 食器洗浄乾燥機
- カウンターキッチン
- システムキッチン
- 追焚機能
- 浴室暖房
- 浴室乾燥機
- 浴室に窓
- 温水洗浄便座
- ダウンライト
- フットライト
- 省エネ給湯器
- モニタ付インターホン
- 火災警報器/報知機
- LDK18畳以上
- 和室
- 複層ガラス
- 24時間換気システム
- ウォークインクローゼット2箇所
- 床下収納
- 全居室収納
- シューズボックス
物件の特徴
- 前道6m以上
- 閑静な住宅街
- 陽当り良好
- フラット35Sに対応
物件詳細情報
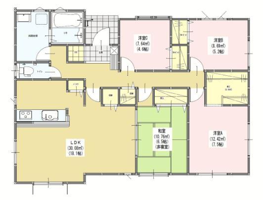
| 価格 | 4,498万円 | 間取り | 4LDK | 
|---|---|---|---|
| 物件種別 | 新築一戸建て | ||
| 所在地 | 福岡県福岡市西区横浜2丁目 | ||
| アクセス | 
 | ||
| 建物面積 | 101.63㎡ | 駐車場 | あり | 
| 築年月 | 2025年(令和7年)09月予定 | 建築確認 | 第KJH24-03893-1号 | 
| 建物構造 | 木造 1階建 | 工法 | |
| 主要採光 | バルコニー | ||
| 保証・評価 | |||
| 土地面積 | 366.69㎡(110.92坪) | 接道 | 北西側(公道)幅 約7.2m | 
| 私道 | セットバック | ||
| 地目 | 宅地 | 地勢 | |
| 権利 | 所有権 | ||
| 都市計画 | 市街化区域 | 用途地域 | 1種低層 | 
| 建ぺい/容積率 | 40% / 80% | 土地国土法 | |
| 許可番号 | 建築基準法 | ||
| 法令制限 | |||
| 小学区 | 玄洋小学校 徒歩20分 (約1600m) | 中学区 | 玄洋中学校 徒歩11分 (約840m) | 
| 現況 | 建築中 | 引渡 | 期日指定:2025年09月下旬以降 | 
| その他費用 | |||
| 備考 | |||
| 物件番号 | 4296777 | 取引態様 | 媒介 | 
取扱店舗情報
ハウスドゥ 筑前前原駅前 株式会社エフォール 店舗詳細ページへ
| 電話番号 | 092-332-8839 | 
|---|---|
| 所在地 | 〒819-1116 福岡県糸島市前原中央1丁目1-17 筑前前原駅ビル1F | 
| 営業時間 | 9:30~18:30 | 
| 定休日 | 火曜日・水曜日 | 
| 宅建免許番号 | 福岡県知事(4)第16400号 | 
| アクセス | 店舗への地図はこちら | 

来店ご予約
福岡県福岡市西区で価格が似ている物件はこちら
- 福岡県
 マイページ物件数
- 8,854件
最近見た物件
- 
                        - 
									                                     
- 
                                - 新築一戸建て
- 3,980万円
- 
                                        
                                            知立市昭和3丁目 
- 
                                        名鉄名古屋本線牛田 
 
 
- 
									                                    
- 
                        - 
									                                     
- 
                                - 新築一戸建て
- 3,698万円
- 
                                        
                                            川口市三ツ和1丁目 
- 
                                        埼玉高速鉄道鳩ヶ谷 
 
 
- 
									                                    
- 
                        - 
									                                     
- 
                                - 中古一戸建て
- 2,450万円
- 
                                        
                                            大阪市東住吉区田辺1丁目 
- 
                                        大阪市谷町線田辺 
 
 
- 
									                                    
福岡県新築一戸建て新着物件
- 
				- 
							                             
- 
						- 新築一戸建て
- 4,480万円
- 
								
									福岡市西区野方2丁目 
- 
                                福岡市七隈線橋本駅 
 
 
- 
							                            
- 
				- 
							                             
- 
						- 新築一戸建て
- 4,299万円
- 
								
									福岡市南区花畑3丁目 
- 
                                JR博多南線博多南駅 
 
 
- 
							                            
- 
				- 
							                             
- 
						- 新築一戸建て
- 2,448万円
- 
								
									大川市大字三丸 
- 
                                西鉄天神大牟田線蒲池駅 
 
 
- 
							                            
- 
				- 
							                             
- 
						- 新築一戸建て
- 2,298万円
- 
								
									大川市大字三丸 
- 
                                西鉄天神大牟田線蒲池駅 
 
 
- 
							                            
- 
				- 
							                             
- 
						- 新築一戸建て
- 2,899万円
- 
								
									北九州市小倉南区徳吉東4丁目 
- 
                                北九州高速鉄道徳力嵐山口駅 
 
 
- 
							                            
- 
				- 
							                             
- 
						- 新築一戸建て
- 3,998万円
- 
								
									福岡市東区松崎3丁目 
- 
                                西鉄天神大牟田線西鉄福岡(天神)駅 
 
 
- 
							                            
- 
				- 
							                             
- 
						- 新築一戸建て
- 4,688万円
- 
								
									福岡市西区今宿1丁目 
- 
                                JR筑肥線今宿駅 
 
 
- 
							                            
- お近くの店舗を探す
- 
            
            
            
おすすめ物件
- 
				- 
														 
- 
						- 新築一戸建て
- 3,095万円
- 
								
									福岡市東区奈多1丁目 
- 
								JR香椎線奈多 
 
 
- 
														
- 
				- 
														 
- 
						- 新築一戸建て
- 2,698万円
- 
								
									宗像市ひかりヶ丘4丁目 
- 
								JR鹿児島本線東郷 
 
 
- 
														
- 
				- 
														 
- 
						- 新築一戸建て
- 3,698万円
- 
								
									宗像市田熊6丁目 
- 
								JR鹿児島本線東郷 
 
 
- 
														
- 
				- 
														 
- 
						- 新築一戸建て
- 2,990万円
- 
								
									福岡市東区三苫6丁目 
- 
								西鉄貝塚線三苫 
 
 
- 
														
- 
				- 
														 
- 
						- 新築一戸建て
- 3,599万円
- 
								
									古賀市花見東3丁目 
- 
								JR鹿児島本線千鳥 
 
 
- 
														
- 
				- 
														 
- 
						- 新築一戸建て
- 2,998万円
- 
								
									北九州市小倉北区今町2丁目 
- 
								北九州高速鉄道城野 
 
 
- 
														
- 
				- 
														 
- 
						- 新築一戸建て
- 5,098万円
- 
								
									糟屋郡粕屋町酒殿2丁目 
- 
								JR香椎線酒殿 
 
 
- 
														
- 
				- 
														 
- 
						- 新築一戸建て
- 4,380万円
- 
								
									糟屋郡志免町王子2丁目 
- 
								福岡市空港線福岡空港 
 
 
- 
														
- 
				- 
														 
- 
						- 新築一戸建て
- 3,288万円
- 
								
									福岡市南区柏原1丁目 
- 
								西鉄天神大牟田線高宮 
 
 
- 
														
- 
				- 
														 
- 
						- 新築一戸建て
- 3,898万円
- 
								
									福岡市南区長住4丁目 
- 
								西鉄天神大牟田線高宮 
 
 
- 
														
 
     
                         
                         
                         
                    







 
                


 
                 
             
                    

 
                                            
 
                                             
                                             
                                             
                                             
                                             
                                             
                                             
                                             
                                             
                                             
                                             
                                             
                                             
                                             
                                             
                                             
                                             
                                             
                                             
                                             
                                             
                                             
                                             
                                             
                                             
                                             
                                             
                                     
                                             
                                             
                                             
                                             
                                             
						 
						