福岡市西区石丸2丁目の新築戸建
掲載情報更新日:2025年12月03日 次回更新予定日:2025年12月17日
- 4,588万円
-
- 借入ご希望金額
万円 - 借入期間
年 - 借入金利
% - 月々のお支払い金額
円
- 借入ご希望金額
※ 月々のお支払例は目安の試算となりますので、実際の金額とは異なる場合がございます。詳しくは店舗までお問合わせください。
- 福岡市西区石丸2丁目
-
福岡市空港線『姪浜』 徒歩20分 (約1600m)
JR筑肥線『姪浜』 徒歩20分 (約1600m)
福岡市西区石丸2丁目一戸建て | 物件情報
物件の設備
- 電気
- 公営水道
- 公共下水
- 都市ガス
- システムキッチン
- ユニットバス
- 浴室暖房
- 浴室乾燥機
- トイレ2箇所
- 室内洗濯機置場
- 洗髪洗面化粧台
- 人感照明センサー
- モニタ付インターホン
- 防犯カメラ
- LDK15畳以上
- 和室
- クローゼット
- 全居室収納
- バルコニー
- 南面バルコニー
物件の特徴
- 2沿線利用可
- 駅まで平坦
- 小学校徒歩10分以内
- 前道6m以上
- スーパーが近い
- 市街地が近い
- 通風良好
- 陽当り良好
- 2階建
- 平坦地
- フラット35Sに対応
物件詳細情報
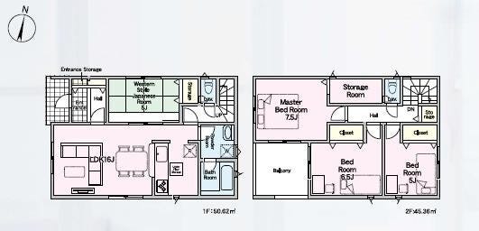
| 価格 | 4,588万円 | 間取り | 4LDK+S |
|---|---|---|---|
| 物件種別 | 新築一戸建て | ||
| 所在地 | 福岡県福岡市西区石丸2丁目 | ||
| アクセス |
|
||
| 建物面積 | 95.98㎡ | 駐車場 | あり |
| 築年月 | 2025年(令和7年)07月予定 | 建築確認 | 第R07SHC103971号 |
| 建物構造 | 木造 2階建 | 工法 | |
| 主要採光 | 南向 | バルコニー | 南向7.29㎡ |
| 保証・評価 | |||
| 土地面積 | 108.06㎡(32.68坪) | 接道 | 西側幅 約7.1m |
| 私道 | セットバック | ||
| 地目 | 宅地 | 地勢 | |
| 権利 | 所有権 |
||
| 都市計画 | 市街化区域 |
用途地域 | 1種中高 |
| 建ぺい/容積率 | 60% / 150% | 土地国土法 | |
| 許可番号 | 建築基準法 | ||
| 法令制限 | |||
| 小学区 | 石丸小学校 徒歩8分 (約600m) | 中学区 | 下山門中学校 徒歩10分 (約750m) |
| 現況 | 建築中 | 引渡 | 期日指定:2025年07月上旬以降 |
| その他費用 | |||
| 周辺環境 | 福岡市立下山門中学校 徒歩8分 (約630m) 姪浜駅 徒歩23分 (約1820m) |
||
| 備考 | |||
| 物件番号 | 4259119 | 取引態様 | 媒介 |
取扱店舗情報
ハウスドゥ 筑前前原駅前 株式会社エフォール 店舗詳細ページへ
| 電話番号 | 092-332-8839 |
|---|---|
| 所在地 | 〒819-1116 福岡県糸島市前原中央1丁目1-17 筑前前原駅ビル1F |
| 営業時間 | 9:30~18:30 |
| 定休日 | 火曜日・水曜日 |
| 宅建免許番号 | 福岡県知事(4)第16400号 |
| アクセス | 店舗への地図はこちら |

来店ご予約
福岡県福岡市西区で価格が似ている物件はこちら
- 福岡県
マイページ物件数 - 9,149件
福岡県新築一戸建て新着物件
-
-

-
- 新築一戸建て
- 4,598万円
-
福岡市東区舞松原5丁目
-
JR香椎線舞松原駅
-
-
-

-
- 新築一戸建て
- 4,498万円
-
福岡市東区舞松原5丁目
-
JR香椎線舞松原駅
-
-
-

-
- 新築一戸建て
- 3,498万円
-
北九州市小倉南区葛原本町5丁目
-
西鉄バス葛原東1丁目停
-
-
-

-
- 新築一戸建て
- 3,398万円
-
北九州市八幡西区日吉台3丁目
-
JR鹿児島本線折尾駅
-
-
-

-
- 新築一戸建て
- 4,699万円
-
福岡市西区横浜1丁目
-
JR筑肥線今宿駅
-
-
-

-
- 新築一戸建て
- 3,698万円
-
福岡市西区今宿東2丁目
-
JR筑肥線今宿駅
-
-
-

-
- 新築一戸建て
- 3,698万円
-
北九州市小倉北区下富野3丁目
-
北九州高速鉄道旦過駅
-
- お近くの店舗を探す
-
おすすめ物件
-
-

-
- 新築一戸建て
- 4,098万円
-
福岡市東区美和台5丁目
-
西鉄貝塚線三苫
-
-
-

-
- 新築一戸建て
- 2,688万円
-
北九州市八幡西区本城東6丁目
-
JR筑豊本線本城
-
-
-

-
- 新築一戸建て
- 4,380万円
-
糟屋郡志免町王子2丁目
-
福岡市空港線福岡空港
-
-
-

-
- 新築一戸建て
- 3,188万円
-
糟屋郡篠栗町田中1丁目
-
JR篠栗線篠栗
-
-
-

-
- 新築一戸建て
- 2,788万円
-
福津市西福間3丁目
-
JR鹿児島本線福間
-
-
-

-
- 新築一戸建て
- 3,198万円
-
北九州市小倉南区八幡町
-
北九州高速鉄道城野
-
-
-

-
- 新築一戸建て
- 2,588万円
-
宗像市東郷6丁目
-
JR鹿児島本線東郷
-
-
-

-
- 新築一戸建て
- 3,860万円
-
福津市宮司6丁目
-
JR鹿児島本線福間
-
-
-

-
- 新築一戸建て
- 3,388万円
-
福岡市博多区金の隈3丁目
-
西鉄天神大牟田線桜並木
-
-
-

-
- 新築一戸建て
- 4,298万円
-
北九州市小倉北区中井1丁目
-
JR鹿児島本線九州工大前
-




