福岡市西区小戸1丁目の新築戸建
掲載情報更新日:2026年04月16日 次回更新予定日:2026年04月30日
- 4,298万円
-
- 借入ご希望金額
万円 - 借入期間
年 - 借入金利
% - 月々のお支払い金額
円
- 借入ご希望金額
※ 月々のお支払例は目安の試算となりますので、実際の金額とは異なる場合がございます。詳しくは店舗までお問合わせください。
- 福岡市西区小戸1丁目
-
福岡市空港線『姪浜』 徒歩18分 (約1400m)
福岡市西区小戸1丁目一戸建て | 物件情報
生活利便の整った小戸エリアで、無理なく始める新しい暮らし。
物件の設備
- 公営水道
- 都市ガス
- 食器洗浄乾燥機
- カウンターキッチン
- システムキッチン
- 追焚機能
- 浴室乾燥機
- トイレ2箇所
- 省エネ給湯器
- モニタ付インターホン
- 火災警報器/報知機
- LDK15畳以上
- LDK20畳以上
- 複層ガラス
- ウォークインクローゼット
- 床下収納
物件の特徴
- 3階建以上
- 建築確認完了検査済証
- BELS/省エネ基準適合
物件詳細情報
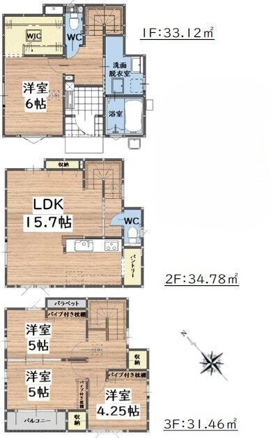
| 価格 | 4,298万円 | 間取り | 4LDK |
|---|---|---|---|
| 物件種別 | 新築一戸建て | ||
| 所在地 | 福岡県福岡市西区小戸1丁目 3号棟 | ||
| アクセス |
|
||
| 建物面積 | 9.36㎡ | 駐車場 | あり 普通:2台 |
| 築年月 | 2026年(令和8年)03月築 | 建築確認 | 第R07SHC120040号 |
| 建物構造 | 木造 3階建 | 工法 | |
| 主要採光 | バルコニー | ||
| 保証・評価 | |||
| 分譲情報 | 【販売戸数】:4戸 |
||
| 土地面積 | 97.87㎡(29.60坪) | 接道 | 南西側(公道)幅 約4.0m |
| 私道 | セットバック | ||
| 地目 | 宅地 | 地勢 | |
| 権利 | |||
| 都市計画 | 市街化区域 |
用途地域 | 1種住居 |
| 建ぺい/容積率 | 60% / 162%(一部161% 含む) | 土地国土法 | |
| 許可番号 | 建築基準法 | ||
| 法令制限 | 宅地造成工事規制区域・法22条区域・第二種20M高度地区 | ||
| 小学区 | 姪北小学校 徒歩21分 (約1610m) | 中学区 | 姪浜中学校 徒歩26分 (約2060m) |
| 現況 | 完工済 | 引渡 | 期日指定:2026年04月下旬 |
| その他費用 | |||
| 備考 | |||
| 物件番号 | 4612497 | 取引態様 | 媒介 |
取扱店舗情報
ハウスドゥ 博多山王 株式会社ハイウィング 店舗詳細ページへ
| 電話番号 | 092-402-8166 |
|---|---|
| 所在地 | 〒812-0015 福岡県福岡市博多区山王1丁目17-17-105 |
| 営業時間 | 9:30~18:00 |
| 定休日 | 水曜日、夏季休暇、年末年始 |
| 宅建免許番号 | 福岡県知事(1)第21090号 |
| アクセス | 店舗への地図はこちら |

来店ご予約
福岡県福岡市西区で価格が似ている物件はこちら
- 福岡県
マイページ物件数 - 8,410件
福岡県新築一戸建て新着物件
-
-

-
- 新築一戸建て
- 3,598万円
-
北九州市小倉南区湯川新町2丁目
-
JR日豊本線安部山公園駅
-
-
-

-
- 新築一戸建て
- 4,698万円
-
古賀市今の庄1丁目
-
JR鹿児島本線古賀駅
-
-
-

-
- 新築一戸建て
- 3,598万円
-
福岡市東区和白丘3丁目
-
JR鹿児島本線福工大前駅
-
-
-

-
- 新築一戸建て
- 4,698万円
-
古賀市今の庄1丁目
-
JR鹿児島本線古賀駅
-
-
-

-
- 新築一戸建て
- 5,148万円
-
糟屋郡粕屋町内橋東1丁目
-
JR香椎線伊賀駅
-
-
-

-
- 新築一戸建て
- 4,848万円
-
糟屋郡粕屋町内橋東1丁目
-
JR香椎線伊賀駅
-
-
-

-
- 新築一戸建て
- 5,130万円
-
古賀市美明1丁目
-
JR鹿児島本線ししぶ駅
-
- お近くの店舗を探す
-
おすすめ物件
-
-

-
- 新築一戸建て
- 2,798万円
-
福津市津屋崎8丁目
-
JR鹿児島本線福間
-
-
-

-
- 新築一戸建て
- 4,298万円
-
北九州市小倉南区山手2丁目
-
北九州高速鉄道徳力公団前
-
-
-

-
- 新築一戸建て
- 3,798万円
-
福岡市東区奈多1丁目
-
JR香椎線奈多
-
-
-

-
- 新築一戸建て
- 4,248万円
-
古賀市天神7丁目
-
JR鹿児島本線古賀
-
-
-

-
- 新築一戸建て
- 3,598万円
-
宗像市自由ヶ丘7丁目
-
JR鹿児島本線赤間
-
-
-

-
- 新築一戸建て
- 3,398万円
-
北九州市小倉南区上貫1丁目
-
JR日豊本線下曽根
-
-
-

-
- 新築一戸建て
- 4,998万円
-
糟屋郡粕屋町酒殿2丁目
-
JR香椎線酒殿
-
-
-

-
- 新築一戸建て
- 3,498万円
-
福津市西福間2丁目
-
JR鹿児島本線福間
-
-
-

-
- 新築一戸建て
- 3,388万円
-
福岡市博多区浦田2丁目
-
福岡市空港線福岡空港
-
-
-

-
- 新築一戸建て
- 3,398万円
-
北九州市小倉南区横代北町4丁目
-
JR日田彦山線石田
-
























