高槻市塚原2丁目の新築戸建
掲載情報更新日:2025年10月23日 次回更新予定日:2025年11月06日
- 4,290万円
- 
                    - 借入ご希望金額
 万円
-  借入期間
 年
-  借入金利
 %
-  月々のお支払い金額
 円
 
- 借入ご希望金額
※ 月々のお支払例は目安の試算となりますので、実際の金額とは異なる場合がございます。詳しくは店舗までお問合わせください。
- 高槻市塚原2丁目
- 
                    JR東海道線『摂津富田』 バス乗車19分  塚原口 停 徒歩10分 (約800m)
 阪急電鉄京都線『富田』 バス乗車19分 塚原口 停 徒歩10分 (約800m)
 阪急電鉄京都線『茨木市』 バス乗車15分 塚原口 停 徒歩10分 (約800m)
 
高槻市塚原2丁目一戸建て | 物件情報
◇広いガーデンスペース ◇駐車2台可能 ◇省エネ住宅 ◇LDK17帖
物件の設備
- 電気
- 上水道
- 下水道
- 都市ガス
- 食器洗浄乾燥機
- カウンターキッチン
- システムキッチン
- オートバス
- バス1坪以上
- 浴室乾燥機
- 浴室に窓
- トイレ2箇所
- 温水洗浄便座
- 洗髪洗面化粧台
- モニタ付インターホン
- LDK15畳以上
- 全室フローリング
- 全居室収納
- ハイルーフ駐車可能
物件の特徴
- 2沿線利用可
- 整備された歩道
- 緑豊かな住宅地
- 閑静な住宅街
- 周辺交通量少なめ
- 通風良好
- 陽当り良好
- 2階建
- BELS/省エネ基準適合
物件詳細情報
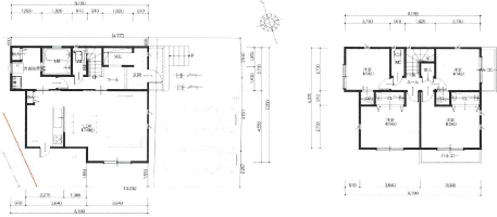
| 価格 | 4,290万円 | 間取り | 4LDK | 
|---|---|---|---|
| 物件種別 | 新築一戸建て | ||
| 所在地 | 大阪府高槻市塚原2丁目 | ||
| アクセス | 
 | ||
| 建物面積 | 公101.02㎡ | 駐車場 | なし | 
| 築年月 | 2025年(令和7年)11月予定 | 建築確認 | 第トラスト26-0348号 | 
| 建物構造 | 木造 2階建 | 工法 | |
| 主要採光 | 東向 | バルコニー | |
| 保証・評価 | |||
| 土地面積 | 公144.63㎡(43.75坪) | 接道 | |
| 私道 | セットバック | ||
| 地目 | 宅地 | 地勢 | |
| 権利 | 所有権 | ||
| 都市計画 | 市街化区域 | 用途地域 | 1種住居 | 
| 建ぺい/容積率 | 60% / 200% | 土地国土法 | |
| 許可番号 | 建築基準法 | ||
| 法令制限 | |||
| 小学区 | 阿武山小学校 徒歩11分 (約840m) | 中学区 | 阿武山中学校 徒歩20分 (約1590m) | 
| 現況 | 建築中 | 引渡 | 未記入 | 
| その他費用 | |||
| 備考 | |||
| 物件番号 | 4309904 | 取引態様 | 媒介 | 
取扱店舗情報
ハウスドゥ 阪急茨木市駅南 株式会社エムアイエム 店舗詳細ページへ
| 電話番号 | 072-697-8701 | 
|---|---|
| 所在地 | 〒567-0827 大阪府茨木市稲葉町11-8 ローズビルウチダ1F | 
| 営業時間 | 10:00~19:00 | 
| 定休日 | 水曜日、年末年始 | 
| 宅建免許番号 | 大阪府知事(1)第64466号 | 
| アクセス | 店舗への地図はこちら | 

来店ご予約
大阪府高槻市で価格が似ている物件はこちら
- 大阪府
 マイページ物件数
- 15,142件
最近見た物件
- 
                        - 
									                                     
- 
                                - 中古マンション
- 2,499万円
- 
                                        
                                            名古屋市緑区左京山 
- 
                                        名鉄名古屋本線左京山 
 
 
- 
									                                    
大阪府新築一戸建て新着物件
- 
				- 
							                             
- 
						- 新築一戸建て
- 3,280万円
- 
								
									堺市北区南花田町 
- 
                                近鉄南大阪線布忍駅 
 
 
- 
							                            
- 
				- 
							                             
- 
						- 新築一戸建て
- 4,580万円
- 
								
									堺市北区長曽根町 
- 
                                大阪市御堂筋線新金岡駅 
 
 
- 
							                            
- 
				- 
							                             
- 
						- 新築一戸建て
- 5,280万円
- 
								
									大阪市西区本田4丁目 
- 
                                大阪市中央線九条駅 
 
 
- 
							                            
- 
				- 
							                             
- 
						- 新築一戸建て
- 4,198万円
- 
								
									高槻市安岡寺町5丁目 
- 
                                JR東海道線高槻駅 
 
 
- 
							                            
- 
				- 
							                             
- 
						- 新築一戸建て
- 3,280万円
- 
								
									高槻市大塚町3丁目 
- 
                                阪急電鉄京都線高槻市駅 
 
 
- 
							                            
- 
				- 
							                             
- 
						- 新築一戸建て
- 5,480万円
- 
								
									茨木市鮎川4丁目 
- 
                                阪急電鉄京都線茨木市駅 
 
 
- 
							                            
- 
				- 
							                             
- 
						- 新築一戸建て
- 3,780万円
- 
								
									高槻市安岡寺町4丁目 
- 
                                阪急電鉄京都線高槻市駅 
 
 
- 
							                            
- お近くの店舗を探す
- 
            
            
            
おすすめ物件
- 
				- 
														 
- 
						- 新築一戸建て
- 3,980万円
- 
								
									泉大津市条南町 
- 
								南海電鉄本線松ノ浜 
 
 
- 
														
- 
				- 
														 
- 
						- 新築一戸建て
- 4,780万円
- 
								
									堺市北区新金岡町5丁 
- 
								大阪市御堂筋線新金岡 
 
 
- 
														
- 
				- 
														 
- 
						- 新築一戸建て
- 2,599万円
- 
								
									泉大津市東助松町3丁目 
- 
								南海電鉄本線北助松 
 
 
- 
														
- 
				- 
														 
- 
						- 新築一戸建て
- 3,480万円
- 
								
									茨木市橋の内1丁目 
- 
								阪急電鉄京都線総持寺 
 
 
- 
														
- 
				- 
														 
- 
						- 新築一戸建て
- 4,480万円
- 
								
									堺市北区金岡町 
- 
								大阪市御堂筋線新金岡 
 
 
- 
														
- 
				- 
														 
- 
						- 新築一戸建て
- 4,580万円
- 
								
									堺市北区長曽根町 
- 
								大阪市御堂筋線新金岡 
 
 
- 
														
- 
				- 
														 
- 
						- 新築一戸建て
- 5,180万円
- 
								
									大阪市住之江区粉浜西3丁目 
- 
								南海電鉄本線住吉大社 
 
 
- 
														
- 
				- 
														 
- 
						- 新築一戸建て
- 3,900万円
- 
								
									茨木市橋の内3丁目 
- 
								阪急電鉄京都線総持寺 
 
 
- 
														
- 
				- 
														 
- 
						- 新築一戸建て
- 2,680万円
- 
								
									和泉市池上町4丁目 
- 
								JR阪和線信太山 
 
 
- 
														
- 
				- 
														 
- 
						- 新築一戸建て
- 5,180万円
- 
								
									高槻市北昭和台町 
- 
								阪急電鉄京都線総持寺 
 
 
- 
														
 
     
                         
                         
                         
                    







 
                
 
                 
             
                    

 
                                            
 
                                             
                                             
                                             
                                             
                                             
                                             
                                             
                                             
                                             
                                             
                                             
                                             
                                             
                                             
                                             
                                     
                                             
                                             
                                             
                                             
						 
						