新築戸建 ルルーディア西条町御薗宇 12号地
掲載情報更新日:2026年04月29日 次回更新予定日:2026年05月13日
- 3,472万円
-
- 借入ご希望金額
万円 - 借入期間
年 - 借入金利
% - 月々のお支払い金額
円
- 借入ご希望金額
※ 月々のお支払例は目安の試算となりますので、実際の金額とは異なる場合がございます。詳しくは店舗までお問合わせください。
- 東広島市西条町御薗宇
-
JR山陽本線『西条』 車12分(約4.5km)
『早稲木地蔵前バス停』 徒歩10分 (約800m)
新築戸建 ルルーディア西条町御薗宇 12号地一戸建て | 物件情報
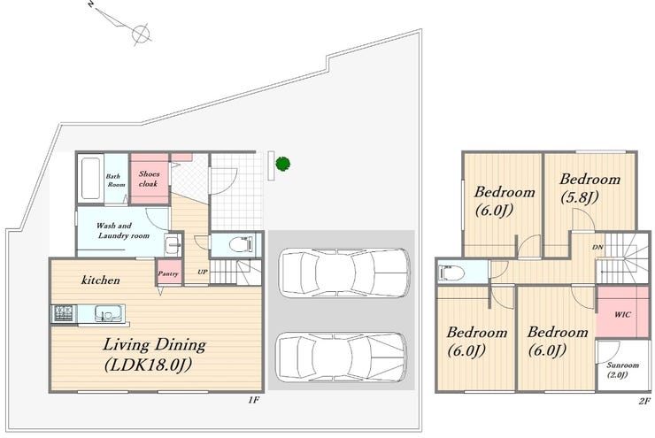
2025年8月完成!公園目の前! サンルームやランドリールームあって嬉しい間取り♪
物件の設備
- 給湯
- 食品庫
- コンロ三口
- グリル
- カウンターキッチン
- システムキッチン
- バス
- ユニットバス
- オートバス
- バス1坪以上
- 追焚機能
- 浴室暖房
- 浴室乾燥機
- 浴室に窓
- トイレ
- トイレ2箇所
- 温水洗浄便座
- 室内洗濯機置場
- 洗髪洗面化粧台
- 室内物干機
- ディンプルキー
- モニタ付インターホン
- LDK15畳以上
- LDK18畳以上
- 複層ガラス
- 全居室複層ガラス
- フローリング
- 24時間換気システム
- クローゼット
- ウォークインクローゼット
- シューズWIC
- シューズボックス
- シューズインクローク
- サンルーム
物件の特徴
- 緑豊かな住宅地
- 閑静な住宅街
- 高台に立地
- 陽当り良好
- 2階建
- 開発分譲地内
- 外壁サイディング
- 建築確認完了検査済証
- 新築
- 増改築設計図書
物件詳細情報
| 価格 | 3,472万円 | 間取り | 4LDK |
|---|---|---|---|
| 物件種別 | 新築一戸建て | ||
| 所在地 | 広島県東広島市西条町御薗宇 12 | ||
| アクセス |
|
||
| 建物面積 | 106.4㎡ | 駐車場 | あり 普通:2台 |
| 築年月 | 2025年(令和7年)08月築 | 建築確認 | |
| 建物構造 | 木造 2階建 | 工法 | |
| 主要採光 | 南西向 | バルコニー | |
| 保証・評価 | |||
| 分譲情報 | 【販売戸数】:14戸 【価格】:1,317万円 ~1,843万円 【最多価格】:1,600万円 ~1,700万円(5戸) 【土地面積】:165.11㎡ ~262.10㎡ |
||
| 土地面積 | 178.91㎡(54.12坪) | 接道 | |
| 私道 | セットバック | ||
| 地目 | 宅地 | 地勢 | |
| 権利 | |||
| 都市計画 | 調整区域 |
用途地域 | 指定無 |
| 建ぺい/容積率 | 土地国土法 | ||
| 許可番号 | 建築基準法 | ||
| 法令制限 | |||
| 小学区 | 御薗宇小学校 徒歩18分 (約1400m) | 中学区 | 松賀中学校 徒歩24分 (約1900m) |
| 現況 | 完工済 | 引渡 | 相談 |
| その他費用 | |||
| 備考 | |||
| 物件番号 | 4314531 | 取引態様 | 媒介 |
取扱店舗情報
ハウスドゥ 八本松正力 株式会社ノア・コーポレーション 店舗詳細ページへ
| 電話番号 | 082-490-3341 |
|---|---|
| 所在地 | 〒739-0132 広島県東広島市八本松町正力1089-6 |
| 営業時間 | 9:00~18:00 |
| 定休日 | 水曜日、年末年始 |
| 宅建免許番号 | 広島県知事(1)第11474号 |
| アクセス | 店舗への地図はこちら |

来店ご予約
広島県東広島市で価格が似ている物件はこちら
- 広島県
マイページ物件数 - 4,762件
最近見た物件
-
-

-
- 中古一戸建て
- 1,200万円
-
加東市社
-
JR加古川線社町
-
-
-

-
- 新築一戸建て
- 3,298万円
-
糟屋郡宇美町宇美東2丁目
-
JR香椎線宇美
-
-
-

-
- 新築一戸建て
- 3,790万円
-
松戸市小金原8丁目
-
京成電鉄松戸線常盤平
-
広島県新築一戸建て新着物件
-
-

-
- 新築一戸建て
- 3,380万円
-
広島市安芸区中野6丁目
-
JR山陽本線中野東駅
-
-
-

-
- 新築一戸建て
- 3,480万円
-
福山市多治米町1丁目
-
JR山陽本線福山駅
-
-
-

-
- 新築一戸建て
- 3,580万円
-
福山市多治米町1丁目
-
JR山陽本線福山駅
-
-
-

-
- 新築一戸建て
- 3,480万円
-
福山市多治米町1丁目
-
JR山陽本線福山駅
-
-
-

-
- 新築一戸建て
- 3,580万円
-
福山市多治米町1丁目
-
JR山陽本線福山駅
-
-
-

-
- 新築一戸建て
- 4,290万円
-
広島市安佐南区伴東2丁目
-
アストラムライン伴駅
-
-
-

-
- 新築一戸建て
- 2,780万円
-
尾道市栗原町
-
JR山陽本線尾道駅
-
- お近くの店舗を探す
-
おすすめ物件
-
-

-
- 新築一戸建て
- 2,990万円
-
福山市新涯町4丁目
-
JR山陽本線福山
-
-
-

-
- 新築一戸建て
- 3,280万円
-
福山市本庄町中3丁目
-
JR福塩線備後本庄
-
-
-

-
- 新築一戸建て
- 2,380万円
-
福山市神辺町字下御領
-
井原鉄道御領
-
-
-

-
- 新築一戸建て
- 3,090万円
-
福山市新涯町4丁目
-
JR山陽本線福山
-
-
-

-
- 新築一戸建て
- 3,380万円
-
福山市草戸町4丁目
-
JR山陽本線福山
-
-
-

-
- 新築一戸建て
- 2,890万円
-
福山市山手町3丁目
-
JR福塩線備後本庄
-
-
-

-
- 新築一戸建て
- 3,380万円
-
福山市長者町
-
JR福塩線備後本庄
-
-
-

-
- 新築一戸建て
- 3,850万円
-
福山市水呑町三新田1丁目
-
JR山陽本線福山
-
-
-

-
- 新築一戸建て
- 3,290万円
-
福山市新涯町4丁目
-
JR山陽本線福山
-


