堺市東区北野田の新築戸建
掲載情報更新日:2025年10月11日 次回更新予定日:2025年10月25日
- 3,980万円
-
- 借入ご希望金額
万円 - 借入期間
年 - 借入金利
% - 月々のお支払い金額
円
- 借入ご希望金額
※ 月々のお支払例は目安の試算となりますので、実際の金額とは異なる場合がございます。詳しくは店舗までお問合わせください。
- 堺市東区北野田
-
南海電鉄高野線『北野田』 徒歩9分 (約720m)
堺市東区北野田一戸建て | 物件情報
・駅近♪ ・人気の2階建て新築! ・駐車スペースあり♪ ・収納スペース充実の3LDK♪
◆弊社限定!◆
《オプション工事・家具・家電等プレゼントキャンペーン実施中》
・南海高野線「北野田」駅まで徒歩9分♪
・長く住みやすい2階建て♪駐車スペースあり♪
・収納スペース充実の3LDK♪
・小学校なども近く周辺生活環境充実♪
物件の設備
- 電気
- 公営水道
- 公共下水
- 都市ガス
- 浄水器
- カウンターキッチン
- システムキッチン
- オートバス
- バス1坪以上
- 浴室乾燥機
- 浴室に窓
- トイレ2箇所
- 温水洗浄便座
- 高機能トイレ
- 室内洗濯機置場
- 洗髪洗面化粧台
- 洗面所独立
- モニタ付インターホン
- LDK15畳以上
- 複層ガラス
- 全室フローリング
- ウォークインクローゼット
- 床下収納
- 全居室収納
- ハイルーフ駐車可能
物件の特徴
- 駅まで平坦
- 小学校徒歩10分以内
- スーパーが近い
- 閑静な住宅街
- 通風良好
- 陽当り良好
- 2階建
- 角地
- 平坦地
- 整形地
物件詳細情報
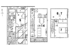
価格 | 3,980万円 | 間取り | 3LDK |
---|---|---|---|
物件種別 | 新築一戸建て | ||
所在地 | 大阪府堺市東区北野田 | ||
アクセス |
|
||
建物面積 | 公100.43㎡ | 駐車場 | あり 普通:1台 |
築年月 | 2025年(令和7年)07月築 | 建築確認 | 第KS125-0420-50625号 |
建物構造 | 木造 2階建 | 工法 | 軸組工法 |
主要採光 | バルコニー | ||
保証・評価 | |||
土地面積 | 公96.92㎡(29.31坪) | 接道 | 北側(公道)幅 約3.0m 東側(私道)幅 約3.9m |
私道 | セットバック | ||
地目 | 宅地 | 地勢 | |
権利 | 所有権 |
||
都市計画 | 市街化区域 |
用途地域 | 1種中高 |
建ぺい/容積率 | 60% / 160% | 土地国土法 | |
許可番号 | 建築基準法 | ||
法令制限 | |||
小学区 | 野田小学校 徒歩4分 (約280m) | 中学区 | 野田中学校 徒歩6分 (約450m) |
現況 | 完工済 | 引渡 | 期日指定:2025年08月下旬 |
その他費用 | |||
備考 | |||
物件番号 | 4317072 | 取引態様 | 媒介 |
取扱店舗情報
電話番号 | 072-242-4735 |
---|---|
所在地 | 〒591-8041 大阪府堺市北区東雲東町1丁6-2 市駅ハイツ101 |
営業時間 | 10:00~19:00 |
定休日 | 水曜日 |
宅建免許番号 | 大阪府知事(1)第64974号 |
アクセス | 店舗への地図はこちら |
来店ご予約
大阪府堺市東区で価格が似ている物件はこちら
- 大阪府
マイページ物件数 - 14,087件
最近見た物件
-
-
-
- 新築一戸建て
- 3,580万円
-
枚方市招提中町2丁目
-
京阪本線樟葉
-
-
-
-
- 新築一戸建て
- 3,398万円
-
枚方市杉山手3丁目
-
JR片町線長尾
-
-
-
-
- 新築一戸建て
- 5,680万円
-
大阪市住吉区帝塚山中5丁目
-
南海電鉄高野線帝塚山
-
大阪府新築一戸建て新着物件
-
-
-
- 新築一戸建て
- 5,198万円
-
高槻市昭和台町2丁目
-
阪急電鉄京都線総持寺駅
-
-
-
-
- 新築一戸建て
- 4,898万円
-
高槻市柳川町1丁目
-
阪急電鉄京都線総持寺駅
-
-
-
-
- 新築一戸建て
- 4,798万円
-
高槻市柳川町1丁目
-
阪急電鉄京都線総持寺駅
-
-
-
-
- 新築一戸建て
- 2,930万円
-
八尾市高安町南1丁目
-
近鉄大阪線高安駅
-
-
-
-
- 新築一戸建て
- 3,280万円
-
高槻市竹の内町
-
阪急電鉄京都線高槻市駅
-
-
-
-
- 新築一戸建て
- 3,980万円
-
泉大津市条南町
-
南海電鉄本線松ノ浜駅
-
-
-
-
- 新築一戸建て
- 2,980万円
-
高槻市津之江北町
-
JR東海道線高槻駅
-
- お近くの店舗を探す
-
おすすめ物件
-
-
-
- 新築一戸建て
- 5,180万円
-
大阪市住之江区粉浜西3丁目
-
南海電鉄本線住吉大社
-
-
-
-
- 新築一戸建て
- 2,380万円
-
松原市天美北3丁目
-
近鉄南大阪線河内天美
-
-
-
-
- 新築一戸建て
- 2,599万円
-
泉大津市東助松町3丁目
-
南海電鉄本線北助松
-
-
-
-
- 新築一戸建て
- 4,780万円
-
堺市北区新金岡町5丁
-
大阪市御堂筋線新金岡
-
-
-
-
- 新築一戸建て
- 4,580万円
-
堺市北区長曽根町
-
大阪市御堂筋線新金岡
-
-
-
-
- 新築一戸建て
- 4,480万円
-
大阪市住吉区庭井1丁目
-
大阪市御堂筋線あびこ
-
-
-
-
- 新築一戸建て
- 4,580万円
-
大阪市淀川区新北野3丁目
-
JR東海道線塚本
-
-
-
-
- 新築一戸建て
- 2,680万円
-
和泉市池上町4丁目
-
JR阪和線信太山
-
-
-
-
- 新築一戸建て
- 4,480万円
-
堺市北区金岡町
-
大阪市御堂筋線新金岡
-