鳥取市安長の新築戸建
掲載情報更新日:2025年10月28日 次回更新予定日:2025年11月11日
- 3,680万円
- 
                    - 借入ご希望金額
 万円
-  借入期間
 年
-  借入金利
 %
-  月々のお支払い金額
 円
 
- 借入ご希望金額
※ 月々のお支払例は目安の試算となりますので、実際の金額とは異なる場合がございます。詳しくは店舗までお問合わせください。
- 鳥取市安長
- 
                    JR山陰本線『湖山』 徒歩28分 (約2170m)
 JR山陰本線『鳥取』 徒歩39分 (約3100m)
 
鳥取市安長一戸建て | 物件情報
広々おしゃれなお家。生活に便利なエリアです。
             
        
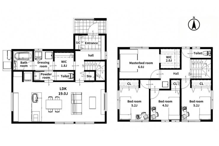
            お子様の多いご家族におすすめの4LDK。
玄関からリビングを通らず行けるトイレ、お風呂、工夫されている動線。
2階に4部屋あるのでお子様のプライベート空間も確保できます。
生活に便利なエリアでお買い物もラクラク。
エアコン1台、照明器具付きなのも嬉しいポイントです。        
物件の設備
- 電気
- オール電化
- 上水道
- 下水道
- IHクッキングヒータ
- カウンターキッチン
- システムキッチン
- バス
- 追焚機能
- トイレ2箇所
- 室内洗濯機置場
- エアコン
- 照明器具
- モニタ付インターホン
- LDK18畳以上
- 全室フローリング
- クローゼット
- ウォークインクローゼット
- 全居室収納
物件の特徴
- 前道6m以上
- 閑静な住宅街
- 2階建
物件詳細情報
| 価格 | 3,680万円 | 間取り | 4LDK | 
|---|---|---|---|
| 物件種別 | 新築一戸建て | ||
| 所在地 | 鳥取県鳥取市安長 | ||
| アクセス | 
 | ||
| 建物面積 | 108.06㎡ | 駐車場 | あり | 
| 築年月 | 2025年(令和7年)02月築 | 建築確認 | |
| 建物構造 | 木造 2階建 | 工法 | |
| 主要採光 | バルコニー | ||
| 保証・評価 | |||
| 分譲情報 | 【販売戸数】:1戸 【価格】:3,680万円 ~3,680万円 【最多価格】:3,600万円 ~3,700万円(1戸) 【土地面積】:129.43㎡ ~129.43㎡ | ||
| 土地面積 | 129.43㎡(39.15坪) | 接道 | 北側(公道)幅 約6.0m 間口 約10.00m | 
| 私道 | セットバック | ||
| 地目 | 宅地 | 地勢 | |
| 権利 | 所有権 | ||
| 都市計画 | 市街化区域 | 用途地域 | 準工業 | 
| 建ぺい/容積率 | 60% / 200% | 土地国土法 | |
| 許可番号 | 建築基準法 | ||
| 法令制限 | 景観法 | ||
| 小学区 | 城北小学校 徒歩25分 (約1930m) | 中学区 | 北中学校 徒歩44分 (約3470m) | 
| 現況 | 完工済 | 引渡 | 未記入 | 
| その他費用 | |||
| 周辺環境 | ディスカウントドラッグ コスモス安長店 徒歩3分 (約170m) ホームセンター ナンバ 徒歩4分 (約310m) エディオン新鳥取本店 徒歩4分 (約310m) ラ・ムー鳥取店 徒歩4分 (約320m) ローソン鳥取緑ヶ丘店 徒歩8分 (約580m) 城北小学校 徒歩25分 (約1930m) 鳥取北中学校 徒歩44分 (約3470m) | ||
| 備考 | |||
| 物件番号 | 4339767 | 取引態様 | 媒介 | 
取扱店舗情報
| 電話番号 | 0857-54-1455 | 
|---|---|
| 所在地 | 〒680-0903 鳥取県鳥取市南隈881番地 サウスIII101号 | 
| 営業時間 | 10:00~18:00 | 
| 定休日 | 水曜日、木曜日、祝日、年末年始 | 
| 宅建免許番号 | 鳥取県知事(1)第1434号 | 
| アクセス | 店舗への地図はこちら | 

来店ご予約
- 鳥取県
 マイページ物件数
- 444件
最近見た物件
- 
                        - 
									                                     
- 
                                - 新築一戸建て
- 2,200万円
- 
                                        
                                            八戸市根城2丁目 
- 
                                        平中通バス停 
 
 
- 
									                                    
- 
                        - 
									                                     
- 
                                - 新築一戸建て
- 2,680万円
- 
                                        
                                            福知山市字長田 
- 
                                        JR山陰本線福知山 
 
 
- 
									                                    
- 
                        - 
									                                     
- 
                                - 新築一戸建て
- 2,390万円
- 
                                        
                                            八戸市大字新井田字風浚 
- 
                                        セメント前バス停 
 
 
- 
									                                    
鳥取県新築一戸建て新着物件
- お近くの店舗を探す
- 
            
            
            
おすすめ物件
- 
				- 
														 
- 
						- 新築一戸建て
- 2,250万円
- 
								
									鳥取市卯垣2丁目 
- 
								JR山陰本線鳥取 
 
 
- 
														
- 
				- 
														 
- 
						- 新築一戸建て
- 2,890万円
- 
								
									鳥取市卯垣2丁目 
- 
								JR山陰本線鳥取 
 
 
- 
														
- 
				- 
														 
- 
						- 新築一戸建て
- 2,740万円
- 
								
									鳥取市古海 
- 
								JR山陰本線鳥取 
 
 
- 
														
- 
				- 
														 
- 
						- 新築一戸建て
- 2,840万円
- 
								
									鳥取市湖山町南1丁目 
- 
								JR山陰本線湖山 
 
 
- 
														
- 
				- 
														 
- 
						- 新築一戸建て
- 3,380万円
- 
								
									鳥取市桂見 
- 
								JR山陰本線湖山 
 
 
- 
														
- 
				- 
														 
- 
						- 新築一戸建て
- 3,240万円
- 
								
									鳥取市浜坂1丁目 
- 
								JR山陰本線鳥取 
 
 
- 
														
- 
				- 
														 
- 
						- 新築一戸建て
- 2,740万円
- 
								
									鳥取市古海 
- 
								JR山陰本線鳥取 
 
 
- 
														
- 
				- 
														 
- 
						- 新築一戸建て
- 3,480万円
- 
								
									鳥取市浜坂 
- 
								JR山陰本線鳥取 
 
 
- 
														
- 
				- 
														 
- 
						- 新築一戸建て
- 3,680万円
- 
								
									鳥取市安長 
- 
								JR山陰本線湖山 
 
 
- 
														
- 
				- 
														 
- 
						- 新築一戸建て
- 3,380万円
- 
								
									鳥取市桂見 
- 
								JR山陰本線湖山 
 
 
- 
														
 
     
                         
                         
                         
                    







 
                














 
                 
             
                    





 
						 
						