北九州市若松区藤ノ木1丁目の新築戸建
掲載情報更新日:2025年12月23日 次回更新予定日:2026年01月06日
- 2,798万円
-
- 借入ご希望金額
万円 - 借入期間
年 - 借入金利
% - 月々のお支払い金額
円
- 借入ご希望金額
※ 月々のお支払例は目安の試算となりますので、実際の金額とは異なる場合がございます。詳しくは店舗までお問合わせください。
- 北九州市若松区藤ノ木1丁目
-
JR筑豊本線『藤ノ木』 徒歩7分 (約560m)
北九州市若松区藤ノ木1丁目一戸建て | 物件情報
●藤ノ木小学校●石峯中学校●周辺環境充実●平屋●藤ノ木駅まで徒歩約7分
八幡西区・若松区の不動産は”ハウスドゥ八幡本城”へおまかせください。新築・中古・土地・マンション 種別問わずご紹介可能です。
物件の設備
- 上水道
- 公営水道
- 下水道
- 側溝
- プロパンガス
- 個別プロパン
- システムキッチン
- トイレ2箇所
- モニタ付インターホン
- LDK20畳以上
- クローゼット
- ウォークインクローゼット
- 2面バルコニー
物件の特徴
- 前道6m以上
物件詳細情報
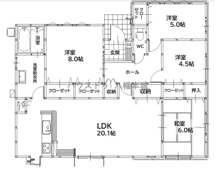
| 価格 | 2,798万円 | 間取り | 4LDK |
|---|---|---|---|
| 物件種別 | 新築一戸建て | ||
| 所在地 | 福岡県北九州市若松区藤ノ木1丁目 2号棟 | ||
| アクセス |
|
||
| 建物面積 | 101.44㎡ | 駐車場 | あり 普通:4台 |
| 築年月 | 2025年(令和7年)10月予定 | 建築確認 | 第KJH25-00636-1号 |
| 建物構造 | 木造 1階建 | 工法 | |
| 主要採光 | バルコニー | ||
| 保証・評価 | |||
| 土地面積 | 374.6㎡(113.31坪) | 接道 | 北側(公道)幅 約7.1m 間口 約5.40m |
| 私道 | セットバック | ||
| 地目 | 宅地 | 地勢 | |
| 権利 | 所有権 |
||
| 都市計画 | 市街化区域 |
用途地域 | 準工業 |
| 建ぺい/容積率 | 60% / 200% | 土地国土法 | |
| 許可番号 | 建築基準法 | ||
| 法令制限 | |||
| 小学区 | 藤木小学校 徒歩17分 (約1327m) | 中学区 | 石峯中学校 徒歩15分 (約1202m) |
| 現況 | 完工済 | 引渡 | 期日指定:2025年10月以降 |
| その他費用 | |||
| 周辺環境 | さかえ整骨院 徒歩3分 (約220m) 右田歯科 徒歩4分 (約320m) 大隈医院 徒歩6分 (約440m) 藤ノ木駅 徒歩8分 (約570m) セブンイレブン若松藤ノ木店 徒歩9分 (約690m) 若松くきのうみ郵便局 徒歩11分 (約820m) コスモス薬品古前店 徒歩12分 (約900m) 北九州市立石峯中学校 徒歩14分 (約1070m) 北九州市立藤ノ木小学校 徒歩17分 (約1330m) ジョイフル 若松店 徒歩22分 (約1740m) |
||
| 備考 | |||
| 物件番号 | 4340150 | 取引態様 | 媒介 |
取扱店舗情報
ハウスドゥ 八幡本城 株式会社Cross Road 店舗詳細ページへ
| 電話番号 | 093-647-0370 |
|---|---|
| 所在地 | 〒807-0801 福岡県北九州市八幡西区本城3453-3 |
| 営業時間 | 9:00~18:00(土曜日・日曜日は17:00まで) |
| 定休日 | 不定休 |
| 宅建免許番号 | 福岡県知事(1)第20212号 |
| アクセス | 店舗への地図はこちら |

来店ご予約
福岡県北九州市若松区で価格が似ている物件はこちら
- 福岡県
マイページ物件数 - 8,966件
福岡県新築一戸建て新着物件
-
-

-
- 新築一戸建て
- 3,498万円
-
北九州市八幡西区永犬丸南町2丁目
-
筑豊電気鉄道西山駅
-
-
-

-
- 新築一戸建て
- 4,530万円
-
福津市福間南4丁目
-
JR鹿児島本線福間駅
-
-
-

-
- 新築一戸建て
- 3,898万円
-
北九州市八幡西区日吉台3丁目
-
JR鹿児島本線折尾駅
-
-
-

-
- 新築一戸建て
- 3,598万円
-
北九州市門司区大里本町2丁目
-
JR鹿児島本線門司駅
-
-
-

-
- 新築一戸建て
- 3,398万円
-
北九州市門司区大里本町2丁目
-
JR鹿児島本線門司駅
-
-
-

-
- 新築一戸建て
- 2,899万円
-
北九州市小倉南区徳吉東4丁目
-
北九州高速鉄道徳力嵐山口駅
-
-
-

-
- 新築一戸建て
- 3,398万円
-
北九州市小倉北区高坊1丁目
-
JR日豊本線城野駅
-
- お近くの店舗を探す
-
おすすめ物件
-
-

-
- 新築一戸建て
- 4,298万円
-
北九州市小倉南区山手2丁目
-
北九州高速鉄道徳力公団前
-
-
-

-
- 新築一戸建て
- 5,990万円
-
福岡市博多区諸岡3丁目
-
JR鹿児島本線笹原
-
-
-

-
- 新築一戸建て
- 4,598万円
-
福岡市早良区賀茂2丁目
-
福岡市七隈線野芥
-
-
-

-
- 新築一戸建て
- 3,598万円
-
宗像市徳重
-
JR鹿児島本線教育大前
-
-
-

-
- 新築一戸建て
- 4,198万円
-
北九州市小倉北区三郎丸3丁目
-
北九州高速鉄道片野
-
-
-

-
- 新築一戸建て
- 3,698万円
-
福津市手光
-
JR鹿児島本線東福間
-
-
-

-
- 新築一戸建て
- 5,290万円
-
大野城市下大利3丁目
-
JR鹿児島本線水城
-
-
-

-
- 新築一戸建て
- 3,098万円
-
北九州市小倉南区津田3丁目
-
JR日豊本線下曽根
-
-
-

-
- 新築一戸建て
- 2,498万円
-
宗像市河東
-
JR鹿児島本線東郷
-
-
-

-
- 新築一戸建て
- 3,798万円
-
福岡市南区曰佐5丁目
-
JR博多南線博多南
-































住宅ローンのこと、その他購入に係る諸費用のことお気軽にご相談ください。