富山市西荒屋の新築戸建
掲載情報更新日:2025年10月30日 次回更新予定日:2025年11月13日
- 3,509万円
-
- 借入ご希望金額
万円 - 借入期間
年 - 借入金利
% - 月々のお支払い金額
円
- 借入ご希望金額
※ 月々のお支払例は目安の試算となりますので、実際の金額とは異なる場合がございます。詳しくは店舗までお問合わせください。
- 富山市西荒屋
-
『西荒屋』 徒歩2分 (約160m)
富山市西荒屋一戸建て | 物件情報
物件の設備
- オール電化
- 上水道
- 下水道
- 食器洗浄乾燥機
- IHクッキングヒータ
- コンロ三口
- カウンターキッチン
- オープンキッチン
- オートバス
- バス1坪以上
- 追焚機能
- 浴室暖房
- 浴室乾燥機
- トイレ2箇所
- 温水洗浄便座
- 洗髪洗面化粧台
- 室内物干機
- エアコン2基
- 照明器具
- ダウンライト
- 人感照明センサー
- カードキー
- ダブルロックキー
- モニタ付インターホン
- 火災警報器/報知機
- 複層ガラス
- 全室フローリング
- 24時間換気システム
- ウォークインクローゼット
物件の特徴
- 前道6m以上
- 2階建
- 外壁サイディング
物件詳細情報
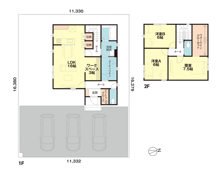
| 価格 | 3,509万円 | 間取り | 3LDK |
|---|---|---|---|
| 物件種別 | 新築一戸建て | ||
| 所在地 | 富山県富山市西荒屋 | ||
| アクセス |
|
||
| 建物面積 | 104.11㎡ | 駐車場 | あり 普通:3台 |
| 築年月 | 2025年(令和7年)10月予定 | 建築確認 | 第R07確認建築富建セ0060号 |
| 建物構造 | 木造 屋根:GL鋼板 2階建 | 工法 | |
| 主要採光 | 南向 | バルコニー | |
| 保証・評価 | |||
| 土地面積 | 208.24㎡(62.99坪) | 接道 | 東側(公道)幅 約6.0m 間口 約11.30m |
| 私道 | セットバック | ||
| 地目 | 宅地 | 地勢 | 平坦 |
| 権利 | 所有権 |
||
| 都市計画 | 市街化区域 |
用途地域 | 準工業 |
| 建ぺい/容積率 | 60% / 200% | 土地国土法 | |
| 許可番号 | 建築基準法 | ||
| 法令制限 | |||
| 小学区 | 中学区 | ||
| 現況 | 建築中 | 引渡 | 期日指定:2025年10月末以降 |
| その他費用 | |||
| 周辺環境 | 富山黒崎郵便局 徒歩29分 (約2280m) バロー 黒瀬店 徒歩30分 (約2400m) アピタ 富山店 徒歩41分 (約3210m) 新保なかよし認定こども園 徒歩31分 (約2480m) 興南中学校 徒歩36分 (約2850m) |
||
| 備考 | 景観法による規制あり、大規模集客施設制限地区、農用地土壌汚染対策地域、富山空港における空域制限地区 | ||
| 物件番号 | 4340792 | 取引態様 | 媒介 |
取扱店舗情報
| 電話番号 | 076-461-4955 |
|---|---|
| 所在地 | 〒939-8261 富山県富山市萩原241-1 |
| 営業時間 | 9:30~18:00 |
| 定休日 | 火曜日、水曜日、年末年始 |
| 宅建免許番号 | 富山県知事(1)第3193号 |
| アクセス | 店舗への地図はこちら |

来店ご予約
富山県富山市で価格が似ている物件はこちら
- 富山県
マイページ物件数 - 872件
富山県新築一戸建て新着物件
- お近くの店舗を探す
-
おすすめ物件
-
-

-
- 新築一戸建て
- 2,980万円
-
富山市本郷町
-
富山地鉄不二越上滝線上堀
-
-
-

-
- 新築一戸建て
- 2,080万円
-
富山市犬島4丁目
-
富山地鉄富山港線犬島新町
-
-
-

-
- 新築一戸建て
- 3,090万円
-
高岡市駅南3丁目
-
JR城端線高岡
-
-
-

-
- 新築一戸建て
- 2,590万円
-
高岡市野村
-
万葉線旭ヶ丘
-
-
-

-
- 新築一戸建て
- 2,180万円
-
富山市犬島4丁目
-
富山地鉄富山港線犬島新町
-
-
-

-
- 新築一戸建て
- 2,998万円
-
富山市大泉
-
富山地鉄不二越上滝線大泉
-
-
-

-
- 新築一戸建て
- 2,590万円
-
富山市藤木
-
富山地鉄本線越中荏原
-
-
-

-
- 新築一戸建て
- 3,980万円
-
富山市婦中町田島
-
JR高山本線婦中鵜坂
-
-
-

-
- 新築一戸建て
- 2,490万円
-
高岡市駅南2丁目
-
JR氷見線高岡
-
-
-

-
- 新築一戸建て
- 4,080万円
-
富山市中冨居
-
あいの風とやま鉄道新富山口
-










