富山市中市2丁目の新築戸建
掲載情報更新日:2026年04月28日 次回更新予定日:2026年05月12日
- 2,580万円
-
- 借入ご希望金額
万円 - 借入期間
年 - 借入金利
% - 月々のお支払い金額
円
- 借入ご希望金額
※ 月々のお支払例は目安の試算となりますので、実際の金額とは異なる場合がございます。詳しくは店舗までお問合わせください。
- 富山市中市2丁目
-
富山地鉄不二越上滝線『大泉』 徒歩14分 (約1100m)
富山地方鉄道バス『山室小学校前バス停』 徒歩3分 (約170m)
富山市中市2丁目一戸建て | 物件情報
【完成→残り2棟】山室小学校まで徒歩約2分!広々バルコニーはプライベート空間!和室がある4LDK♪
・全3棟完成が早くも残り2棟!山室小学校まで徒歩約2分の通学安心の距離!
・和室のある生活!お子様のおむつ替え、遊び場、お昼寝に活用できます!
・広々バルコニーはプライベート空間!コーヒータイムも風に当たりながらのんびりと♪
・防犯カメラ設置!近所でトラブルや置き配トラブルがあった時も対応できます◎
物件の設備
- 電気
- オール電化
- 公営水道
- 公共下水
- IHクッキングヒータ
- コンロ三口
- カウンターキッチン
- システムキッチン
- ユニットバス
- 浴室暖房
- 浴室乾燥機
- 浴室に窓
- トイレ2箇所
- 室内洗濯機置場
- 洗髪洗面化粧台
- 人感照明センサー
- モニタ付インターホン
- 防犯カメラ
- LDK15畳以上
- 和室
- 全居室複層ガラス
- クローゼット
- 床下収納
- 全居室収納
- シューズインクローク
- ルーフバルコニー
- インナーバルコニー
物件の特徴
- 前道6m以上
- 2階建
- 外壁サイディング
- 即入居可
物件詳細情報
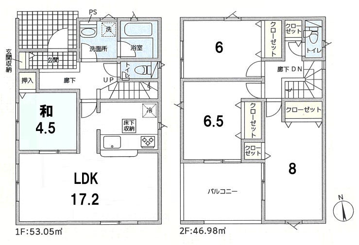
| 価格 | 2,580万円 | 間取り | 4LDK |
|---|---|---|---|
| 物件種別 | 新築一戸建て | ||
| 所在地 | 富山県富山市中市2丁目 2号棟 | ||
| アクセス |
|
||
| 建物面積 | 100.03㎡ | 駐車場 | あり 普通:2台 |
| 築年月 | 2026年(令和8年)03月築 | 建築確認 | 第R07SHC111608号 |
| 建物構造 | 木造 2階建 | 工法 | |
| 主要採光 | バルコニー | 9.72㎡ | |
| 保証・評価 | |||
| 土地面積 | 公179.54㎡(54.31坪) | 接道 | 北側(公道)幅 約6.2m 間口 約8.00m |
| 私道 | セットバック | ||
| 地目 | 宅地 | 地勢 | |
| 権利 | 所有権 |
||
| 都市計画 | 市街化区域 |
用途地域 | 1種中高 |
| 建ぺい/容積率 | 60% / 200% | 土地国土法 | |
| 許可番号 | 建築基準法 | ||
| 法令制限 | 景観法 | ||
| 小学区 | 山室小学校 徒歩2分 (約90m) | 中学区 | 山室中学校 徒歩19分 (約1500m) |
| 現況 | 完工済 | 引渡 | 即 |
| その他費用 | |||
| 周辺環境 | 山室小学校 徒歩2分 (約90m) 不二越あじさい保育園 徒歩2分 (約160m) スパ・アルプス 徒歩5分 (約350m) アルビス高原町店 徒歩5分 (約400m) 富山高原町郵便局 徒歩5分 (約400m) グリーンモール山室 徒歩7分 (約550m) 東石金町公園 徒歩7分 (約550m) スギ薬局山室店 徒歩8分 (約600m) ちんぱんじー 徒歩11分 (約850m) 山室中学校 徒歩19分 (約1500m) |
||
| 備考 | ◎おすすめポイント◎ ・全3棟完成!早くも残り2棟に!山室小学校まで徒歩約2分の通学安心の距離! ・和室のある生活!お子様のおむつ替え、遊び場、お昼寝に活用できます! ・広々バルコニーはプライベート空間!コーヒータイムも風に当たりながらのんびりと♪ ・防犯カメラ設置!近所でトラブルや置き配トラブルがあった時も対応できます◎ |
||
| 物件番号 | 4459898 | 取引態様 | 媒介 |
取扱店舗情報
| 電話番号 | 076-491-6619 |
|---|---|
| 所在地 | 〒930-0992 富山県富山市新庄町91番地 |
| 営業時間 | 10:00~18:00 |
| 定休日 | 水曜日 |
| 宅建免許番号 | 富山県知事(2)第3116号 |
| アクセス | 店舗への地図はこちら |

来店ご予約
富山県富山市で価格が似ている物件はこちら
- 富山県
マイページ物件数 - 616件
最近見た物件
-
-

-
- 新築一戸建て
- 3,388万円
-
半田市花田町1丁目
-
JR武豊線亀崎
-
-
-

-
- 中古一戸建て
- 900万円
-
宮崎市佐土原町東上那珂
-
JR日豊本線佐土原
-
-
-

-
- 新築一戸建て
- 3,880万円
-
南国市大そね甲
-
とさでん交通後免線後免町
-
富山県新築一戸建て新着物件
- お近くの店舗を探す
-
おすすめ物件
-
-

-
- 新築一戸建て
- 2,880万円
-
高岡市戸出町1丁目
-
JR城端線戸出
-
-
-

-
- 新築一戸建て
- 3,370万円
-
富山市大泉東町1丁目
-
富山地鉄不二越上滝線大泉
-
-
-

-
- 新築一戸建て
- 2,380万円
-
富山市中市2丁目
-
富山地鉄不二越上滝線大泉
-
-
-

-
- 新築一戸建て
- 2,680万円
-
富山市下堀
-
富山地鉄不二越上滝線朝菜町
-
-
-

-
- 新築一戸建て
- 2,280万円
-
中新川郡立山町前沢新町
-
富山地鉄立山線五百石
-
-
-

-
- 新築一戸建て
- 3,465万円
-
富山市秋吉
-
富山地鉄不二越上滝線不二越
-
-
-

-
- 新築一戸建て
- 3,368万円
-
高岡市角三島
-
JR氷見線能町
-
-
-

-
- 新築一戸建て
- 3,390万円
-
富山市大泉東町1丁目
-
富山地鉄不二越上滝線大泉
-
-
-

-
- 新築一戸建て
- 2,480万円
-
富山市秋吉新町
-
富山地鉄不二越上滝線大泉
-
-
-

-
- 新築一戸建て
- 2,180万円
-
高岡市中川園町
-
JR氷見線越中中川
-












































お風呂やサウナが好きな方におすすめしたい!24時間営業のスパ・アルプスまで徒歩約5分!お仕事終わりに歩いてサッと行ける距離が嬉しいですね(^^♪