新築戸建 【南区寺塚1丁目1期】 2号棟
掲載情報更新日:2026年02月12日 次回更新予定日:2026年02月26日
- 4,498万円
-
- 借入ご希望金額
万円 - 借入期間
年 - 借入金利
% - 月々のお支払い金額
円
- 借入ご希望金額
※ 月々のお支払例は目安の試算となりますので、実際の金額とは異なる場合がございます。詳しくは店舗までお問合わせください。
- 福岡市南区寺塚1丁目
-
西鉄天神大牟田線『高宮』 徒歩27分 (約2100m)
西鉄天神大牟田線『西鉄平尾』 徒歩35分 (約2800m)
西鉄天神大牟田線『大橋』 徒歩37分 (約2900m)
新築戸建 【南区寺塚1丁目1期】 2号棟一戸建て | 物件情報
◎コンビニやスーパーが徒歩圏内! ◎広々WICで季節物も片付きます♪
◆クオカード計3000円プレゼント!(2026年3月末日まで)
来場予約で500円、ご成約で2500円、計3000円のお渡しとなります。
◎コンビニやスーパーが徒歩圏内!
◎広々WICで季節物も片付きます♪
●住宅ローン、頭金のない方、ご相談承ります!
●まとめて複数物件ご案内可能です♪
まずはお気軽にお電話ください!
☆「新築」「中古」「マンション」「土地」なんでもご相談ください☆
いろんな不動産会社や銀行、リフォーム業者に行かなくても大丈夫!
ハウスドゥ博多の森が皆さんのお悩みをワンストップで解決いたします♪
【ハウスドゥ博多の森の特徴】
①他の気になる物件も同日に見学できるように手配!
②どんな物件(中古物件、新築、マンション、土地)もご案内対応!
③リフォームや建物検査(インスペクション)のご相談もOK!
④住宅ローンは数社一括で事前審査できるので時短&金利が比較可能!
当社ではお客様の立場に寄り添いベストで丁寧なご提案をいたします。
物件の設備
- 上水道
- 公営水道
- 下水道
- 公共下水
- 側溝
- 都市ガス
- 食器洗浄乾燥機
- 食品庫
- コンロ三口
- カウンターキッチン
- システムキッチン
- オートバス
- 追焚機能
- 浴室暖房
- 浴室乾燥機
- トイレ2箇所
- 温水洗浄便座
- 洗髪洗面化粧台
- リビング階段
- 省エネ給湯器
- モニタ付インターホン
- 火災警報器/報知機
- LDK18畳以上
- 複層ガラス
- シャッター雨戸
- 24時間換気システム
- クローゼット
- クローゼット2箇所
- クローゼット3箇所
- ウォークインクローゼット
- 床下収納
- 全居室収納
- シューズボックス
物件の特徴
- 前道6m以上
- 2階建
物件詳細情報
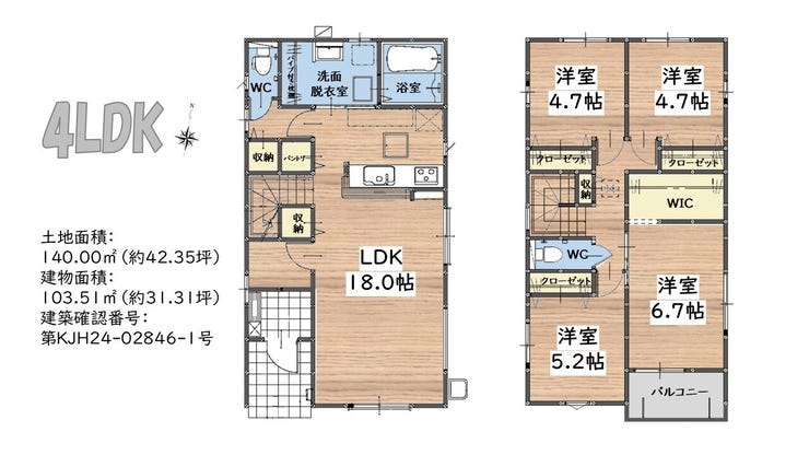
| 価格 | 4,498万円 | 間取り | 4LDK |
|---|---|---|---|
| 物件種別 | 新築一戸建て | ||
| 所在地 | 福岡県福岡市南区寺塚1丁目 2号棟 | ||
| アクセス |
|
||
| 建物面積 | 103.51㎡ | 駐車場 | あり 普通:2台 |
| 築年月 | 2025年(令和7年)10月予定 | 建築確認 | 第KJH24-02846-1号 |
| 建物構造 | 木造 2階建 | 工法 | |
| 主要採光 | バルコニー | ||
| 保証・評価 | |||
| 土地面積 | 実140㎡(42.35坪) | 接道 | 西側(公道)幅 約6.0m |
| 私道 | セットバック | ||
| 地目 | 宅地 | 地勢 | |
| 権利 | 所有権 |
||
| 都市計画 | 市街化区域 |
用途地域 | 1種中高 |
| 建ぺい/容積率 | 60% / 150% | 土地国土法 | |
| 許可番号 | 建築基準法 | ||
| 法令制限 | |||
| 小学区 | 大池小学校 徒歩15分 (約1200m) | 中学区 | 野間中学校 徒歩25分 (約2000m) |
| 現況 | 建築中 | 引渡 | 未記入 |
| その他費用 | |||
| 周辺環境 | セブン-イレブン 福岡長丘1丁目店 徒歩2分 (約120m) ドラッグストアモリ 長丘店 徒歩3分 (約190m) ファミリーマート 福岡寺塚店 徒歩5分 (約380m) ローソン 長丘二丁目店 徒歩9分 (約650m) マックスバリュ長丘店 徒歩8分 (約610m) 西日本シティ銀行 長住支店 徒歩9分 (約720m) パセオ野間大池 徒歩12分 (約960m) 福岡銀行 長住支店 徒歩11分 (約850m) サニー若久店 徒歩17分 (約1340m) ミスターマックス 長住店 徒歩18分 (約1420m) |
||
| 備考 | |||
| 物件番号 | 4344534 | 取引態様 | 媒介 |
取扱店舗情報
| 電話番号 | 092-405-0821 |
|---|---|
| 所在地 | 〒811-2207 福岡県糟屋郡志免町南里1丁目12-20 |
| 営業時間 | 9:00~18:00 |
| 定休日 | 水曜日 |
| 宅建免許番号 | 福岡県知事(14)第3825号 |
| アクセス | 店舗への地図はこちら |

来店ご予約
福岡県福岡市南区で価格が似ている物件はこちら
- 福岡県
マイページ物件数 - 9,089件
最近見た物件
福岡県新築一戸建て新着物件
-
-

-
- 新築一戸建て
- 4,698万円
-
福岡市東区三苫2丁目
-
西鉄貝塚線三苫駅
-
-
-

-
- 新築一戸建て
- 4,298万円
-
福岡市東区三苫2丁目
-
西鉄貝塚線三苫駅
-
-
-

-
- 新築一戸建て
- 3,698万円
-
北九州市小倉南区東貫1丁目
-
JR日豊本線下曽根駅
-
-
-

-
- 新築一戸建て
- 4,498万円
-
福岡市東区三苫2丁目
-
西鉄貝塚線三苫駅
-
-
-

-
- 新築一戸建て
- 2,480万円
-
久留米市三潴町西牟田
-
JR鹿児島本線西牟田駅
-
-
-

-
- 新築一戸建て
- 4,498万円
-
福岡市南区長住1丁目
-
西鉄天神大牟田線高宮駅
-
-
-

-
- 新築一戸建て
- 4,298万円
-
福岡市南区長住1丁目
-
西鉄天神大牟田線高宮駅
-
- お近くの店舗を探す
-
おすすめ物件
-
-

-
- 新築一戸建て
- 4,599万円
-
福岡市南区皿山1丁目
-
西鉄天神大牟田線高宮
-
-
-

-
- 新築一戸建て
- 3,998万円
-
北九州市小倉北区三郎丸3丁目
-
北九州高速鉄道片野
-
-
-

-
- 新築一戸建て
- 3,398万円
-
北九州市小倉南区上貫1丁目
-
JR日豊本線下曽根
-
-
-

-
- 新築一戸建て
- 1,888万円
-
直方市大字下新入
-
JR筑豊本線新入
-
-
-

-
- 新築一戸建て
- 3,498万円
-
宗像市原町
-
JR鹿児島本線東郷
-
-
-

-
- 新築一戸建て
- 5,798万円
-
福岡市博多区諸岡3丁目
-
JR鹿児島本線笹原
-
-
-

-
- 新築一戸建て
- 3,799万円
-
宗像市青葉台2丁目
-
JR鹿児島本線赤間
-
-
-

-
- 新築一戸建て
- 3,198万円
-
北九州市小倉北区赤坂3丁目
-
西鉄バス手向山
-
-
-

-
- 新築一戸建て
- 5,098万円
-
糟屋郡粕屋町酒殿2丁目
-
JR香椎線酒殿
-
-
-

-
- 新築一戸建て
- 4,998万円
-
大野城市白木原4丁目
-
西鉄天神大牟田線白木原
-














☆「新築」「中古」「マンション」「土地」なんでもご相談ください☆
いろんな不動産会社や銀行、リフォーム業者に行かなくても大丈夫!
ハウスドゥ博多の森が皆さんのお悩みをワンストップで解決いたします♪
【ハウスドゥ博多の森の特徴】
①他の気になる物件も同日に見学できるように手配!
②どんな物件(中古物件、新築、マンション、土地)もご案内対応!
③リフォームや建物検査(インスペクション)のご相談もOK!
④住宅ローンは数社一括で事前審査できるので時短&金利が比較可能!
当社ではお客様の立場に寄り添いベストで丁寧なご提案をいたします。