熊本市北区鶴羽田4丁目の新築戸建
掲載情報更新日:2025年10月17日 次回更新予定日:2025年10月31日
- 2,599万円
-
- 借入ご希望金額
万円 - 借入期間
年 - 借入金利
% - 月々のお支払い金額
円
- 借入ご希望金額
※ 月々のお支払例は目安の試算となりますので、実際の金額とは異なる場合がございます。詳しくは店舗までお問合わせください。
- 熊本市北区鶴羽田4丁目
-
熊本電気鉄道『三ツ石』 徒歩15分 (約1200m)
熊本電気鉄道『須屋』 徒歩18分 (約1400m)
熊本電気鉄道『新須屋』 徒歩18分 (約1400m)
熊本市北区鶴羽田4丁目一戸建て | 物件情報
物件の設備
- 電気
- 上水道
- 下水道
- 側溝
- プロパンガス
- 食器洗浄乾燥機
- コンロ三口
- グリル
- カウンターキッチン
- システムキッチン
- バス
- オートバス
- バス1坪以上
- 追焚機能
- 浴室暖房
- 浴室乾燥機
- トイレ2箇所
- 温水洗浄便座
- 室内洗濯機置場
- 洗面所独立
- ディンプルキー
- ダブルロックキー
- モニタ付インターホン
- 火災警報器/報知機
- LDK20畳以上
- 全室フローリング
- 24時間換気システム
- クローゼット3箇所
- ウォークインクローゼット
- 床下収納
- 全居室収納
- シューズボックス
物件の特徴
- 閑静な住宅街
- 通風良好
- 陽当り良好
- 2階建
物件詳細情報
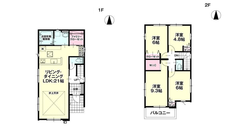
| 価格 | 2,599万円 | 間取り | 4LDK |
|---|---|---|---|
| 物件種別 | 新築一戸建て | ||
| 所在地 | 熊本県熊本市北区鶴羽田4丁目 1号棟 | ||
| アクセス |
|
||
| 建物面積 | 105.31㎡ | 駐車場 | あり |
| 築年月 | 2025年(令和7年)11月予定 | 建築確認 | R07SHC108239 |
| 建物構造 | 木造 2階建 | 工法 | |
| 主要採光 | バルコニー | ||
| 保証・評価 | |||
| 土地面積 | 141.99㎡(42.95坪) | 接道 | |
| 私道 | セットバック | ||
| 地目 | 宅地 | 地勢 | |
| 権利 | 所有権 |
||
| 都市計画 | 市街化区域 |
用途地域 | 1種中高 |
| 建ぺい/容積率 | 60% / 150% | 土地国土法 | |
| 許可番号 | 建築基準法 | ||
| 法令制限 | |||
| 小学区 | 北部東小学校 徒歩7分 (約550m) | 中学区 | 北部中学校 徒歩39分 (約3100m) |
| 現況 | 未着工 | 引渡 | 未記入 |
| その他費用 | |||
| 周辺環境 | ハローデイ菊南店 徒歩7分 (約540m) 上須屋郵便局 徒歩8分 (約570m) 肥後銀行 須屋支店 徒歩7分 (約520m) 北部東小学校 徒歩13分 (約980m) |
||
| 備考 | |||
| 物件番号 | 4345982 | 取引態様 | 媒介 |
取扱店舗情報
ハウスドゥ 大江 まつばや百貨店不動産株式会社 店舗詳細ページへ
| 電話番号 | 096-206-1230 |
|---|---|
| 所在地 | 〒862-0971 熊本県熊本市中央区大江1丁目2-19 |
| 営業時間 | 9:00~18:00 |
| 定休日 | 水曜日 |
| 宅建免許番号 | 熊本県知事(1)第5729号 |
| アクセス | 店舗への地図はこちら |

来店ご予約
熊本県熊本市北区で価格が似ている物件はこちら
- 熊本県
マイページ物件数 - 3,037件
熊本県新築一戸建て新着物件
-
-

-
- 新築一戸建て
- 2,798万円
-
熊本市北区植木町一木
-
JR鹿児島本線植木駅
-
-
-

-
- 新築一戸建て
- 3,198万円
-
熊本市南区御幸木部2丁目
-
JR鹿児島本線川尻駅
-
-
-

-
- 新築一戸建て
- 3,748万円
-
菊池郡菊陽町大字原水
-
JR豊肥本線原水駅
-
-
-

-
- 新築一戸建て
- 3,698万円
-
菊池郡菊陽町大字原水
-
JR豊肥本線原水駅
-
-
-

-
- 新築一戸建て
- 3,398万円
-
熊本市南区元三町1丁目
-
JR鹿児島本線川尻駅
-
-
-

-
- 新築一戸建て
- 3,198万円
-
熊本市南区元三町1丁目
-
JR鹿児島本線川尻駅
-
-
-

-
- 新築一戸建て
- 3,848万円
-
菊池郡菊陽町大字原水
-
JR豊肥本線原水駅
-
- お近くの店舗を探す
-
おすすめ物件
-
-

-
- 新築一戸建て
- 3,498万円
-
熊本市東区江津2丁目
-
熊本市健軍線神水交差点
-
-
-

-
- 新築一戸建て
- 2,880万円
-
熊本市中央区出水6丁目
-
JR豊肥本線南熊本
-
-
-

-
- 新築一戸建て
- 3,398万円
-
熊本市北区清水新地1丁目
-
熊本電気鉄道堀川
-
-
-

-
- 新築一戸建て
- 3,198万円
-
合志市御代志
-
熊本電気鉄道御代志
-
-
-

-
- 新築一戸建て
- 3,390万円
-
熊本市東区湖東3丁目
-
JR豊肥本線新水前寺
-
-
-

-
- 新築一戸建て
- 3,288万円
-
熊本市南区幸田2丁目
-
JR豊肥本線平成
-
-
-

-
- 新築一戸建て
- 3,499万円
-
熊本市東区尾ノ上3丁目
-
熊本市健軍線神水交差点
-



