熊本市北区清水新地3丁目の新築戸建
掲載情報更新日:2025年11月17日 次回更新予定日:2025年12月01日
- 2,599万円
-
- 借入ご希望金額
万円 - 借入期間
年 - 借入金利
% - 月々のお支払い金額
円
- 借入ご希望金額
※ 月々のお支払例は目安の試算となりますので、実際の金額とは異なる場合がございます。詳しくは店舗までお問合わせください。
- 熊本市北区清水新地3丁目
-
熊本電気鉄道『新須屋』 徒歩10分 (約800m)
JR豊肥本線『武蔵塚』 徒歩44分 (約3500m)
『新地』 徒歩3分 (約240m)
熊本市北区清水新地3丁目一戸建て | 物件情報
《本日案内可能》☆ご成約で8万円以内のお好きな家具家電等プレゼントします♪(当店からの指定なし)
※マウスを乗せると画像が切り替わります。
【最安値へ挑戦!】
☆8万円以内のお好きな家具家電等プレゼント!※景品表示法の範囲内でプレゼント!
こちらの物件以外にも気になる物件がございましたら、お気軽にお問い合わせください♪
さらに!他社様のお見積もりよりも必ずお安くご購入いただける『最安値保証』をしております!
まずはお気軽にお問合せください☆
【内覧ツアー】
熊本県内全域の気になる物件を全て当店でご内覧いただける『内覧ツアー』を実施中☆新築・中古・中古マンションも!見学されたい物件を1日で内覧可能♪忙しいお客様のお時間を無駄にさせません!
【最安値保証】
もっとお得にお家を購入したい!そんな方はぜひ『ハウスドゥ御幸田迎』にお任せください!
他社様よりも必ずお得にご購入いただけることをお約束いたします。
当店ではオプション費用(エアコン、網戸、太陽光等)もお客様に代わり相見積もりいたします!
住宅ローンにも自信あり!(承認率約90%♪)ご相談ください!
不動産のプロ『ハウスドゥ 御幸田迎』が年間契約数200件以上の経験を活かし、後悔のないお家選びを全力でお手伝いします!
物件の設備
- 電気
- 上水道
- 公営水道
- 下水道
- 公共下水
- 都市ガス
- 給湯
- 浄水器
- 食器乾燥機
- 食器洗浄乾燥機
- コンロ三口
- グリル
- ガスコンロ付
- カウンターキッチン
- システムキッチン
- バス
- ユニットバス
- オートバス
- バス1坪以上
- 追焚機能
- 浴室暖房
- 浴室乾燥機
- 浴室に窓
- トイレ
- トイレ2箇所
- 温水洗浄便座
- 室内洗濯機置場
- 洗髪洗面化粧台
- 洗面所独立
- ダウンライト
- 省エネ給湯器
- ディンプルキー
- ダブルロックキー
- モニタ付インターホン
- 火災警報器/報知機
- LDK18畳以上
- 複層ガラス
- 全居室複層ガラス
- フローリング
- シャッター雨戸
- 24時間換気システム
- クローゼット2箇所
- ウォークインクローゼット
- 床下収納
- 全居室収納
- シューズボックス
- ワイドバルコニー
- 庭
物件の特徴
- 2沿線利用可
- 小学校徒歩10分以内
- スーパーが近い
- 閑静な住宅街
- 通風良好
- 陽当り良好
- 2階建
- 角地
- 即入居可
オープンハウス・イベント情報
開催日時:毎週土日祝 09:00~19:00
開催場所:熊本県熊本市北区
\\現地見学会ご予約受付中// ○平日・土日祝いつでも承ります!! 〇お仕事帰りもOK!早朝・19時以降も対応致します! ◇◆◇お問い合わせ◇◆◇ 電話:096-243-3000 または 見学予約フォームにて事前にご予約をお願いします♪ ◇◆◇見学のご予約◇◆◇ 事前にご希望日時…
物件詳細情報
| 価格 | 2,599万円 | 間取り | 3LDK |
|---|---|---|---|
| 物件種別 | 新築一戸建て | ||
| 所在地 | 熊本県熊本市北区清水新地3丁目5-86付近 1号棟 | ||
| アクセス |
|
||
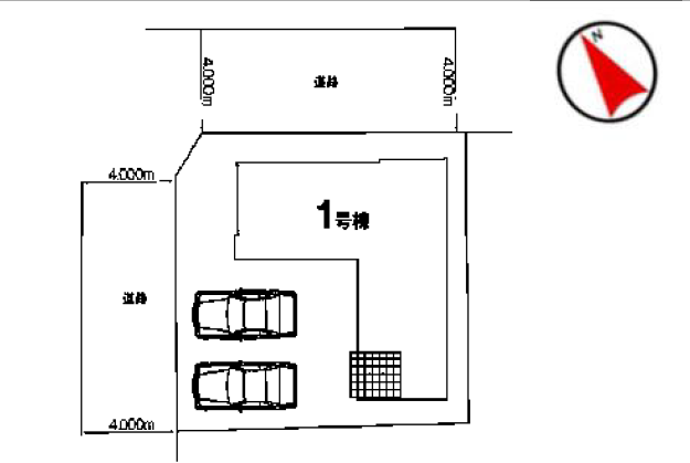
| 建物面積 | 103.83㎡ | 駐車場 | あり 普通:2台 |
| 築年月 | 2025年(令和7年)05月築 | 建築確認 | 第R06SHC124812号 |
| 建物構造 | 木造 2階建 | 工法 | |
| 主要採光 | バルコニー | ||
| 保証・評価 | |||
| 土地面積 | 126.61㎡(38.29坪) | 接道 | |
| 私道 | セットバック | ||
| 地目 | 宅地 | 地勢 | |
| 権利 | 所有権 |
||
| 都市計画 | 市街化区域 |
用途地域 | 準住居 |
| 建ぺい/容積率 | 70% / 160% | 土地国土法 | |
| 許可番号 | 建築基準法 | ||
| 法令制限 | |||
| 小学区 | 麻生田小学校 徒歩10分 (約800m) | 中学区 | 清水中学校 徒歩7分 (約500m) |
| 現況 | 完工済 | 引渡 | 即 |
| その他費用 | |||
| 周辺環境 | 麻生田小学校 徒歩15分 (約1140m) 熊本市立清水中学校 徒歩8分 (約570m) きらら保育園 徒歩9分 (約690m) セブン-イレブン 熊本清水新地3丁目店 徒歩3分 (約240m) サンリブ しみず 徒歩8分 (約620m) 熊本新地郵便局 徒歩7分 (約510m) 千場内科クリニック 徒歩8分 (約610m) 榎ノ本児童公園 徒歩11分 (約880m) 業務スーパー 麻生田店 徒歩7分 (約490m) 合志市 須屋市民センター 徒歩16分 (約1230m) |
||
| 備考 | ・熊本市立麻生田小学校まで徒歩15分(約1140m) ・熊本市立清水中学校まで徒歩8分(約570m) ・きらら保育園まで徒歩9分(約690m) ・セブン-イレブン 熊本清水新地3丁目店まで徒歩3分(約240m) ・サンリブ しみずまで徒歩8分(約620m) ・熊本新地郵便局まで徒歩7分(約510m) ・千場内科クリニックまで徒歩8分(約610m) ・榎ノ本児童公園まで徒歩11分(約880m) ・業務スーパー 麻生田店まで徒歩7分(約490m) ・合志市 須屋市民センターまで徒歩16分(約1230m) |
||
| 物件番号 | 4248287 | 取引態様 | 媒介 |
取扱店舗情報
ハウスドゥ 御幸田迎 株式会社Remado 店舗詳細ページへ
| 電話番号 | 096-243-3000 |
|---|---|
| 所在地 | 〒861-4108 熊本県熊本市南区幸田1丁目7-20 |
| 営業時間 | 9:30~18:00 |
| 定休日 | お盆、年末年始 |
| 宅建免許番号 | 熊本県知事(1)第5556号 |
| アクセス | 店舗への地図はこちら |

来店ご予約
熊本県熊本市北区で価格が似ている物件はこちら
![]()
![]()
-
- 新築一戸建て 2024.04.30
-
-
- 2,699万円
-
熊本市北区清水東町
-
熊本電気鉄道「八景水谷駅」まで徒歩8分
- 4LDK+S
-
-
- 新築一戸建て 2025.01.18
-
-
- 2,499万円
-
熊本市北区植木町舞尾
-
舞尾橋まで徒歩7分
- 4LDK+S
-
-
- 新築一戸建て 2025.03.14
-
-
- 2,680万円
-
熊本市北区龍田1丁目
-
JR豊肥本線「竜田口駅」まで徒歩30分
- 4LDK
-
-
- 新築一戸建て 2025.03.14
-
-
- 2,680万円
-
熊本市北区龍田1丁目
-
JR豊肥本線「竜田口駅」まで徒歩30分
- 4LDK
-
-
- 新築一戸建て 2025.03.28
-
-
- 2,599万円
-
熊本市北区清水新地3丁目
-
熊本電気鉄道「新須屋駅」まで徒歩10分
- 4LDK
-
-
- 新築一戸建て 2025.04.06
-
-
- 2,680万円
-
熊本市北区龍田1丁目
-
JR豊肥本線「竜田口駅」まで徒歩30分
- 4LDK+S
-
-
- 新築一戸建て 2025.04.06
-
-
- 2,680万円
-
熊本市北区龍田1丁目
-
JR豊肥本線「竜田口駅」まで徒歩30分
- 4LDK
-
-
- 新築一戸建て 2025.04.06
-
-
- 2,680万円
-
熊本市北区麻生田5丁目
-
熊本電気鉄道「須屋駅」まで徒歩25分
- 4LDK
-
-
- 新築一戸建て 2025.04.15
-
-
- 2,680万円
-
熊本市北区龍田1丁目
-
JR豊肥本線「竜田口駅」まで徒歩29分
- 4LDK
-
-
- 新築一戸建て 2025.04.22
-
-
- 2,680万円
-
熊本市北区龍田1丁目
-
熊本産交バス三の宮まで徒歩9分
- 4LDK
-
-
- 新築一戸建て 2025.05.02
-
-
- 2,680万円
-
熊本市北区麻生田5丁目
-
熊本電鉄バス石倉まで徒歩8分
- 4LDK
-
-
- 新築一戸建て 2025.05.16
-
-
- 2,598万円
-
熊本市北区龍田7丁目
-
JR豊肥本線「武蔵塚駅」バス乗車6分 バス停「武蔵塚三里木」まで徒歩8分
- 4LDK
-
-
- 新築一戸建て 2025.05.16
-
-
- 2,698万円
-
熊本市北区龍田7丁目
-
JR豊肥本線「武蔵塚駅」バス乗車6分 バス停「武蔵塚三里木」まで徒歩8分
- 4LDK
-
-
- 新築一戸建て 2025.05.23
-
-
- 2,599万円
-
熊本市北区清水新地3丁目
-
熊本電気鉄道「新須屋駅」まで徒歩13分
- 3LDK
-
-
- 新築一戸建て 2025.05.27
-
-
- 2,599万円
-
熊本市北区清水新地3丁目
-
新地(熊本)まで徒歩3分
- 3LDK
-
-
- 新築一戸建て 2025.06.24
-
-
- 2,599万円
-
熊本市北区鶴羽田4丁目
-
熊本電気鉄道「三ツ石駅」まで徒歩15分
- 4LDK
-
-
- 新築一戸建て 2025.06.26
-
-
- 2,599万円
-
熊本市北区鶴羽田4丁目
-
熊本電気鉄道「三ツ石駅」まで徒歩15分
- 4LDK
-
-
- 新築一戸建て 2025.07.20
-
-
- 2,599万円
-
熊本市北区鶴羽田4丁目
-
熊本電気鉄道「三ツ石駅」まで徒歩15分
- 4LDK
-
-
- 新築一戸建て 2025.07.27
-
-
- 2,680万円
-
熊本市北区龍田1丁目
-
JR豊肥本線「竜田口駅」まで徒歩29分
- 4LDK
-
-
- 新築一戸建て 2025.08.04
-
-
- 2,599万円
-
熊本市北区鶴羽田4丁目
-
熊本電気鉄道「三ツ石駅」まで徒歩15分
- 4LDK
-
-
- 新築一戸建て 2025.08.05
-
-
- 2,588万円
-
熊本市北区梶尾町
-
熊本電気鉄道「三ツ石駅」まで徒歩31分
- 4LDK
-
-
- 新築一戸建て 2025.08.07
-
-
- 2,598万円
-
熊本市北区龍田7丁目
-
JR豊肥本線「武蔵塚駅」まで徒歩30分
- 4LDK
-
-
- 新築一戸建て 2025.08.07
-
-
- 2,698万円
-
熊本市北区龍田7丁目
-
JR豊肥本線「武蔵塚駅」まで徒歩30分
- 4LDK
-
-
- 新築一戸建て 2025.08.11
-
-
- 2,680万円
-
熊本市北区麻生田5丁目
-
熊本電気鉄道「須屋駅」まで徒歩22分
- 4LDK
-
-
- 新築一戸建て 2025.08.11
-
-
- 2,680万円
-
熊本市北区麻生田5丁目
-
熊本電気鉄道「新須屋駅」まで徒歩27分
- 4LDK
-
-
- 新築一戸建て 2025.08.19
-
-
- 2,680万円
-
熊本市北区龍田1丁目
-
JR豊肥本線「竜田口駅」まで徒歩30分
- 4LDK
-
-
- 新築一戸建て 2025.08.19
-
-
- 2,680万円
-
熊本市北区龍田1丁目
-
JR豊肥本線「竜田口駅」まで徒歩30分
- 4LDK
-
-
- 新築一戸建て 2025.09.04
-
-
- 2,588万円
-
熊本市北区高平3丁目
-
熊本電気鉄道「亀井駅」まで徒歩11分
- 4LDK
-
-
- 新築一戸建て 2025.09.04
-
-
- 2,688万円
-
熊本市北区高平3丁目
-
熊本電気鉄道「亀井駅」まで徒歩11分
- 4LDK
-
-
- 新築一戸建て 2025.09.08
-
-
- 2,698万円
-
熊本市北区鶴羽田4丁目
-
熊本電気鉄道「三ツ石駅」まで徒歩13分
- 4LDK+S
-
-
- 新築一戸建て 2025.09.08
-
-
- 2,648万円
-
熊本市北区鶴羽田4丁目
-
熊本電気鉄道「三ツ石駅」まで徒歩13分
- 4LDK
-
-
- 新築一戸建て 2025.09.08
-
-
- 2,698万円
-
熊本市北区鶴羽田4丁目
-
熊本電気鉄道「三ツ石駅」まで徒歩13分
- 4LDK+S
-
-
- 新築一戸建て 2025.09.08
-
-
- 2,598万円
-
熊本市北区鶴羽田4丁目
-
熊本電気鉄道「三ツ石駅」まで徒歩13分
- 4LDK
-
-
- 新築一戸建て 2025.09.14
-
-
- 2,588万円
-
熊本市北区梶尾町
-
熊本電気鉄道「三ツ石駅」まで徒歩30分
- 4LDK
-
-
- 新築一戸建て 2025.09.14
-
-
- 2,588万円
-
熊本市北区梶尾町
-
熊本電気鉄道「三ツ石駅」まで徒歩30分
- 4LDK
-
-
-
新築一戸建て
2025.10.22
-
-
- 2,688万円
-
熊本市北区清水東町
-
熊本電気鉄道「亀井駅」まで徒歩9分
- 4LDK+S
-
-
新築一戸建て
2025.10.22
-
-
新築一戸建て
2025.10.22
-
-
- 2,588万円
-
熊本市北区高平3丁目
-
熊本電気鉄道「亀井駅」まで徒歩11分
- 4LDK+S
-
-
新築一戸建て
2025.10.22
-
-
新築一戸建て
2025.10.22
-
-
- 2,688万円
-
熊本市北区高平3丁目
-
熊本電気鉄道「亀井駅」まで徒歩11分
- 4LDK+S
-
-
新築一戸建て
2025.10.22
-
-
新築一戸建て
2025.11.03
-
-
- 2,698万円
-
熊本市北区植木町広住
-
JR鹿児島本線「植木駅」まで徒歩50分
- 4LDK
-
-
新築一戸建て
2025.11.03
-
-
新築一戸建て
2025.11.13
-
-
- 2,698万円
-
熊本市北区鶴羽田4丁目
-
熊本電気鉄道「三ツ石駅」まで徒歩14分
- 4LDK+S
-
-
新築一戸建て
2025.11.13
-
-
新築一戸建て
2025.11.13
-
-
- 2,648万円
-
熊本市北区鶴羽田4丁目
-
熊本電気鉄道「三ツ石駅」まで徒歩14分
- 4LDK
-
-
新築一戸建て
2025.11.13
-
-
新築一戸建て
2025.11.13
-
-
- 2,698万円
-
熊本市北区鶴羽田4丁目
-
熊本電気鉄道「三ツ石駅」まで徒歩14分
- 4LDK+S
-
-
新築一戸建て
2025.11.13
-
-
新築一戸建て
2025.11.13
-
-
- 2,598万円
-
熊本市北区鶴羽田4丁目
-
熊本電気鉄道「三ツ石駅」まで徒歩14分
- 4LDK
-
-
新築一戸建て
2025.11.13
- 熊本県
マイページ物件数 - 3,064件
熊本県新築一戸建て新着物件
-
-

-
- 新築一戸建て
- 3,998万円
-
熊本市中央区帯山9丁目
-
熊本都市バス帯山9丁目 バス停
-
-
-

-
- 新築一戸建て
- 2,498万円
-
熊本市南区城南町碇
-
JR三角線富合駅
-
-
-

-
- 新築一戸建て
- 2,698万円
-
熊本市南区城南町碇
-
JR三角線富合駅
-
-
-

-
- 新築一戸建て
- 2,898万円
-
熊本市南区富合町南田尻
-
JR鹿児島本線宇土駅
-
-
-

-
- 新築一戸建て
- 2,898万円
-
熊本市南区富合町南田尻
-
JR鹿児島本線宇土駅
-
-
-

-
- 新築一戸建て
- 4,190万円
-
熊本市中央区本山町
-
熊本市健軍線祗園橋駅
-
-
-

-
- 新築一戸建て
- 3,990万円
-
熊本市中央区本山町
-
熊本市健軍線祗園橋駅
-
- お近くの店舗を探す
-
おすすめ物件
-
-

-
- 新築一戸建て
- 3,498万円
-
熊本市東区江津2丁目
-
熊本市健軍線神水交差点
-
-
-

-
- 新築一戸建て
- 2,880万円
-
熊本市中央区出水6丁目
-
JR豊肥本線南熊本
-
-
-

-
- 新築一戸建て
- 3,298万円
-
熊本市北区清水新地1丁目
-
熊本電気鉄道堀川
-
-
-

-
- 新築一戸建て
- 2,998万円
-
熊本市南区幸田2丁目
-
JR豊肥本線平成
-
-
-

-
- 新築一戸建て
- 3,499万円
-
熊本市東区尾ノ上3丁目
-
熊本市健軍線神水交差点
-
-
-

-
- 新築一戸建て
- 3,198万円
-
合志市御代志
-
熊本電気鉄道御代志
-
-
-

-
- 新築一戸建て
- 3,190万円
-
熊本市東区湖東3丁目
-
JR豊肥本線新水前寺
-























担当エージェント:片山 久瑠実
【月々の支払い例】
2,600万円借入の場合
月々50,743円(頭金・ボーナス払い無)
金利0.648% (ネット銀行、金利優遇有)
変動金利 返済期間50年
※あくまでも一例です。条件有。
【周辺環境】
・熊本市立麻生田小学校まで徒歩15分(約1140m)
・熊本市立清水中学校まで徒歩8分(約570m)
・きらら保育園まで徒歩9分(約690m)
・セブン-イレブン 熊本清水新地3丁目店まで徒歩3分(約240m)
・サンリブ しみずまで徒歩8分(約620m)
・熊本新地郵便局まで徒歩7分(約510m)
・千場内科クリニックまで徒歩8分(約610m)
・榎ノ本児童公園まで徒歩11分(約880m)
・業務スーパー 麻生田店まで徒歩7分(約490m)
・合志市 須屋市民センターまで徒歩16分(約1230m)
お気軽にご相談ください!
お問い合わせは ハウスドゥ御幸田迎まで♪