八尾市緑ヶ丘5丁目新築戸建
掲載情報更新日:2025年11月26日 次回更新予定日:2025年12月10日
- 3,580万円
-
- 借入ご希望金額
万円 - 借入期間
年 - 借入金利
% - 月々のお支払い金額
円
- 借入ご希望金額
※ 月々のお支払例は目安の試算となりますので、実際の金額とは異なる場合がございます。詳しくは店舗までお問合わせください。
- 八尾市緑ヶ丘5丁目
-
近鉄信貴線『河内山本』 徒歩18分 (約1440m)
近鉄大阪線『河内山本』 徒歩18分 (約1440m)
JR関西本線『八尾』 徒歩46分 (約3680m)
八尾市緑ヶ丘5丁目新築戸建一戸建て | 物件情報
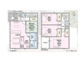
◆2025年7月完成予定 ◆3SLDK ◆2台駐車可能
*---*---*---*〇ここに注目〇*---*---*--*
・角地、南向きのため日当たり通風良好
・LDKは3面採光のため一日通してたっぷりと日が差し込みます
・駐車2台可能、自転車も余裕で駐輪可能
・カウンターキッチンにつき、御家族様の様子を見ながらお料理が可能
・LDKに面した和室完備
お子様のお昼寝やくつろぐ空間に最適な広さ
・2階すべてのお部屋にウォークインクローゼット完備
・納戸(ストレージルーム)約5帖があり、収納場所として、書斎として、家事室として使い道は多様♪
・キッチン、洗面室、浴室がまとまっており家事動線がスムーズ♪
物件の設備
- 公営水道
- 公共下水
- 都市ガス
- 浄水器
- カウンターキッチン
- システムキッチン
- オートバス
- 追焚機能
- 浴室乾燥機
- トイレ2箇所
- 室内洗濯機置場
- 洗髪洗面化粧台
- 洗面所独立
- 照明器具
- ディンプルキー
- モニタ付インターホン
- LDK15畳以上
- 和室
- 3面採光
- 全室2面採光
- フローリング
- 24時間換気システム
- クローゼット3箇所
- ウォークインクローゼット
- ウォークインクローゼット2箇所
- 納戸
- 床下収納
- 全居室収納
物件の特徴
- 南向
- 全室南東向
- 駅まで平坦
- 総合病院徒歩10分以内
- 小学校徒歩10分以内
- スーパーが近い
- 閑静な住宅街
- 周辺交通量少なめ
- 通風良好
- 陽当り良好
- 2階建
- 角地
- 平坦地
- BELS/省エネ基準適合
- フラット35Sに対応
物件詳細情報
| 価格 | 3,580万円 | 間取り | 3LDK+S |
|---|---|---|---|
| 物件種別 | 新築一戸建て | ||
| 所在地 | 大阪府八尾市緑ヶ丘5丁目 | ||
| アクセス |
|
||
| 建物面積 | 97.2㎡ | 駐車場 | あり 普通:2台 |
| 築年月 | 2025年(令和7年)07月築 | 建築確認 | 第KS124-0410-64315号 |
| 建物構造 | 木造 2階建 | 工法 | |
| 主要採光 | 南向 | バルコニー | |
| 保証・評価 | |||
| 土地面積 | 99.84㎡(30.20坪) | 接道 | 西側(私道)幅 約4.0m 間口 約9.08m |
| 私道 | セットバック | ||
| 地目 | 宅地 | 地勢 | |
| 権利 | 所有権 |
||
| 都市計画 | 市街化区域 |
用途地域 | 1種住居 |
| 建ぺい/容積率 | 60% / 200% | 土地国土法 | |
| 許可番号 | 建築基準法 | ||
| 法令制限 | |||
| 小学区 | 山本小学校 徒歩7分 (約550m) | 中学区 | 上之島中学校 徒歩18分 (約1400m) |
| 現況 | 空 | 引渡 | 相談 |
| その他費用 | |||
| 周辺環境 | 八尾市立山本小学校 徒歩10分 (約790m) 八尾市立上之島中学校 徒歩20分 (約1560m) セブンイレブン 八尾西山本6丁目店 徒歩8分 (約590m) 関西スーパー旭ヶ丘店 徒歩5分 (約380m) 関西ドラッグストア薬局 徒歩3分 (約210m) 清水医院 徒歩6分 (約450m) 八尾緑ヶ丘郵便局 徒歩6分 (約430m) 大阪信用金庫八尾桜ヶ丘支店 徒歩12分 (約930m) 長池幼稚園 徒歩7分 (約550m) 堤町二丁目公園 徒歩4分 (約300m) |
||
| 備考 | |||
| 物件番号 | 4347197 | 取引態様 | 媒介 |
取扱店舗情報
| 電話番号 | 072-973-6177 |
|---|---|
| 所在地 | 〒581-0801 大阪府八尾市山城町2丁目1-28 山城ビル1F |
| 営業時間 | 9:00~18:00 |
| 定休日 | 水曜日、年末年始 |
| 宅建免許番号 | 大阪府知事(1)第64057号 |
| アクセス | 店舗への地図はこちら |

来店ご予約
大阪府八尾市で価格が似ている物件はこちら
- 大阪府
マイページ物件数 - 15,897件
大阪府新築一戸建て新着物件
-
-

-
- 新築一戸建て
- 3,880万円
-
東大阪市南上小阪
-
近鉄大阪線弥刀駅
-
-
-

-
- 新築一戸建て
- 4,980万円
-
高槻市津之江町3丁目
-
阪急電鉄京都線富田駅
-
-
-

-
- 新築一戸建て
- 4,380万円
-
高槻市津之江町3丁目
-
阪急電鉄京都線富田駅
-
-
-

-
- 新築一戸建て
- 2,980万円
-
泉南郡熊取町大久保南4丁目
-
JR阪和線熊取駅
-
-
-

-
- 新築一戸建て
- 3,280万円
-
松原市高見の里5丁目
-
近鉄南大阪線高見ノ里駅
-
-
-

-
- 新築一戸建て
- 3,398万円
-
八尾市沼3丁目
-
JR関西本線柏原駅
-
-
-

-
- 新築一戸建て
- 2,690万円
-
柏原市国分本町2丁目
-
近鉄大阪線河内国分駅
-
- お近くの店舗を探す
-
おすすめ物件
-
-

-
- 新築一戸建て
- 3,880万円
-
茨木市橋の内3丁目
-
阪急電鉄京都線総持寺
-
-
-

-
- 新築一戸建て
- 5,080万円
-
大阪市住之江区粉浜西3丁目
-
南海電鉄本線住吉大社
-
-
-

-
- 新築一戸建て
- 4,780万円
-
堺市北区百舌鳥本町2丁
-
JR阪和線百舌鳥
-
-
-

-
- 新築一戸建て
- 3,080万円
-
泉大津市下条町
-
南海電鉄本線泉大津
-
-
-

-
- 新築一戸建て
- 2,980万円
-
茨木市郡3丁目
-
JR東海道線茨木
-
-
-

-
- 新築一戸建て
- 3,850万円
-
泉大津市昭和町
-
南海電鉄本線泉大津
-
-
-

-
- 新築一戸建て
- 5,180万円
-
高槻市北昭和台町
-
阪急電鉄京都線総持寺
-
-
-

-
- 新築一戸建て
- 2,948万円
-
泉大津市松之浜町2丁目
-
南海電鉄本線松ノ浜
-
-
-

-
- 新築一戸建て
- 4,680万円
-
堺市北区新金岡町5丁
-
大阪市御堂筋線新金岡
-
-
-

-
- 新築一戸建て
- 3,480万円
-
茨木市橋の内1丁目
-
阪急電鉄京都線総持寺
-


































担当エージェント:庄司 海秀
弊社は不動産売買専門の仲介会社とし、全国700店舗展開中のハウスドゥ近鉄八尾北でございます。
購入・売却に関する様々なご相談承っております。
弊社は他社様が掲載されている物件でもご紹介可能です。お気軽にご相談くださいませ。