八尾市楠根町2丁目新築戸建
掲載情報更新日:2025年12月10日 次回更新予定日:2025年12月24日
- 2,280万円
-
- 借入ご希望金額
万円 - 借入期間
年 - 借入金利
% - 月々のお支払い金額
円
- 借入ご希望金額
※ 月々のお支払例は目安の試算となりますので、実際の金額とは異なる場合がございます。詳しくは店舗までお問合わせください。
- 八尾市楠根町2丁目
-
近鉄大阪線『近鉄八尾』 徒歩18分 (約1440m)
近鉄信貴線『河内山本』 徒歩34分 (約2720m)
JR関西本線『八尾』 徒歩37分 (約2960m)
八尾市楠根町2丁目新築戸建一戸建て | 物件情報
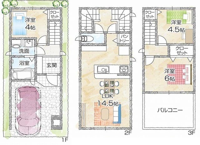
◆ZEH水準省エネ住宅 ◆地盤保証20年付き ◆3LDK
*---*---*---*〇ここに注目〇*---*---*--*
・2025年3月完成新築戸建
・雨に濡れず乗り降り可能な駐車場
・カウンターキッチンにつき、御家族様の様子を見ながらお料理が可能
・キッチンにはパントリーがあり、大容量の食品、日用品の収納が可能
・洋室に面したバルコニーは広々しており、たくさんのお洗濯物を干すのはちろん、夏はプールなども楽しめます♪
・日当たり通風良好♪
物件の設備
- 公営水道
- 公共下水
- 都市ガス
- 食品庫
- カウンターキッチン
- システムキッチン
- オートバス
- 浴室に窓
- 室内洗濯機置場
- 洗髪洗面化粧台
- 洗面所独立
- 2面採光
- 全室フローリング
- クローゼット3箇所
- 全居室収納
物件の特徴
- 2沿線利用可
- 駅まで平坦
- 小学校徒歩10分以内
- スーパーが近い
- 閑静な住宅街
- 市街地が近い
- 都市近郊
- 通風良好
- 陽当り良好
- 3階建以上
- 平坦地
- 即入居可
物件詳細情報
| 価格 | 2,280万円 | 間取り | 3LDK |
|---|---|---|---|
| 物件種別 | 新築一戸建て | ||
| 所在地 | 大阪府八尾市楠根町2丁目 | ||
| アクセス |
|
||
| 建物面積 | 87.48㎡ | 駐車場 | あり 普通:1台 |
| 築年月 | 2025年(令和7年)03月築 | 建築確認 | |
| 建物構造 | 木造 3階建 | 工法 | |
| 主要採光 | 西向 | バルコニー | |
| 保証・評価 | |||
| 土地面積 | 46.96㎡(14.20坪) | 接道 | 西側幅 約4.0m 間口 約4.59m |
| 私道 | 別:9.18㎡ | セットバック | |
| 地目 | 宅地 | 地勢 | |
| 権利 | 所有権 |
||
| 都市計画 | 市街化区域 |
用途地域 | 2種中高 |
| 建ぺい/容積率 | 60% / 200% | 土地国土法 | |
| 許可番号 | 建築基準法 | ||
| 法令制限 | 準防火地域・道路斜線制限/第2種高度地区/日影制限 | ||
| 小学区 | 用和小学校 徒歩7分 (約500m) | 中学区 | 八尾中学校 徒歩11分 (約850m) |
| 現況 | 空 | 引渡 | 即 |
| その他費用 | |||
| 周辺環境 | 八尾市立用和小学校 徒歩7分 (約520m) 八尾市立八尾中学校 徒歩11分 (約880m) セブンイレブン 八尾光町1丁目店 徒歩13分 (約970m) コノミヤ近鉄八尾駅前店 徒歩13分 (約980m) ドラッグストア マツモトキヨシ 八尾店 徒歩13分 (約970m) 東朋八尾病院 徒歩12分 (約900m) 八尾北本町郵便局 徒歩11分 (約850m) 三十三銀行 八尾支店 徒歩14分 (約1110m) 緑ヶ丘 ふじ保育園 徒歩12分 (約920m) 北本町第1公園(パンダ公園) 徒歩14分 (約1090m) |
||
| 備考 | |||
| 物件番号 | 4358029 | 取引態様 | 媒介 |
取扱店舗情報
| 電話番号 | 072-973-6177 |
|---|---|
| 所在地 | 〒581-0801 大阪府八尾市山城町2丁目1-28 山城ビル1F |
| 営業時間 | 9:00~18:00 |
| 定休日 | 水曜日、年末年始 |
| 宅建免許番号 | 大阪府知事(1)第64057号 |
| アクセス | 店舗への地図はこちら |

来店ご予約
大阪府八尾市で価格が似ている物件はこちら
- 大阪府
マイページ物件数 - 16,167件
最近見た物件
大阪府新築一戸建て新着物件
-
-

-
- 新築一戸建て
- 4,480万円
-
松原市天美我堂2丁目
-
大阪市御堂筋線北花田駅
-
-
-

-
- 新築一戸建て
- 4,480万円
-
松原市天美我堂2丁目
-
大阪市御堂筋線北花田駅
-
-
-

-
- 新築一戸建て
- 2,880万円
-
堺市美原区平尾
-
近鉄長野線喜志駅
-
-
-

-
- 新築一戸建て
- 4,530万円
-
堺市西区堀上緑町2丁
-
南海電鉄泉北線深井駅
-
-
-

-
- 新築一戸建て
- 3,380万円
-
堺市美原区平尾
-
近鉄長野線喜志駅
-
-
-

-
- 新築一戸建て
- 3,280万円
-
堺市美原区平尾
-
近鉄長野線喜志駅
-
-
-

-
- 新築一戸建て
- 3,980万円
-
東大阪市南上小阪
-
近鉄大阪線弥刀駅
-
- お近くの店舗を探す
-
おすすめ物件
-
-

-
- 新築一戸建て
- 3,080万円
-
高槻市西町
-
阪急電鉄京都線富田
-
-
-

-
- 新築一戸建て
- 2,948万円
-
泉大津市松之浜町2丁目
-
南海電鉄本線松ノ浜
-
-
-

-
- 新築一戸建て
- 3,480万円
-
茨木市橋の内1丁目
-
阪急電鉄京都線総持寺
-
-
-

-
- 新築一戸建て
- 3,880万円
-
茨木市橋の内3丁目
-
阪急電鉄京都線総持寺
-
-
-

-
- 新築一戸建て
- 3,899万円
-
高槻市川西町1丁目
-
JR東海道線高槻
-
-
-

-
- 新築一戸建て
- 5,180万円
-
高槻市北昭和台町
-
阪急電鉄京都線総持寺
-
-
-

-
- 新築一戸建て
- 3,680万円
-
高槻市津之江町2丁目
-
JR東海道線摂津富田
-
-
-

-
- 新築一戸建て
- 3,480万円
-
高槻市津之江町1丁目
-
JR東海道線高槻
-
-
-

-
- 新築一戸建て
- 5,998万円
-
高槻市川西町3丁目
-
JR東海道線高槻
-
-
-

-
- 新築一戸建て
- 3,080万円
-
泉大津市下条町
-
南海電鉄本線泉大津
-














担当エージェント:庄司 海秀
弊社は不動産売買専門の仲介会社とし、全国700店舗展開中のハウスドゥ近鉄八尾北でございます。
購入・売却に関する様々なご相談承っております。
弊社は他社様が掲載されている物件でもご紹介可能です。お気軽にご相談くださいませ。