羽島市竹鼻町の新築戸建
掲載情報更新日:2025年12月09日 次回更新予定日:2025年12月23日
- 2,090万円
-
- 借入ご希望金額
万円 - 借入期間
年 - 借入金利
% - 月々のお支払い金額
円
- 借入ご希望金額
※ 月々のお支払例は目安の試算となりますので、実際の金額とは異なる場合がございます。詳しくは店舗までお問合わせください。
- 羽島市竹鼻町
-
名鉄竹鼻・羽島線『竹鼻』 徒歩8分 (約640m)
羽島市竹鼻町一戸建て | 物件情報
物件の設備
- 公営水道
- 公共下水
- 都市ガス
- 給湯
- 浄水器
- コンロ三口
- カウンターキッチン
- システムキッチン
- バス
- 浴室暖房
- 浴室乾燥機
- 浴室に窓
- トイレ
- 温水洗浄便座
- 洗髪洗面化粧台
- 人感照明センサー
- 省エネ給湯器
- ディンプルキー
- モニタ付インターホン
- 防犯カメラ
- 火災警報器/報知機
- LDK15畳以上
- 和室
- 複層ガラス
- 全居室複層ガラス
- 24時間換気システム
- クローゼット
- 床下収納
- 全居室収納
物件の特徴
- 小学校徒歩10分以内
- セットバック済
- 南側道路面す
- 平坦地
- 外壁サイディング
- 設計住宅性能評価付
- 即入居可
物件詳細情報
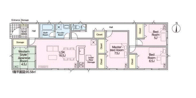
| 価格 | 2,090万円 | 間取り | 4LDK |
|---|---|---|---|
| 物件種別 | 新築一戸建て | ||
| 所在地 | 岐阜県羽島市竹鼻町字下堤外3208番8 1号棟 | ||
| アクセス |
|
||
| 建物面積 | 95.58㎡ | 駐車場 | あり 普通:3台 |
| 築年月 | 2025年(令和7年)09月築 | 建築確認 | 第HPA-25-05693-1号 |
| 建物構造 | 木造 1階建 | 工法 | |
| 主要採光 | バルコニー | ||
| 保証・評価 | 設計住宅性能評価書 |
||
| 分譲情報 | 【販売戸数】:3戸 |
||
| 土地面積 | 227.81㎡(68.91坪) | 接道 | 西側(公道)幅 約3.8m 間口 約8.36m 南側(公道)幅 約3.6m 間口 約26.98m |
| 私道 | セットバック | 済 | |
| 地目 | 宅地 | 地勢 | |
| 権利 | 所有権 |
||
| 都市計画 | 市街化区域 |
用途地域 | 1種住居 |
| 建ぺい/容積率 | 60% / 160% | 土地国土法 | |
| 許可番号 | 建築基準法 | ||
| 法令制限 | 宅地造成工事規制区域・法22条区域・特別工業地区 | ||
| 小学区 | 竹鼻小学校 徒歩9分 (約700m) | 中学区 | 竹鼻中学校 徒歩4分 (約280m) |
| 現況 | 完工済 | 引渡 | 即 |
| その他費用 | |||
| 備考 | ◇TVアンテナ・網戸・居室照明・カーテンレール・雨戸別途。 ◇敷地内に電柱及び支線が入る場合があります。 ◇図面と現況が異なる場合は現況優先にてご了承願います。 ※建蔽率:角地緩和、容積率:前面道路幅員制限。 |
||
| 物件番号 | 4375626 | 取引態様 | 媒介 |
取扱店舗情報
ハウスドゥ 岐阜笠松 株式会社極東 不動産事業部 店舗詳細ページへ
| 電話番号 | 058-322-8811 |
|---|---|
| 所在地 | 〒501-6093 岐阜県羽島郡笠松町緑町151 |
| 営業時間 | 9:00~18:00 |
| 定休日 | 水曜日 年末年始 夏季休暇 |
| 宅建免許番号 | 岐阜県知事(2)第4981号 |
| アクセス | 店舗への地図はこちら |

来店ご予約
岐阜県羽島市で価格が似ている物件はこちら
- 岐阜県
マイページ物件数 - 4,621件
最近見た物件
-
-

-
- 中古一戸建て
- 580万円
-
高知市長浜
-
JR土讃線高知
-
岐阜県新築一戸建て新着物件
-
-

-
- 新築一戸建て
- 2,980万円
-
羽島郡笠松町田代
-
名鉄竹鼻・羽島線柳津駅
-
-
-

-
- 新築一戸建て
- 2,580万円
-
美濃加茂市太田町
-
JR高山本線美濃太田駅
-
-
-

-
- 新築一戸建て
- 2,190万円
-
可児郡御嵩町中
-
名鉄広見線御嵩口駅
-
-
-

-
- 新築一戸建て
- 2,390万円
-
多治見市希望ケ丘3丁目
-
JR太多線根本駅
-
-
-

-
- 新築一戸建て
- 2,390万円
-
多治見市希望ケ丘3丁目
-
JR太多線根本駅
-
-
-

-
- 新築一戸建て
- 2,480万円
-
各務原市川島小網町
-
ふれあいバススポーツ公園前
-
-
-

-
- 新築一戸建て
- 2,480万円
-
各務原市川島小網町
-
ふれあいバススポーツ公園前
-
- お近くの店舗を探す
-
おすすめ物件
-
-

-
- 新築一戸建て
- 2,280万円
-
羽島郡笠松町円城寺
-
名鉄名古屋本線笠松
-
-
-

-
- 新築一戸建て
- 3,450万円
-
岐阜市旦島5丁目
-
JR東海道本線西岐阜
-
-
-

-
- 新築一戸建て
- 3,980万円
-
岐阜市加納奥平町1丁目
-
JR東海道本線岐阜
-
-
-

-
- 新築一戸建て
- 4,280万円
-
岐阜市六条江東2丁目
-
JR東海道本線岐阜
-
-
-

-
- 新築一戸建て
- 2,290万円
-
大垣市笠木町
-
JR東海道本線大垣
-
-
-

-
- 新築一戸建て
- 2,890万円
-
岐阜市日野南3丁目
-
JR東海道本線岐阜
-
-
-

-
- 新築一戸建て
- 4,280万円
-
大垣市林町1丁目
-
JR東海道本線大垣
-
-
-

-
- 新築一戸建て
- 2,680万円
-
大垣市昼飯町
-
JR東海道本線大垣
-
-
-

-
- 新築一戸建て
- 4,050万円
-
大垣市藤江町3丁目
-
JR東海道本線大垣
-
-
-

-
- 新築一戸建て
- 2,990万円
-
岐阜市下奈良2丁目
-
JR東海道本線西岐阜
-




















