瀬田5丁目 新築戸建 1号棟
掲載情報更新日:2025年10月27日 次回更新予定日:2025年11月10日
- 1億2,200万円
-
- 借入ご希望金額
万円 - 借入期間
年 - 借入金利
% - 月々のお支払い金額
円
- 借入ご希望金額
※ 月々のお支払例は目安の試算となりますので、実際の金額とは異なる場合がございます。詳しくは店舗までお問合わせください。
- 世田谷区瀬田5丁目
-
東急田園都市線『用賀』 徒歩15分 (約1200m)
瀬田5丁目 新築戸建 1号棟一戸建て | 物件情報
■整然とした街並み・閑静な住宅街 瀬田5丁目 ♪ ■1LDKS+カースペース付♪
《Access》
・田園都市線「用賀駅」歩15分
《Point》
・瀬田5丁目 緑豊かで閑静な住宅街
・ゆとり広さのある16帖超えのLDK空間
・機能性を重視した間取り設計
・納戸+WIC+SICで豊富な収納が可能♪
・駐車も楽々駐車スペース付
・南向き 日当たり・通風良好◎
・2面採光で明るい光が取り込めます
物件の設備
- 電気
- 公営水道
- 公共下水
- 都市ガス
- 給湯
- 浄水器
- 食器洗浄乾燥機
- コンロ三口
- グリル
- カウンターキッチン
- システムキッチン
- バス
- オートバス
- バス1坪以上
- 追焚機能
- 浴室暖房
- 浴室乾燥機
- 浴室に窓
- トイレ
- トイレ2箇所
- 温水洗浄便座
- 室内洗濯機置場
- 洗髪洗面化粧台
- 洗面所独立
- 省エネ給湯器
- モニタ付インターホン
- 火災警報器/報知機
- LDK15畳以上
- 2面採光
- 全室2面採光
- 複層ガラス
- 全居室複層ガラス
- フローリング
- 全室フローリング
- シャッター雨戸
- 24時間換気システム
- クローゼット
- ウォークインクローゼット
- 納戸
- 床下収納
- 全居室収納
- シューズインクローク
- 庭
- 宅配BOX
物件の特徴
- 南向
- 地盤調査済
- 耐震構造
- 総合病院徒歩10分以内
- 前道6m以上
- 南側道路面す
- 緑豊かな住宅地
- 閑静な住宅街
- 周辺交通量少なめ
- 眺望良好
- 通風良好
- 陽当り良好
- 2階建
- フラット35Sに対応
物件詳細情報
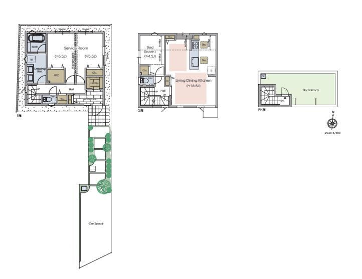
| 価格 | 1億2,200万円 | 間取り | 1LDK+S |
|---|---|---|---|
| 物件種別 | 新築一戸建て | ||
| 所在地 | 東京都世田谷区瀬田5丁目 1号棟 | ||
| アクセス |
|
||
| 建物面積 | 公90.66㎡ | 駐車場 | あり 普通:1台 |
| 築年月 | 2025年(令和7年)07月築 | 建築確認 | |
| 建物構造 | 木造 2階建 | 工法 | |
| 主要採光 | 南向 | バルコニー | |
| 保証・評価 | |||
| 土地面積 | 公95.2㎡(28.79坪) | 接道 | 南側(公道)幅 約6.0m |
| 私道 | セットバック | ||
| 地目 | 宅地 | 地勢 | |
| 権利 | 所有権 |
||
| 都市計画 | 市街化区域 |
用途地域 | 1種低層 |
| 建ぺい/容積率 | 50% / 100% | 土地国土法 | |
| 許可番号 | 建築基準法 | ||
| 法令制限 | |||
| 小学区 | 瀬田小学校 徒歩15分 (約1160m) | 中学区 | 瀬田中学校 徒歩14分 (約1120m) |
| 現況 | 空 | 引渡 | 相談 |
| その他費用 | |||
| 周辺環境 | グリーンヒルオカモト(スーパー) 徒歩6分 (約430m) 公益財団法人日産厚生会玉川病院 徒歩6分 (約440m) 青い空保育園 徒歩7分 (約540m) 世田谷瀬田郵便局 徒歩9分 (約650m) 高島屋二子玉川 徒歩12分 (約960m) 世田谷区立瀬田小学校 徒歩15分 (約1160m) 東京都立砧公園 徒歩14分 (約1080m) ココカラファイン二子玉川店 徒歩14分 (約1090m) 二子玉川緑地運動場 徒歩14分 (約1120m) 世田谷区立瀬田中学校 徒歩14分 (約1120m) |
||
| 備考 | |||
| 物件番号 | 4376726 | 取引態様 | 媒介 |
取扱店舗情報
ハウスドゥ 千歳船橋 R2-CONNECT株式会社 店舗詳細ページへ
| 電話番号 | 03-5799-7621 |
|---|---|
| 所在地 | 〒156-0054 東京都世田谷区桜丘5丁目47-19 |
| 営業時間 | 9:00~19:00 |
| 定休日 | 火曜日、水曜日 |
| 宅建免許番号 | 東京都知事(1)第107079号 |
| アクセス | 店舗への地図はこちら |

来店ご予約
東京都世田谷区で価格が似ている物件はこちら
- 東京都
マイページ物件数 - 5,476件
東京都新築一戸建て新着物件
- お近くの店舗を探す
-
おすすめ物件
-
-

-
- 新築一戸建て
- 7,190万円
-
狛江市東野川2丁目
-
小田急小田原線喜多見
-
-
-

-
- 新築一戸建て
- 2,980万円
-
八王子市下恩方町
-
JR中央本線高尾
-
-
-

-
- 新築一戸建て
- 7,680万円
-
世田谷区北烏山4丁目
-
京王線千歳烏山
-
-
-

-
- 新築一戸建て
- 7,880万円
-
横浜市青葉区たちばな台2丁目
-
東急田園都市線青葉台
-
-
-

-
- 新築一戸建て
- 2,998万円
-
八王子市大和田町7丁目
-
JR中央本線八王子
-
-
-

-
- 新築一戸建て
- 1億4,990万円
-
世田谷区上馬5丁目
-
東急田園都市線駒沢大学
-
-
-

-
- 新築一戸建て
- 5,780万円
-
調布市深大寺東町4丁目
-
京王線つつじヶ丘
-
-
-

-
- 新築一戸建て
- 6,780万円
-
三鷹市中原2丁目
-
京王線つつじヶ丘
-
-
-

-
- 新築一戸建て
- 2,980万円
-
八王子市下恩方町
-
JR中央本線高尾
-
-
-

-
- 新築一戸建て
- 2,950万円
-
八王子市諏訪町
-
JR中央本線西八王子
-













◆家事同線や機能性を重視、高性能住宅をぜひ一度、ご覧ください◆
◆即日ご案内致します♪気軽にお問合せください♪