西堤本通東3丁目_新築戸建_高井田駅
掲載情報更新日:2025年10月20日 次回更新予定日:2025年11月03日
- 4,380万円
-
- 借入ご希望金額
万円 - 借入期間
年 - 借入金利
% - 月々のお支払い金額
円
- 借入ご希望金額
※ 月々のお支払例は目安の試算となりますので、実際の金額とは異なる場合がございます。詳しくは店舗までお問合わせください。
- 東大阪市西堤本通東3丁目
-
大阪市中央線『高井田』 徒歩13分 (約1040m)
JRおおさか東線『高井田中央』 徒歩14分 (約1120m)
近鉄難波・奈良線『河内小阪』 徒歩19分 (約1520m)
西堤本通東3丁目_新築戸建_高井田駅一戸建て | 物件情報
物件の設備
- 公営水道
- 公共下水
- 都市ガス
- 給湯
- ガスコンロ付
- カウンターキッチン
- システムキッチン
- バス
- 追焚機能
- 浴室乾燥機
- 浴室に窓
- トイレ
- トイレ2箇所
- 温水洗浄便座
- 高機能トイレ
- 室内洗濯機置場
- 洗髪洗面化粧台
- ディンプルキー
- モニタ付インターホン
- LDK15畳以上
- 全室フローリング
- クローゼット
物件の特徴
- 駅まで平坦
- 整備された歩道
- 緑豊かな住宅地
- スーパーが近い
- 閑静な住宅街
- 市街地が近い
- 通風良好
- 陽当り良好
- 2階建
- 平坦地
物件詳細情報
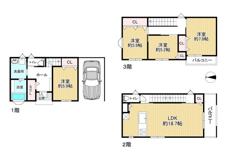
| 価格 | 4,380万円 | 間取り | 4LDK |
|---|---|---|---|
| 物件種別 | 新築一戸建て | ||
| 所在地 | 大阪府東大阪市西堤本通東3丁目 | ||
| アクセス |
|
||
| 建物面積 | 公127.91㎡ | 駐車場 | なし |
| 築年月 | 2025年(令和7年)10月予定 | 建築確認 | ONEX確建 東大 2520174号 |
| 建物構造 | 木造 2階建 | 工法 | |
| 主要採光 | 南向 | バルコニー | |
| 保証・評価 | |||
| 土地面積 | 公70.02㎡(21.18坪) | 接道 | 西側(公道)幅 約4.7m |
| 私道 | セットバック | 無 | |
| 地目 | 宅地 | 地勢 | 平坦 |
| 権利 | 所有権 |
||
| 都市計画 | 市街化区域 |
用途地域 | 1種住居 |
| 建ぺい/容積率 | 60% / 200% | 土地国土法 | 届出不要 |
| 許可番号 | 建築基準法 | ||
| 法令制限 | 準防火地域 | ||
| 小学区 | 中学区 | ||
| 現況 | 建築中 | 引渡 | 期日指定:2025年10月下旬 |
| その他費用 | |||
| 周辺環境 | 東大阪市立新喜多中学校 徒歩10分 (約730m) セブン-イレブン_東大阪西堤本通西1丁目店 徒歩14分 (約1070m) |
||
| 備考 | |||
| 物件番号 | 4385753 | 取引態様 | 媒介 |
取扱店舗情報
ハウスドゥ 東大阪日下 アルファエステート株式会社 店舗詳細ページへ
| 電話番号 | 072-983-5716 |
|---|---|
| 所在地 | 〒579-8003 大阪府東大阪市日下町4丁目1-42マンハイムグラン石切138号 |
| 営業時間 | 9:00~18:00 (営業時間外でもご対応可能) |
| 定休日 | 火曜日、水曜日、夏季休暇、年末年始休暇 |
| 宅建免許番号 | 大阪府知事(1)第65201号 |
| アクセス | 店舗への地図はこちら |

来店ご予約
大阪府東大阪市で価格が似ている物件はこちら
- 大阪府
マイページ物件数 - 14,875件
最近見た物件
-
-

-
- 中古一戸建て
- 1,580万円
-
和歌山市新堀東2丁目
-
JR紀勢本線宮前
-
-
-

-
- 中古一戸建て
- 3,380万円
-
大垣市東町1丁目
-
樽見鉄道東大垣
-
大阪府新築一戸建て新着物件
-
-

-
- 新築一戸建て
- 5,480万円
-
茨木市鮎川4丁目
-
阪急電鉄京都線茨木市駅
-
-
-

-
- 新築一戸建て
- 3,780万円
-
高槻市安岡寺町4丁目
-
阪急電鉄京都線高槻市駅
-
-
-

-
- 新築一戸建て
- 3,880万円
-
高槻市安岡寺町4丁目
-
阪急電鉄京都線高槻市駅
-
-
-

-
- 新築一戸建て
- 5,380万円
-
豊中市本町9丁目
-
阪急電鉄宝塚線豊中駅
-
-
-

-
- 新築一戸建て
- 4,980万円
-
豊中市宝山町
-
阪急電鉄宝塚線岡町駅
-
-
-

-
- 新築一戸建て
- 4,380万円
-
高槻市日吉台七番町
-
JR東海道線高槻駅
-
-
-

-
- 新築一戸建て
- 2,898万円
-
高槻市東五百住町3丁目
-
阪急電鉄京都線富田駅
-
- お近くの店舗を探す
-
おすすめ物件
-
-

-
- 新築一戸建て
- 3,980万円
-
泉大津市条南町
-
南海電鉄本線松ノ浜
-
-
-

-
- 新築一戸建て
- 4,580万円
-
堺市北区長曽根町
-
大阪市御堂筋線新金岡
-
-
-

-
- 新築一戸建て
- 5,180万円
-
大阪市住之江区粉浜西3丁目
-
南海電鉄本線住吉大社
-
-
-

-
- 新築一戸建て
- 2,599万円
-
泉大津市東助松町3丁目
-
南海電鉄本線北助松
-
-
-

-
- 新築一戸建て
- 4,780万円
-
堺市北区新金岡町5丁
-
大阪市御堂筋線新金岡
-
-
-

-
- 新築一戸建て
- 4,480万円
-
堺市北区金岡町
-
大阪市御堂筋線新金岡
-
-
-

-
- 新築一戸建て
- 2,680万円
-
和泉市池上町4丁目
-
JR阪和線信太山
-
-
-

-
- 新築一戸建て
- 2,380万円
-
松原市天美北3丁目
-
近鉄南大阪線河内天美
-
-
-

-
- 新築一戸建て
- 4,580万円
-
大阪市淀川区新北野3丁目
-
JR東海道線塚本
-





























