新潟市東区中木戸の新築戸建
掲載情報更新日:2026年01月26日 次回更新予定日:2026年02月09日
- 2,980万円
-
- 借入ご希望金額
万円 - 借入期間
年 - 借入金利
% - 月々のお支払い金額
円
- 借入ご希望金額
※ 月々のお支払例は目安の試算となりますので、実際の金額とは異なる場合がございます。詳しくは店舗までお問合わせください。
- 新潟市東区中木戸
-
JR越後線『新潟』 徒歩50分 (約4000m)
新潟交通(バス)『「上木戸新町」』 徒歩6分 (約480m)
新潟市東区中木戸一戸建て | 物件情報
不動産の売買はぜひ「ハウスドゥ女池」にお任せください!ワンストップで全て解決♪
◆新潟市中央区の不動産のことなら『ハウスドゥ女池』へ◆
全国約700店舗展開中!ハウスドゥの地域密着型ネットワーク
×
規格住宅・自由設計両方対応可能!ワンストップ型店舗
土地探し・新築・リフォーム・売却・お引越しに至るまで
不動産に関するご相談はハウスドゥ女池で全て解決!
現在建築中!同社モデルハウスはいつでもご案内可能です!
お気軽にお問い合わせ下さい【025-288-5891】
≪物件おすすめポイント≫
■牡丹山小/木戸中エリア!
■駐車2台可能(※車種によります)
■大容量ウォークインクローゼット
■LDK18畳で広々♪
■ホスクリーン付きランドリールーム
物件の設備
- 電気
- 公営水道
- 公共下水
- 都市ガス
- 給湯
- 浄水器
- コンロ三口
- カウンターキッチン
- システムキッチン
- 浴室暖房
- 浴室乾燥機
- 浴室に窓
- トイレ2箇所
- 温水洗浄便座
- 洗髪洗面化粧台
- 室内物干機
- BS
- カードキー
- ディンプルキー
- モニタ付インターホン
- 火災警報器/報知機
- LDK18畳以上
- 全室2面採光
- 複層ガラス
- フローリング
- 24時間換気システム
- ウォークインクローゼット
- 床下収納
- 全居室収納
- シューズインクローク
物件の特徴
- ノンホルムアルデヒド
- 耐震構造
- 2階建
- 外壁サイディング
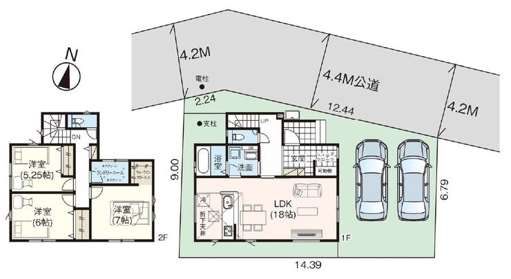
物件詳細情報
| 価格 | 2,980万円 | 間取り | 3LDK |
|---|---|---|---|
| 物件種別 | 新築一戸建て | ||
| 所在地 | 新潟県新潟市東区中木戸 | ||
| アクセス |
|
||
| 建物面積 | 98.12㎡ | 駐車場 | あり 普通:2台 |
| 築年月 | 2025年(令和7年)10月予定 | 建築確認 | 第HPA-25-07528-1号 |
| 建物構造 | 木造 2階建 | 工法 | |
| 主要採光 | バルコニー | ||
| 保証・評価 | |||
| 土地面積 | 119.6㎡(36.17坪) | 接道 | 北側(公道)幅 約4.2m |
| 私道 | セットバック | ||
| 地目 | 宅地 | 地勢 | |
| 権利 | 所有権 |
||
| 都市計画 | 市街化区域 |
用途地域 | 準工業 |
| 建ぺい/容積率 | 60% / 200% | 土地国土法 | |
| 許可番号 | 建築基準法 | ||
| 法令制限 | 都市再生特別措置法・景観法・航空法・宅地造成工事規制区域・宅地造成及び特定盛土等規制法・日影制限有・法22条区域・道路斜線制限・隣地斜線制限 | ||
| 小学区 | 牡丹山小学校 徒歩17分 (約1300m) | 中学区 | 木戸中学校 徒歩13分 (約1000m) |
| 現況 | 建築中 | 引渡 | 期日指定:2025年11月上旬以降 |
| その他費用 | |||
| 周辺環境 | 牡丹山小学校 徒歩15分 (約1180m) 木戸中学校 徒歩14分 (約1060m) ウオロク 牡丹山店 徒歩8分 (約640m) ケーズデンキ新潟河渡店 徒歩12分 (約950m) 原信セントラルマーケット河渡店 徒歩11分 (約820m) 新潟牡丹山郵便局 徒歩10分 (約750m) ドラッグトップス 上木戸店 徒歩11分 (約810m) 新潟市東区役所 徒歩13分 (約1010m) 第四北越銀行木戸支店 徒歩13分 (約980m) 新潟東警察署 徒歩14分 (約1050m) |
||
| 備考 | ■駐車場:2台可能(※車種によります) *電波障害等によるケーブルTV、共聴アンテナの申し込みはお客様の負担となります。 *電気供給の為、敷地内に電柱及び支線が入る場合があります。 |
||
| 物件番号 | 4386290 | 取引態様 | 媒介 |
取扱店舗情報
ハウスドゥ 女池 株式会社リアライズ・コーポレーション 店舗詳細ページへ
| 電話番号 | 025-288-5891 |
|---|---|
| 所在地 | 〒950-0946 新潟県新潟市中央区女池西2-2-9 |
| 営業時間 | 9:30~18:30 |
| 定休日 | 水曜日 |
| 宅建免許番号 | 新潟県知事(4)第4864号 |
| アクセス | 店舗への地図はこちら |

来店ご予約
新潟県新潟市東区で価格が似ている物件はこちら
- 新潟県
マイページ物件数 - 1,697件
最近見た物件
-
-

-
- 土地
- 729万円
-
各務原市緑苑北2丁目
-
JR高山本線鵜沼
-
-
-

-
- 中古一戸建て
- 3,200万円
-
北九州市八幡西区藤原1丁目
-
JR筑豊本線本城
-
-
-

-
- 土地
- 1,320万円
-
額田郡幸田町大字菱池字大山
-
JR東海道本線幸田
-
新潟県新築一戸建て新着物件
-
-

-
- 新築一戸建て
- 2,880万円
-
新潟市東区物見山4丁目
-
JR白新線大形駅
-
-
-

-
- 新築一戸建て
- 2,980万円
-
新潟市東区物見山4丁目
-
JR白新線大形駅
-
-
-

-
- 新築一戸建て
- 3,380万円
-
新潟市東区中山3丁目
-
JR白新線新潟駅
-
-
-

-
- 新築一戸建て
- 2,780万円
-
新潟市西区坂井東5丁目
-
JR越後線寺尾駅
-
-
-

-
- 新築一戸建て
- 2,980万円
-
新潟市西区坂井東5丁目
-
JR越後線寺尾駅
-
-
-

-
- 新築一戸建て
- 2,980万円
-
新潟市西区寺尾前通1丁目
-
JR越後線小針駅
-
-
-

-
- 新築一戸建て
- 3,080万円
-
新潟市西区寺尾前通1丁目
-
JR越後線小針駅
-
- お近くの店舗を探す
-
おすすめ物件
-
-

-
- 新築一戸建て
- 6,500万円
-
上越市土橋
-
妙高はねうまライン春日山
-












担当エージェント:佐藤 俊範
当店は株式会社リアライズ・コーポレーションが運営する「新潟市中央区」に特化した、地域密着型の不動産会社です。
全国約700店舗展開中の古田さんCMでおなじみの「ハウスドゥ」また、新潟市中央区の「ジブンハウス」加盟店である当店は、新築のご相談から土地探し、リフォーム・不動産のご売却、更にはお引越しに至るまで「ワンストップ」でお客様の「お家探し」を全力サポート致します!
店内はお客様がゆったり過ごせるカフェのような空間をご提供♪ぜひお気軽にお越しください!