明石市二見町西二見の新築戸建
掲載情報更新日:2025年10月13日 次回更新予定日:2025年10月27日
- 2,850万円
-
- 借入ご希望金額
万円 - 借入期間
年 - 借入金利
% - 月々のお支払い金額
円
- 借入ご希望金額
※ 月々のお支払例は目安の試算となりますので、実際の金額とは異なる場合がございます。詳しくは店舗までお問合わせください。
- 明石市二見町西二見
-
山陽電鉄本線『西二見』 徒歩9分 (約720m)
山陽電鉄本線『東二見』 徒歩14分 (約1120m)
明石市二見町西二見一戸建て | 物件情報
魚住町・二見町に限定して物件を取り扱っています。お気軽にお問合せください!!
スーパー・学校・公園などが徒歩圏内。子育て世帯にも嬉しい環境です。
物件の設備
- 公営水道
- 下水道
- 都市ガス
- 給湯
- コンロ三口
- カウンターキッチン
- システムキッチン
- バス
- ユニットバス
- トイレ
- トイレ2箇所
- 温水洗浄便座
- 室内洗濯機置場
- 洗髪洗面化粧台
- 洗面所独立
- LDK15畳以上
- フローリング
- クローゼット
- 全居室収納
- バルコニー
物件の特徴
- 3階建以上
物件詳細情報
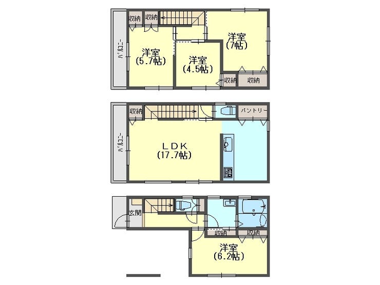
価格 | 2,850万円 | 間取り | 4LDK |
---|---|---|---|
物件種別 | 新築一戸建て | ||
所在地 | 兵庫県明石市二見町西二見767-29 | ||
アクセス |
|
||
建物面積 | 109.74㎡ | 駐車場 | あり 普通:1台 |
築年月 | 2025年(令和7年)06月築 | 建築確認 | HK24-41437 |
建物構造 | 木造 (一部 木造 ) 3階建 | 工法 | |
主要採光 | バルコニー | ||
保証・評価 | |||
土地面積 | 公60.55㎡(18.31坪) | 接道 | 北側(公道)幅 約5.9m 間口 約5.90m |
私道 | セットバック | ||
地目 | 宅地 | 地勢 | |
権利 | 所有権 |
||
都市計画 | 市街化区域 |
用途地域 | 2種中高 |
建ぺい/容積率 | 60% / 200% | 土地国土法 | |
許可番号 | 建築基準法 | ||
法令制限 | |||
小学区 | 二見小学校 徒歩11分 (約880m) | 中学区 | 二見中学校 徒歩7分 (約560m) |
現況 | 空 | 引渡 | 相談 |
その他費用 | |||
周辺環境 | 明石リハビリテーション 徒歩3分 (約220m) ローソン西二見店 徒歩5分 (約350m) アルカ 二見 徒歩5分 (約370m) みらい保育園 徒歩6分 (約460m) イトーヨーカドー明石店 徒歩7分 (約560m) 二見郵便局 徒歩9分 (約710m) 二見西小学校 徒歩9分 (約670m) アベイル二見店 徒歩9分 (約690m) 山電西二見駅 徒歩12分 (約930m) 二見中学校 徒歩11分 (約820m) |
||
備考 | |||
物件番号 | 4389882 | 取引態様 | 媒介 |
取扱店舗情報
ハウスドゥ 明石魚住 優建グループジャパン株式会社 店舗詳細ページへ
電話番号 | 078-941-7775 |
---|---|
所在地 | 〒674-0074 兵庫県明石市魚住町清水437番地2 |
営業時間 | 9:00~19:00 |
定休日 | 第2・第4火曜日、水曜日 |
宅建免許番号 | 兵庫県知事(2)第401586号 |
アクセス | 店舗への地図はこちら |
来店ご予約
兵庫県明石市で価格が似ている物件はこちら
- 兵庫県
マイページ物件数 - 2,792件
最近見た物件
-
-
-
- 新築一戸建て
- 4,190万円
-
福岡市早良区飯倉6丁目
-
福岡市七隈線金山
-
-
-
-
- 新築一戸建て
- 3,390万円
-
松山市桑原3丁目
-
伊予鉄道横河原線福音寺
-
-
-
-
- 中古マンション
- 2,590万円
-
松山市室町2丁目
-
伊予鉄道郡中線松山市
-
兵庫県新築一戸建て新着物件
-
-
-
- 新築一戸建て
- 2,690万円
-
加古郡播磨町本荘4丁目
-
山陽電鉄本線播磨町駅
-
-
-
-
- 新築一戸建て
- 3,090万円
-
明石市魚住町西岡
-
山陽電鉄本線東二見駅
-
-
-
-
- 新築一戸建て
- 3,798万円
-
明石市大久保町高丘5丁目
-
JR山陽本線大久保駅
-
-
-
-
- 新築一戸建て
- 3,080万円
-
明石市貴崎2丁目
-
山陽電鉄本線林崎松江海岸駅
-
-
-
-
- 新築一戸建て
- 2,890万円
-
明石市東朝霧丘
-
山陽電鉄本線大蔵谷駅
-
-
-
-
- 新築一戸建て
- 3,298万円
-
明石市魚住町清水
-
JR山陽本線土山駅
-
-
-
-
- 新築一戸建て
- 3,180万円
-
明石市二見町東二見
-
山陽電鉄本線東二見駅
-
- お近くの店舗を探す
-
おすすめ物件
-
-
-
- 新築一戸建て
- 3,480万円
-
加古川市新神野2丁目
-
JR加古川線神野
-
-
-
-
- 新築一戸建て
- 2,798万円
-
姫路市上大野4丁目
-
JR播但線野里
-
-
-
-
- 新築一戸建て
- 1,680万円
-
揖保郡太子町太田
-
JR山陽本線網干
-
-
-
-
- 新築一戸建て
- 3,980万円
-
尼崎市武庫町2丁目
-
阪急電鉄神戸線武庫之荘
-
-
-
-
- 新築一戸建て
- 2,898万円
-
姫路市上大野4丁目
-
JR播但線野里
-
-
-
-
- 新築一戸建て
- 2,680万円
-
姫路市上大野4丁目
-
JR山陽本線姫路
-
-
-
-
- 新築一戸建て
- 2,080万円
-
高砂市百合丘
-
JR山陽本線宝殿
-
-
-
-
- 新築一戸建て
- 3,580万円
-
姫路市飾磨区三和町
-
山陽電鉄本線飾磨
-
-
-
-
- 新築一戸建て
- 1,680万円
-
揖保郡太子町太田
-
JR山陽本線網干
-
-
-
-
- 新築一戸建て
- 1,680万円
-
揖保郡太子町太田
-
JR山陽本線網干
-
初めてのマイホーム探しや、その他住宅ローンなど、各種ご相談もお気軽にどうぞ!平日昼夜問わずご案内いたします。お気軽にお電話ください。