富山市本郷町の新築戸建
掲載情報更新日:2025年10月21日 次回更新予定日:2025年11月04日
- 2,980万円
-
- 借入ご希望金額
万円 - 借入期間
年 - 借入金利
% - 月々のお支払い金額
円
- 借入ご希望金額
※ 月々のお支払例は目安の試算となりますので、実際の金額とは異なる場合がございます。詳しくは店舗までお問合わせください。
- 富山市本郷町
-
富山地鉄不二越上滝線『朝菜町』 徒歩21分 (約1680m)
富山市本郷町一戸建て | 物件情報
【日常生活の中で良さを再実感】あちこちにこだわりのある住まい
・食品スーパーやドラッグストアなど周辺環境が充実しています。
・保育・教育施設が近く生活に便利な立地!
・効率的な収納計画と家事ラク動線にこだわった設計です。
物件の設備
- 電気
- オール電化
- 上水道
- 下水道
- 側溝
- 食器洗浄乾燥機
- IHクッキングヒータ
- コンロ三口
- カウンターキッチン
- バス1坪以上
- 追焚機能
- 浴室暖房
- 浴室乾燥機
- トイレ2箇所
- 温水洗浄便座
- タンクレストイレ
- 洗髪洗面化粧台
- 室内物干機
- エアコン
- 照明器具
- 省エネ給湯器
- EV車充電設備
- ディンプルキー
- モニタ付インターホン
- 吹抜
- 複層ガラス
- 24時間換気システム
- クローゼット
- ウォークインクローゼット
- ウォークスルークローゼット
- 全居室収納
物件の特徴
- 高気密高断熱住宅
- ノンホルムアルデヒド
- 2階建
- 外壁サイディング
- バリアフリー
- BELS/省エネ基準適合
物件詳細情報
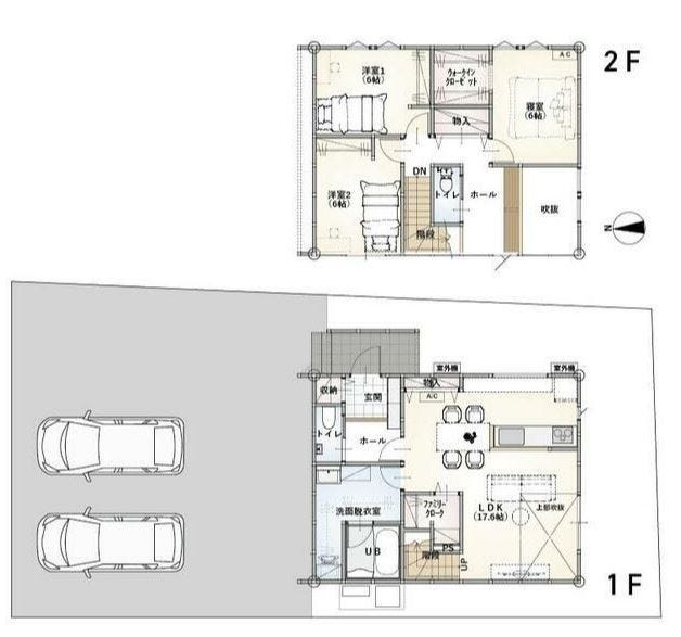
| 価格 | 2,980万円 | 間取り | 3LDK |
|---|---|---|---|
| 物件種別 | 新築一戸建て | ||
| 所在地 | 富山県富山市本郷町 B棟 | ||
| アクセス |
|
||
| 建物面積 | 99.37㎡ | 駐車場 | あり 普通:2台 |
| 築年月 | 2025年(令和7年)09月予定 | 建築確認 | 第R07確認建築富建セ0146号 |
| 建物構造 | 木造 2階建 | 工法 | |
| 主要採光 | バルコニー | ||
| 保証・評価 | |||
| 土地面積 | 実198.06㎡(59.91坪) | 接道 | 北側(公道)幅 約5.2m 間口 約10.30m |
| 私道 | セットバック | ||
| 地目 | 宅地 | 地勢 | |
| 権利 | 所有権 |
||
| 都市計画 | 市街化区域 |
用途地域 | 1種低層 |
| 建ぺい/容積率 | 50% / 80% | 土地国土法 | |
| 許可番号 | 建築基準法 | ||
| 法令制限 | |||
| 小学区 | 堀川南小学校 徒歩10分 (約800m) | 中学区 | 堀川中学校 徒歩29分 (約2300m) |
| 現況 | 建築中 | 引渡 | 期日指定:2025年10月以降 |
| その他費用 | |||
| 備考 | ※上下水道負担金:660,000円 ☆周辺環境☆ ・本郷町保育園まで徒歩7分(約500m) ・大阪屋ショップ本郷南店まで徒歩2分(約130m) ・クスリのアオキ本郷店まで徒歩1分(約20m) ・ファミリーマート富山本郷店まで徒歩4分(約300m) ・無印良品富山堀川本郷店まで徒歩12分(約900m) ・本郷町五区第5公園まで徒歩1分(約10m) ☆当社は2024年10月~12月度 LIFULL HOMESの富山市お問合せ件数 No.1☆ ハウスドゥ富山駅北はお客様のお住まい探しを全力でお手伝いいたします!! 元銀行員のスタッフが、ローンのご相談も承ります(^^)/ |
||
| 物件番号 | 4392533 | 取引態様 | 媒介 |
取扱店舗情報
ハウスドゥ 富山駅北 セブン不動産株式会社 店舗詳細ページへ
| 電話番号 | 076-464-6351 |
|---|---|
| 所在地 | 〒930-0853 富山県富山市永楽町27-16 |
| 営業時間 | 9:30~17:30 |
| 定休日 | 水曜日、祝日、年末年始 |
| 宅建免許番号 | 富山県知事(1)第3250号 |
| アクセス | 店舗への地図はこちら |

来店ご予約
富山県富山市で価格が似ている物件はこちら
- 富山県
マイページ物件数 - 865件
富山県新築一戸建て新着物件
- お近くの店舗を探す
-
おすすめ物件
-
-

-
- 新築一戸建て
- 2,998万円
-
富山市大泉
-
富山地鉄不二越上滝線大泉
-
-
-

-
- 新築一戸建て
- 2,590万円
-
高岡市野村
-
万葉線旭ヶ丘
-
-
-

-
- 新築一戸建て
- 2,080万円
-
富山市犬島4丁目
-
富山地鉄富山港線犬島新町
-
-
-

-
- 新築一戸建て
- 2,750万円
-
富山市本郷町
-
富山地鉄不二越上滝線上堀
-
-
-

-
- 新築一戸建て
- 2,080万円
-
富山市犬島4丁目
-
富山地鉄富山港線犬島新町
-
-
-

-
- 新築一戸建て
- 2,580万円
-
富山市松若町
-
富山地鉄富山港線粟島(大阪屋前)
-
-
-

-
- 新築一戸建て
- 2,700万円
-
富山市本郷町
-
富山地鉄不二越上滝線上堀
-
-
-

-
- 新築一戸建て
- 3,090万円
-
高岡市駅南3丁目
-
JR城端線高岡
-
-
-

-
- 新築一戸建て
- 2,980万円
-
富山市本郷町
-
富山地鉄不二越上滝線上堀
-
-
-

-
- 新築一戸建て
- 2,598万円
-
富山市本郷町
-
富山地鉄不二越上滝線上堀
-


















