福岡市早良区野芥8丁目の新築戸建
掲載情報更新日:2025年10月17日 次回更新予定日:2025年10月31日
- 3,888万円
-
- 借入ご希望金額
万円 - 借入期間
年 - 借入金利
% - 月々のお支払い金額
円
- 借入ご希望金額
※ 月々のお支払例は目安の試算となりますので、実際の金額とは異なる場合がございます。詳しくは店舗までお問合わせください。
- 福岡市早良区野芥8丁目
-
福岡市七隈線『賀茂』 徒歩21分 (約1660m)
福岡市七隈線『野芥』 徒歩22分 (約1700m)
福岡市七隈線『次郎丸』 徒歩25分 (約1940m)
西鉄バス『早寿園前』 徒歩11分 (約880m)
福岡市早良区野芥8丁目一戸建て | 物件情報
【早良区野芥×新築4LDK】 駐車3台OK!家族に嬉しいゆとりの住まい、全3棟が誕生!
■2025年10月完成済の新築戸建・全3棟♪
■駐車3台可能!(普通車2台+軽1台)で来客時も安心
■地下鉄七隈線「賀茂」駅 徒歩21分♪
■家族みんながゆったり暮らせる4LDKの間取り♪
■開放的なリビング空間と充実した収納スペース♪
■落ち着いた住宅地で静かに暮らせる環境♪
■コンビニやスーパー、学校も徒歩圏内で生活便利!
■南向き中心のプランで陽当たり良好!
物件の設備
- 都市ガス
- 浄水器
- コンロ三口
- カウンターキッチン
- システムキッチン
- 浴室暖房
- 浴室乾燥機
- トイレ2箇所
- 人感照明センサー
- モニタ付インターホン
- 防犯カメラ
- 火災警報器/報知機
- 複層ガラス
- 床下収納
- バルコニー
物件の特徴
- 2階建
- 即入居可
物件詳細情報
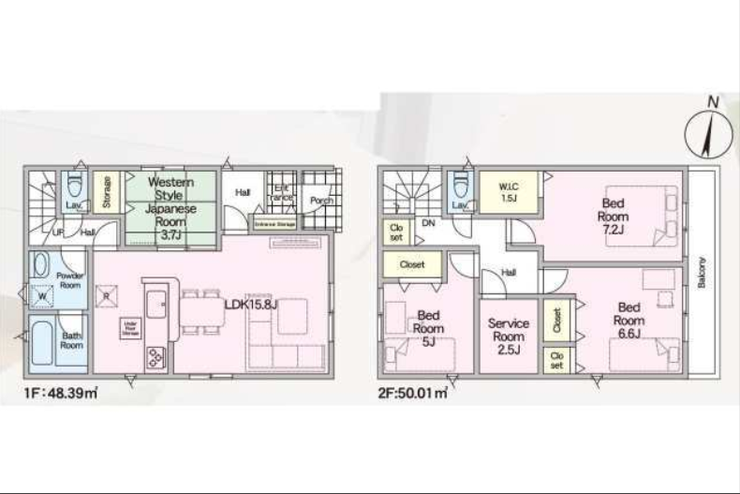
価格 | 3,888万円 | 間取り | 4LDK |
---|---|---|---|
物件種別 | 新築一戸建て | ||
所在地 | 福岡県福岡市早良区野芥8丁目 | ||
アクセス |
|
||
建物面積 | 98.4㎡ | 駐車場 | あり 普通:2台 軽:1台 |
築年月 | 2025年(令和7年)10月築 | 建築確認 | 第R07SHC105949号 |
建物構造 | 木造 2階建 | 工法 | |
主要採光 | バルコニー | ||
保証・評価 | |||
土地面積 | 123.05㎡(37.22坪) | 接道 | 東側幅 約5.9m |
私道 | セットバック | ||
地目 | 宅地 | 地勢 | |
権利 | 所有権 |
||
都市計画 | 市街化区域 |
用途地域 | 1種低層 |
建ぺい/容積率 | 50% / 80% | 土地国土法 | |
許可番号 | 建築基準法 | ||
法令制限 | 高さ最高限度有・法22条区域 | ||
小学区 | 野芥小学校 徒歩9分 (約720m) | 中学区 | 田隈中学校 徒歩7分 (約490m) |
現況 | 完工済 | 引渡 | 即 |
その他費用 | |||
周辺環境 | 福岡市立田隈中学校 徒歩7分 (約490m) 早良幼稚園 徒歩5分 (約380m) マルキョウ 田村店 徒歩7分 (約490m) 福岡市立野芥小学校 徒歩9分 (約720m) ファミリーマート 大賀ドラッグストア 野芥店 徒歩12分 (約900m) セブン-イレブン 福岡四箇田団地店 徒歩12分 (約900m) 業務スーパー 野芥店 徒歩12分 (約910m) 西松屋 福岡早良店 徒歩14分 (約1060m) ミスターマックスSelect 野芥店 徒歩12分 (約960m) マクドナルド 重留店 徒歩14分 (約1080m) |
||
備考 | |||
物件番号 | 4394562 | 取引態様 | 媒介 |
取扱店舗情報
ハウスドゥ 早良区賀茂 株式会社Grand Asset 店舗詳細ページへ
電話番号 | 092-834-7575 |
---|---|
所在地 | 〒814-0164 福岡県福岡市早良区賀茂3丁目1番17号 |
営業時間 | 10:00~18:00 |
定休日 | 火曜日、水曜日 |
宅建免許番号 | 福岡県知事(1)第20969号 |
アクセス | 店舗への地図はこちら |
来店ご予約
福岡県福岡市早良区で価格が似ている物件はこちら
- 福岡県
マイページ物件数 - 8,516件
最近見た物件
-
-
-
- 土地
- 1,113.12万円
-
田原市谷熊町成木
-
豊橋鉄道渥美線豊島
-
福岡県新築一戸建て新着物件
-
-
-
- 新築一戸建て
- 2,998万円
-
中間市扇ヶ浦1丁目
-
筑豊電気鉄道東中間駅
-
-
-
-
- 新築一戸建て
- 3,398万円
-
糟屋郡須惠町大字上須惠
-
JR香椎線須恵中央駅
-
-
-
-
- 新築一戸建て
- 3,298万円
-
糟屋郡須惠町大字上須惠
-
JR香椎線須恵中央駅
-
-
-
-
- 新築一戸建て
- 4,698万円
-
糟屋郡新宮町大字新宮
-
西鉄貝塚線西鉄新宮駅
-
-
-
-
- 新築一戸建て
- 3,598万円
-
福岡市東区蒲田2丁目
-
JR香椎線土井駅
-
-
-
-
- 新築一戸建て
- 3,388万円
-
福岡市博多区金の隈3丁目
-
西鉄天神大牟田線桜並木駅
-
-
-
-
- 新築一戸建て
- 3,398万円
-
古賀市久保
-
JR鹿児島本線千鳥駅
-
- お近くの店舗を探す
-
おすすめ物件
-
-
-
- 新築一戸建て
- 2,398万円
-
宗像市河東
-
JR鹿児島本線東郷
-
-
-
-
- 新築一戸建て
- 3,499万円
-
福津市福間南3丁目
-
JR鹿児島本線福間
-
-
-
-
- 新築一戸建て
- 4,095万円
-
福岡市早良区飯倉3丁目
-
福岡市空港線西新
-
-
-
-
- 新築一戸建て
- 3,498万円
-
宗像市赤間1丁目
-
JR鹿児島本線教育大前
-
-
-
-
- 新築一戸建て
- 3,898万円
-
大野城市南ケ丘6丁目
-
JR鹿児島本線水城
-
-
-
-
- 新築一戸建て
- 3,298万円
-
糟屋郡宇美町宇美4丁目
-
JR香椎線宇美
-
-
-
-
- 新築一戸建て
- 3,698万円
-
北九州市小倉南区北方3丁目
-
北九州高速鉄道北方
-
-
-
-
- 新築一戸建て
- 4,298万円
-
北九州市小倉北区中井1丁目
-
JR鹿児島本線九州工大前
-
-
-
-
- 新築一戸建て
- 4,398万円
-
糟屋郡志免町志免中央3丁目
-
福岡市空港線福岡空港
-
-
-
-
- 新築一戸建て
- 3,448万円
-
宗像市ひかりヶ丘4丁目
-
JR鹿児島本線東郷
-
自然と利便性が調和した「早良区野芥」エリアに誕生した全3棟の新築戸建です。
駐車3台可能なゆとりある敷地で、車を複数台所有されるご家庭にもぴったり。
リビングは明るく、家族が自然と集まる心地よい空間に!
周辺には生活施設も整い、子育て世帯から共働きファミリーまで幅広くおすすめです。
“ゆとり”と“便利さ”の両方を叶える住まいを、ぜひ現地でご体感ください!