高槻市東上牧3丁目の新築戸建
掲載情報更新日:2025年10月26日 次回更新予定日:2025年11月09日
- 4,598万円
-
- 借入ご希望金額
万円 - 借入期間
年 - 借入金利
% - 月々のお支払い金額
円
- 借入ご希望金額
※ 月々のお支払例は目安の試算となりますので、実際の金額とは異なる場合がございます。詳しくは店舗までお問合わせください。
- 高槻市東上牧3丁目
-
阪急電鉄京都線『上牧』 徒歩14分 (約1120m)
阪急電鉄京都線『上牧』 バス乗車4分 市営バス 東上牧 停 徒歩3分 (約240m)
高槻市東上牧3丁目一戸建て | 物件情報
物件の設備
- 電気
- 上水道
- 下水道
- 都市ガス
- 給湯
- 食品庫
- カウンターキッチン
- システムキッチン
- バス
- トイレ2箇所
- LDK20畳以上
- 全室フローリング
- クローゼット
- 納戸
- 全居室収納
- バルコニー
物件の特徴
- 2階建
物件詳細情報
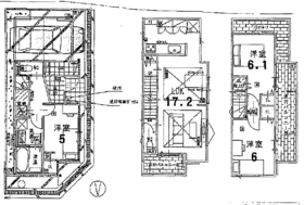
| 価格 | 4,598万円 | 間取り | 3LDK+S |
|---|---|---|---|
| 物件種別 | 新築一戸建て | ||
| 所在地 | 大阪府高槻市東上牧3丁目6-24 一号地 | ||
| アクセス |
|
||
| 建物面積 | 96.46㎡ | 駐車場 | あり 普通:1台 軽:1台 |
| 築年月 | 2025年(令和7年)12月予定 | 建築確認 | 技建認R07-IPEC70029号 |
| 建物構造 | 木造 2階建 | 工法 | |
| 主要採光 | 西向 | バルコニー | |
| 保証・評価 | |||
| 土地面積 | 108.24㎡(32.74坪) | 接道 | 西側(公道)幅 約5.0m 間口 約6.70m |
| 私道 | セットバック | ||
| 地目 | 宅地 | 地勢 | |
| 権利 | 所有権 |
||
| 都市計画 | 市街化区域 |
用途地域 | 1種低層 |
| 建ぺい/容積率 | 50% / 100% | 土地国土法 | |
| 許可番号 | 建築基準法 | ||
| 法令制限 | |||
| 小学区 | 上牧小学校 徒歩12分 (約909m) | 中学区 | 五領中学校 徒歩19分 (約1491m) |
| 現況 | 建築中 | 引渡 | 期日指定:2025年12月下旬以降 |
| その他費用 | |||
| 備考 | |||
| 物件番号 | 4396856 | 取引態様 | 媒介 |
取扱店舗情報
ハウスドゥ 高槻富田 株式会社コンフォート住宅販売 店舗詳細ページへ
| 電話番号 | 072-668-2246 |
|---|---|
| 所在地 | 〒569-0814 大阪府高槻市富田町3丁目15-15 |
| 営業時間 | 10:00~19:00 |
| 定休日 | 水曜日、年末年始 |
| 宅建免許番号 | 大阪府知事(2)第61490号 |
| アクセス | 店舗への地図はこちら |

来店ご予約
大阪府高槻市で価格が似ている物件はこちら
- 大阪府
マイページ物件数 - 14,852件
大阪府新築一戸建て新着物件
- お近くの店舗を探す
-
おすすめ物件
-
-

-
- 新築一戸建て
- 4,780万円
-
堺市北区新金岡町5丁
-
大阪市御堂筋線新金岡
-
-
-

-
- 新築一戸建て
- 4,580万円
-
大阪市淀川区新北野3丁目
-
JR東海道線塚本
-
-
-

-
- 新築一戸建て
- 5,180万円
-
大阪市住之江区粉浜西3丁目
-
南海電鉄本線住吉大社
-
-
-

-
- 新築一戸建て
- 3,980万円
-
泉大津市条南町
-
南海電鉄本線松ノ浜
-
-
-

-
- 新築一戸建て
- 4,480万円
-
堺市北区金岡町
-
大阪市御堂筋線新金岡
-
-
-

-
- 新築一戸建て
- 4,580万円
-
堺市北区長曽根町
-
大阪市御堂筋線新金岡
-
-
-

-
- 新築一戸建て
- 2,380万円
-
松原市天美北3丁目
-
近鉄南大阪線河内天美
-
-
-

-
- 新築一戸建て
- 2,599万円
-
泉大津市東助松町3丁目
-
南海電鉄本線北助松
-
-
-

-
- 新築一戸建て
- 2,680万円
-
和泉市池上町4丁目
-
JR阪和線信太山
-








