島2丁目 新築戸建
NEW 01.08掲載情報更新日:2026年01月11日 次回更新予定日:2026年01月25日
- 4,680万円
-
- 借入ご希望金額
万円 - 借入期間
年 - 借入金利
% - 月々のお支払い金額
円
- 借入ご希望金額
※ 月々のお支払例は目安の試算となりますので、実際の金額とは異なる場合がございます。詳しくは店舗までお問合わせください。
- 茨木市島2丁目
-
阪急電鉄京都線『南茨木』 徒歩26分 (約2010m)
JR東海道線『茨木』 徒歩44分 (約3480m)
大阪モノレール『沢良宜』 徒歩14分 (約1050m)
島2丁目 新築戸建一戸建て | 物件情報
\快適さと安心が両立した新築分譲/設計・建設評価で最高等級を取得した長期優良住宅です◎
◆「沢良宜」駅 徒歩15分/「茨木市」駅 徒歩18分
◆設計&建設評価で【最高等級】取得
◆長期優良住宅認定&省エネBELS取得
◆安心の35年保証&地盤20年保証付き
◆リビングは16帖超!家族が自然と集まる広さ
◆WIC&納戸付きで収納たっぷり◎
◆人気の対面カウンターキッチン採用
~周辺環境~
・ちとせ學院tre保育園 徒歩4分
・葦原小学校 徒歩4分
・南中学校 徒歩16分
・食品館アプロ 沢良宜店 徒歩10分
・平和堂真砂店 徒歩13分
・キリン堂沢良宜店 徒歩10分
・橋本診療所 徒歩6分
・沢良宜浜公園 徒歩7分
物件の設備
- 電気
- 公営水道
- 下水道
- 都市ガス
- 食品庫
- コンロ三口
- カウンターキッチン
- システムキッチン
- バス
- 浴室乾燥機
- 浴室に窓
- トイレ2箇所
- 温水洗浄便座
- 室内洗濯機置場
- 洗髪洗面化粧台
- 洗面所独立
- モニタ付インターホン
- LDK15畳以上
- 2面採光
- 全室フローリング
- クローゼット
- ウォークインクローゼット
- 納戸
- 床下収納
- ハイルーフ駐車可能
物件の特徴
- 南向
- 2沿線利用可
- 小学校徒歩10分以内
- スーパーが近い
- 通風良好
- 陽当り良好
- 2階建
- 角地
- BELS/省エネ基準適合
- 省エネルギー対策
- フラット35Sに対応
オープンハウス・イベント情報
開催日時:毎週土日祝 10:00~18:00
開催場所:大阪府茨木市
【事前ご予約制オープンハウスについて】 オープンハウスを随時開催しております! 開催日:土日・平日 10:00~18:00 【ご案内に掛かる時間の目安】 現地/物件見学(約30分~) ご希望条件のご相談 (約30分~) 資金計画やローンのご相談 (約30分~) \他の会社とココ…
物件詳細情報
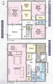
| 価格 | 4,680万円 | 間取り | 2LDK+S |
|---|---|---|---|
| 物件種別 | 新築一戸建て | ||
| 所在地 | 大阪府茨木市島2丁目 2号棟 | ||
| アクセス |
|
||
| 建物面積 | 92.34㎡ | 駐車場 | なし |
| 築年月 | 2026年(令和8年)03月予定 | 建築確認 | 第KS125-0420-55829 |
| 建物構造 | 木造 2階建 | 工法 | |
| 主要採光 | バルコニー | ||
| 保証・評価 | |||
| 土地面積 | 101.39㎡(30.67坪) | 接道 | |
| 私道 | セットバック | ||
| 地目 | 宅地 | 地勢 | |
| 権利 | 所有権 |
||
| 都市計画 | 用途地域 | 2種中高 | |
| 建ぺい/容積率 | 60% / 200% | 土地国土法 | |
| 許可番号 | 建築基準法 | ||
| 法令制限 | |||
| 小学区 | 葦原小学校 徒歩6分 (約460m) | 中学区 | 南中学校 徒歩17分 (約1320m) |
| 現況 | 未着工 | 引渡 | 期日指定:2026年04月 |
| その他費用 | |||
| 周辺環境 | 葦原小学校 徒歩6分 (約460m) 食品館アプロ 沢良宜店 徒歩8分 (約640m) さわらぎクリニックモール 徒歩8分 (約640m) 業務スーパーTAKENOKO 南茨木店 徒歩19分 (約1470m) 水尾幼稚園 徒歩17分 (約1310m) 大森医院 徒歩16分 (約1240m) コーナン茨木店 徒歩16分 (約1250m) ダイソー 沢良宜店 徒歩19分 (約1470m) 南中学校 徒歩17分 (約1320m) 田中病院 徒歩22分 (約1700m) |
||
| 備考 | 長期優良住宅対象物件 網戸、照明、カーテン、カーテンレールはオプション有料となります。 |
||
| 物件番号 | 4546069 | 取引態様 | 媒介 |
取扱店舗情報
ハウスドゥ JR茨木駅前 株式会社Co.A 店舗詳細ページへ
| 電話番号 | 072-657-7272 |
|---|---|
| 所在地 | 〒567-0887 大阪府茨木市西中条町3-39-3 NKビル1F |
| 営業時間 | 10:00~18:00 |
| 定休日 | 水曜日、年末年始 |
| 宅建免許番号 | 大阪府知事(1)第65511号 |
| アクセス | 店舗への地図はこちら |

来店ご予約
大阪府茨木市で価格が似ている物件はこちら
- 大阪府
マイページ物件数 - 16,571件
最近見た物件
-
-

-
- 土地
- 680万円
-
伊達市舟岡町
-
JR室蘭本線北舟岡
-
大阪府新築一戸建て新着物件
- お近くの店舗を探す
-
おすすめ物件
-
-

-
- 新築一戸建て
- 2,380万円
-
松原市天美北3丁目
-
近鉄南大阪線河内天美
-
-
-

-
- 新築一戸建て
- 3,899万円
-
高槻市川西町1丁目
-
JR東海道線高槻
-
-
-

-
- 新築一戸建て
- 4,680万円
-
堺市北区新金岡町5丁
-
大阪市御堂筋線新金岡
-
-
-

-
- 新築一戸建て
- 4,580万円
-
茨木市島2丁目
-
阪急電鉄京都線南茨木
-
-
-

-
- 新築一戸建て
- 3,080万円
-
高槻市西町
-
阪急電鉄京都線富田
-
-
-

-
- 新築一戸建て
- 5,080万円
-
大阪市住之江区粉浜西3丁目
-
南海電鉄本線住吉大社
-
-
-

-
- 新築一戸建て
- 4,680万円
-
茨木市島2丁目
-
阪急電鉄京都線南茨木
-
-
-

-
- 新築一戸建て
- 6,800万円
-
箕面市稲5丁目
-
北大阪急行南北線箕面船場阪大前
-
-
-

-
- 新築一戸建て
- 3,480万円
-
茨木市橋の内1丁目
-
阪急電鉄京都線総持寺
-
-
-

-
- 新築一戸建て
- 4,480万円
-
茨木市島2丁目
-
阪急電鉄京都線南茨木
-







担当エージェント:宮崎 亜未
家族の暮らしやすさを考えた2SLDK+WICプラン。16帖超のLDKは明るく開放的で、対面キッチンを囲んで家族の会話が自然と生まれる空間です。全室収納に加え、ウォークインクローゼットと納戸を備え、荷物が多いご家庭でもスッキリ。設計・建設評価で最高等級を取得し、長期優良住宅認定・BELS省エネ評価付きの安心仕様。さらに35年保証や地盤サポート20年など、長く安心して暮らせるサポート体制も充実しています。モノレール「沢良宜」駅徒歩15分、阪急「茨木市」駅徒歩18分と通勤・通学にも便利。性能・デザイン・住み心地のすべてが整ったおすすめの一邸です。
※網戸・照明・カーテン・カーテンレールはオプション有料となります。
※添付 図面は設計図書の為、軽微な変更がありますので現況優先とします。
※全棟が長期優良住宅対象物件です。