茨木市島2丁目の新築戸建
掲載情報更新日:2026年01月02日 次回更新予定日:2026年01月16日
- 4,580万円
-
- 借入ご希望金額
万円 - 借入期間
年 - 借入金利
% - 月々のお支払い金額
円
- 借入ご希望金額
※ 月々のお支払例は目安の試算となりますので、実際の金額とは異なる場合がございます。詳しくは店舗までお問合わせください。
- 茨木市島2丁目
-
大阪モノレール『沢良宜』 徒歩13分 (約1040m)
阪急電鉄京都線『南茨木』 徒歩25分 (約1950m)
茨木市島2丁目一戸建て | 物件情報
◇長期優良住宅認定 ◇沢良宜駅徒歩15分 ◇26年3月完成予定
住宅ローン・資金計画にお悩みの方、是非当社にご相談ください!
住宅購入・お住み替えにつきもののお悩みを一緒に解決していきましょう!
・頭金0円で購入したい・・・
・駅近くのマンションに住み替えたい・・・
・住宅ローンが通るか不安・・・
・頭金が用意できない・・・
・毎月いくらまで払えるかわからない・・・
など、様々なお悩みをお持ちの方。
お気軽にお申し付け下さい♪
★物件のご内覧は、ご自宅への送迎や指定場所お待合わせでのご案内可。
★キッズスペース完備!DVDおもちゃなどご用意していますので安心してご来店ください。
★お客様専用駐車場完備!お気軽にご来店お待ちいたしております。
物件の特徴
- 2階建
物件詳細情報
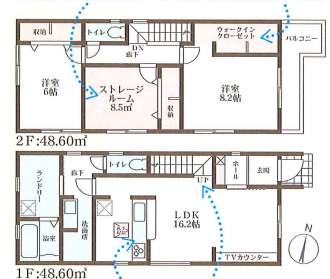
| 価格 | 4,580万円 | 間取り | 2LDK+S |
|---|---|---|---|
| 物件種別 | 新築一戸建て | ||
| 所在地 | 大阪府茨木市島2丁目 | ||
| アクセス |
|
||
| 建物面積 | 97.2㎡ | 駐車場 | あり 普通:2台 |
| 築年月 | 2026年(令和8年)03月予定 | 建築確認 | 確認サービス第KS125-0420-55828号 |
| 建物構造 | 木造 2階建 | 工法 | |
| 主要採光 | 東向 | バルコニー | |
| 保証・評価 | |||
| 土地面積 | 108.88㎡(32.93坪) | 接道 | |
| 私道 | セットバック | ||
| 地目 | 宅地 | 地勢 | |
| 権利 | 所有権 |
||
| 都市計画 | 市街化区域 |
用途地域 | 2種中高 |
| 建ぺい/容積率 | 60% / 200% | 土地国土法 | |
| 許可番号 | 建築基準法 | ||
| 法令制限 | |||
| 小学区 | 葦原小学校 徒歩9分 (約680m) | 中学区 | 南中学校 徒歩18分 (約1430m) |
| 現況 | 建築中 | 引渡 | 期日指定:2026年03月以降 |
| その他費用 | |||
| 周辺環境 | 茨木市立南市民体育館 徒歩5分 (約330m) ファミリーマート 茨木島三丁目店 徒歩4分 (約270m) ファミリーマート 小浦宮島店 徒歩7分 (約540m) デイリーヤマザキ 茨木島1丁目店 徒歩7分 (約490m) 茨木市立葦原小学校 徒歩9分 (約680m) セブン-イレブン 茨木新和町店 徒歩9分 (約690m) ファミリーマート茨木沢良宜浜店 徒歩9分 (約690m) アプロ沢良宜店 徒歩10分 (約770m) キリン堂 沢良宜店 徒歩10分 (約800m) ローソン 茨木島四丁目店 徒歩11分 (約810m) |
||
| 備考 | |||
| 物件番号 | 4432291 | 取引態様 | 媒介 |
取扱店舗情報
ハウスドゥ 阪急茨木市駅南 株式会社エムアイエム 店舗詳細ページへ
| 電話番号 | 072-697-8701 |
|---|---|
| 所在地 | 〒567-0827 大阪府茨木市稲葉町11-8 ローズビルウチダ1F |
| 営業時間 | 10:00~19:00 |
| 定休日 | 水曜日、年末年始 |
| 宅建免許番号 | 大阪府知事(1)第64466号 |
| アクセス | 店舗への地図はこちら |

来店ご予約
大阪府茨木市で価格が似ている物件はこちら
- 大阪府
マイページ物件数 - 16,300件
最近見た物件
-
-

-
- 中古一戸建て
- 2,650万円
-
豊田市京ケ峰2丁目
-
名鉄三河線豊田市
-
-
-

-
- 中古一戸建て
- 380万円
-
北九州市小倉北区日明3丁目
-
JR鹿児島本線西小倉
-
-
-

-
- 中古一戸建て
- 1,980万円
-
さいたま市岩槻区大字本宿
-
東武野田線岩槻
-
大阪府新築一戸建て新着物件
-
-

-
- 新築一戸建て
- 6,498万円
-
豊中市清風荘1丁目
-
阪急電鉄宝塚線石橋阪大前駅
-
-
-

-
- 新築一戸建て
- 6,498万円
-
豊中市清風荘1丁目
-
阪急電鉄宝塚線石橋阪大前駅
-
-
-

-
- 新築一戸建て
- 6,498万円
-
豊中市清風荘1丁目
-
阪急電鉄宝塚線石橋阪大前駅
-
-
-

-
- 新築一戸建て
- 6,598万円
-
豊中市清風荘1丁目
-
阪急電鉄宝塚線石橋阪大前駅
-
-
-

-
- 新築一戸建て
- 2,990万円
-
八尾市志紀町南4丁目
-
JR関西本線志紀駅
-
-
-

-
- 新築一戸建て
- 4,080万円
-
高槻市明野町
-
阪急電鉄京都線高槻市駅
-
-
-

-
- 新築一戸建て
- 3,290万円
-
高槻市東五百住町1丁目
-
JR東海道線摂津富田駅
-
- お近くの店舗を探す
-
おすすめ物件
-
-

-
- 新築一戸建て
- 3,480万円
-
茨木市橋の内1丁目
-
阪急電鉄京都線総持寺
-
-
-

-
- 新築一戸建て
- 4,680万円
-
茨木市島2丁目
-
阪急電鉄京都線南茨木
-
-
-

-
- 新築一戸建て
- 3,850万円
-
泉大津市昭和町
-
南海電鉄本線泉大津
-
-
-

-
- 新築一戸建て
- 4,680万円
-
堺市北区新金岡町5丁
-
大阪市御堂筋線新金岡
-
-
-

-
- 新築一戸建て
- 5,180万円
-
高槻市北昭和台町
-
阪急電鉄京都線総持寺
-
-
-

-
- 新築一戸建て
- 2,948万円
-
泉大津市松之浜町2丁目
-
南海電鉄本線松ノ浜
-
-
-

-
- 新築一戸建て
- 3,899万円
-
高槻市川西町1丁目
-
JR東海道線高槻
-
-
-

-
- 新築一戸建て
- 5,080万円
-
大阪市住之江区粉浜西3丁目
-
南海電鉄本線住吉大社
-
-
-

-
- 新築一戸建て
- 4,780万円
-
堺市北区百舌鳥本町2丁
-
JR阪和線百舌鳥
-
-
-

-
- 新築一戸建て
- 2,380万円
-
松原市天美北3丁目
-
近鉄南大阪線河内天美
-



住宅ローン・資金計画にお悩みの方、是非当社にご相談ください!住宅購入・お住み替えにつきもののお悩みを一緒に解決していきましょう!お気軽にお申し付け下さい♪