北九州市八幡西区本城東3丁目の新築戸建
掲載情報更新日:2025年10月18日 次回更新予定日:2025年11月01日
- 3,398万円
-
- 借入ご希望金額
万円 - 借入期間
年 - 借入金利
% - 月々のお支払い金額
円
- 借入ご希望金額
※ 月々のお支払例は目安の試算となりますので、実際の金額とは異なる場合がございます。詳しくは店舗までお問合わせください。
- 北九州市八幡西区本城東3丁目
-
JR筑豊本線『本城』 徒歩9分 (約720m)
北九州市八幡西区本城東3丁目一戸建て | 物件情報
★本城小学校まで徒歩約6分、本城中学校まで徒歩約5分の新築戸建★
ハウスドゥ片野四丁目では、内覧&アンケート記入をしていただいたお客様に
Amazonギフトカード5,000円分or任天堂プリペイドカード5,000円分プレゼント中です!(9月末まで)
物件価格以外の諸費用ってなに?月々の返済はどれぐらい?
住宅ローンってどうしたらいいの?不安なこと、全部ご相談ください!
■本城小学校まで徒歩約6分!
■本城中学校まで徒歩約5分!
■カースペースに3台駐車可能!
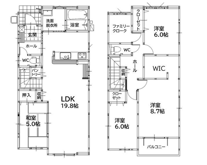
■リビングは19.8帖!
隣の5帖の和室と合わせるとかなり広いので、お子様も広々と遊べて、家族もゆったりできますね♪
■浴室乾燥機付きのお風呂は、花粉の時期や雨天時に大助かり◎
■浴槽はエコベンチ浴槽を採用しています!
お子様を座らせたり、半身浴など使い勝手良し!!
■2階にWICとファミリークロークがあるので、たくさん収納してスッキリ見せちゃいましょう☆
■2階の洋室はお子様のお部屋にぴったりです!
■日当たりがいいので、日中はお日様のおかげで明るいお部屋になりそうです♪
物件の設備
- 上水道
- 公営水道
- 下水道
- 側溝
- 都市ガス
- 食器洗浄乾燥機
- 食品庫
- コンロ三口
- カウンターキッチン
- システムキッチン
- オートバス
- 追焚機能
- 浴室暖房
- 浴室乾燥機
- トイレ2箇所
- 温水洗浄便座
- 室内洗濯機置場
- 洗髪洗面化粧台
- モニタ付インターホン
- 和室
- シャッター雨戸
- クローゼット
- クローゼット2箇所
- ウォークインクローゼット
- シューズボックス
物件の特徴
- 小学校徒歩10分以内
- スーパーが近い
- 陽当り良好
- 2階建
- フラット35Sに対応
物件詳細情報
| 価格 | 3,398万円 | 間取り | 4LDK |
|---|---|---|---|
| 物件種別 | 新築一戸建て | ||
| 所在地 | 福岡県北九州市八幡西区本城東3丁目 | ||
| アクセス |
|
||
| 建物面積 | 114.85㎡ | 駐車場 | あり 普通:3台 |
| 築年月 | 2025年(令和7年)12月予定 | 建築確認 | 第KJH25-01016-1号 |
| 建物構造 | 木造 木造アスファルト葺 2階建 | 工法 | |
| 主要採光 | 南西向 | バルコニー | |
| 保証・評価 | |||
| 土地面積 | 148.29㎡(44.85坪) | 接道 | 北東側(公道)幅 約5.9m 間口 約7.40m |
| 私道 | セットバック | ||
| 地目 | 宅地 | 地勢 | |
| 権利 | 所有権 |
||
| 都市計画 | 市街化区域 |
用途地域 | 1種住居 |
| 建ぺい/容積率 | 60% / 200% | 土地国土法 | |
| 許可番号 | 建築基準法 | ||
| 法令制限 | 宅地造成工事規制区域・法22条区域・居住誘導区域内・都市機能誘導区域外 | ||
| 小学区 | 本城小学校 徒歩6分 (約450m) | 中学区 | 本城中学校 徒歩6分 (約450m) |
| 現況 | 建築中 | 引渡 | 未記入 |
| その他費用 | |||
| 備考 | ■子育てグリーン住宅支援/適合 | ||
| 物件番号 | 4400957 | 取引態様 | 媒介 |
取扱店舗情報
ハウスドゥ 片野四丁目 株式会社J factories 店舗詳細ページへ
| 電話番号 | 093-330-1255 |
|---|---|
| 所在地 | 〒802-0064 福岡県北九州市小倉北区片野四丁目19-8 ラクーレV片野 103号 |
| 営業時間 | 10:00~18:00 |
| 定休日 | 水曜日、年末年始 |
| 宅建免許番号 | 福岡県知事(1)第20904号 |
| アクセス | 店舗への地図はこちら |

来店ご予約
福岡県北九州市八幡西区で価格が似ている物件はこちら
- 福岡県
マイページ物件数 - 8,766件
最近見た物件
-
-

-
- 新築一戸建て
- 3,498万円
-
北九州市八幡西区千代ケ崎1丁目
-
JR筑豊本線本城
-
福岡県新築一戸建て新着物件
-
-

-
- 新築一戸建て
- 3,898万円
-
春日市紅葉ヶ丘西7丁目
-
JR鹿児島本線春日駅
-
-
-

-
- 新築一戸建て
- 4,999万円
-
大野城市白木原4丁目
-
西鉄天神大牟田線白木原駅
-
-
-

-
- 新築一戸建て
- 3,388万円
-
福岡市博多区金の隈3丁目
-
西鉄天神大牟田線桜並木駅
-
-
-

-
- 新築一戸建て
- 3,898万円
-
福津市手光
-
JR鹿児島本線東福間駅
-
-
-

-
- 新築一戸建て
- 3,698万円
-
福津市手光
-
JR鹿児島本線東福間駅
-
-
-

-
- 新築一戸建て
- 4,380万円
-
福岡市南区柏原1丁目
-
JR博多南線博多南駅
-
-
-

-
- 新築一戸建て
- 3,590万円
-
福岡市東区香住ヶ丘5丁目
-
西鉄貝塚線唐の原駅
-
- お近くの店舗を探す
-
おすすめ物件
-
-

-
- 新築一戸建て
- 2,798万円
-
大野城市乙金東1丁目
-
西鉄天神大牟田線桜並木
-
-
-

-
- 新築一戸建て
- 3,898万円
-
福岡市南区長住4丁目
-
西鉄天神大牟田線高宮
-
-
-

-
- 新築一戸建て
- 3,699万円
-
福津市花見が浜2丁目
-
JR鹿児島本線千鳥
-
-
-

-
- 新築一戸建て
- 3,288万円
-
福岡市南区柏原1丁目
-
西鉄天神大牟田線高宮
-
-
-

-
- 新築一戸建て
- 2,898万円
-
宗像市ひかりヶ丘4丁目
-
JR鹿児島本線東郷
-
-
-

-
- 新築一戸建て
- 2,998万円
-
北九州市小倉北区今町2丁目
-
北九州高速鉄道城野
-
-
-

-
- 新築一戸建て
- 3,398万円
-
福岡市南区弥永2丁目
-
JR博多南線博多南
-
-
-

-
- 新築一戸建て
- 2,598万円
-
宗像市河東
-
JR鹿児島本線東郷
-
-
-

-
- 新築一戸建て
- 3,898万円
-
大野城市南ケ丘6丁目
-
JR鹿児島本線水城
-
-
-

-
- 新築一戸建て
- 3,498万円
-
宗像市赤間1丁目
-
JR鹿児島本線教育大前
-









全国720店舗展開中のハウスドゥだから安心・丁寧なご案内♪物件のご案内から資金計画、ご契約までフルサポートさせて頂きます!平日・土日問わずご案内可能ですので、お気軽に御連絡下さいね!
不動産所有権移転登記、抵当権設定登記(住宅ローン購入時)、銀行手数料(住宅ローン購入時)、固定資産税等の税金、火災保険など…お家購入は諸費用があります!案内時に御説明OKです♪