久留米市南4丁目 3号地 DSK
掲載情報更新日:2025年10月27日 次回更新予定日:2025年11月10日
- 3,699万円
-
- 借入ご希望金額
万円 - 借入期間
年 - 借入金利
% - 月々のお支払い金額
円
- 借入ご希望金額
※ 月々のお支払例は目安の試算となりますので、実際の金額とは異なる場合がございます。詳しくは店舗までお問合わせください。
- 久留米市南4丁目
-
JR久大本線『久留米高校前』 徒歩20分 (約1600m)
久留米市南4丁目 3号地 DSK一戸建て | 物件情報
■頭金0円!ボーナス払いゼロ、 ■住宅ローンご相談ください。 ■夜10時まで当日ご案内可能!
おススメその1 パノラマ画像♪
HPにて360度パノラマ画像をご覧いただけます。
おススメその2 住宅ローンのご相談♪
購入時または購入後に掛かる費用まで、ご不明点は
しっかりサポート致しますのでご安心ください。
おススメその3 全国展開700店舗のネットワーク!
新築も中古もお客様のご希望のエリア、予算に合わせてお探し致します♪
物件の設備
- オール電化
- 上水道
- 下水道
- 浄水器
- 食器洗浄乾燥機
- IHクッキングヒータ
- カウンターキッチン
- システムキッチン
- バス
- オートバス
- 追焚機能
- 浴室暖房
- 浴室乾燥機
- 浴室に窓
- トイレ
- トイレ2箇所
- 温水洗浄便座
- 室内洗濯機置場
- 洗髪洗面化粧台
- モニタ付インターホン
- LDK15畳以上
- 複層ガラス
- 全居室複層ガラス
- フローリング
- 全室フローリング
- シャッター雨戸
- 24時間換気システム
- クローゼット
- ウォークインクローゼット
- 床下収納
- 全居室収納
- シューズボックス
物件の特徴
- 2階建
物件詳細情報
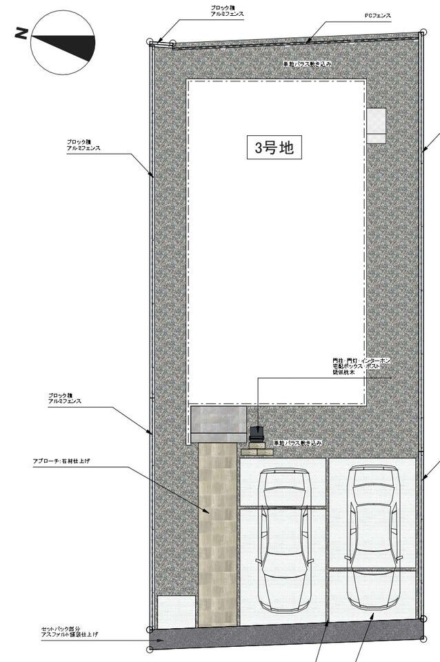
| 価格 | 3,699万円 | 間取り | 4LDK |
|---|---|---|---|
| 物件種別 | 新築一戸建て | ||
| 所在地 | 福岡県久留米市南4丁目 | ||
| アクセス |
|
||
| 建物面積 | 110.08㎡ | 駐車場 | あり |
| 築年月 | 2025年(令和7年)08月築 | 建築確認 | 第R06確認建築福住セ本00991号 |
| 建物構造 | 木造 2階建 | 工法 | |
| 主要採光 | バルコニー | ||
| 保証・評価 | |||
| 土地面積 | 154.65㎡(46.78坪) | 接道 | 西側幅 約3.3m 間口 約8.50m |
| 私道 | セットバック | ||
| 地目 | 宅地 | 地勢 | |
| 権利 | 所有権 |
||
| 都市計画 | 市街化区域 |
用途地域 | 1種中高 |
| 建ぺい/容積率 | 60% / 160% | 土地国土法 | |
| 許可番号 | 建築基準法 | ||
| 法令制限 | |||
| 小学区 | 南小学校 徒歩8分 (約640m) | 中学区 | 牟田山中学校 徒歩9分 (約720m) |
| 現況 | 完工済 | 引渡 | 期日指定:2025年08月 |
| その他費用 | |||
| 周辺環境 | 久留米市立牟田山中学校 徒歩9分 (約670m) フレッシュ8上津店 徒歩9分 (約700m) グリーンコープ生協ふくおか久留米南町店 徒歩8分 (約570m) セブンイレブン 久留米南町店 徒歩9分 (約650m) ローソン 久留米上津バイパス店 徒歩11分 (約840m) モリ薬局 上津店 徒歩10分 (約770m) 久留米市立南小学校 徒歩11分 (約810m) ハローデイ国分店 徒歩17分 (約1290m) コスモス国分バイパス店 徒歩15分 (約1200m) |
||
| 備考 | |||
| 物件番号 | 4403594 | 取引態様 | 媒介 |
取扱店舗情報
| 電話番号 | 0942-50-5735 |
|---|---|
| 所在地 | 〒841-0051 佐賀県鳥栖市元町1246番地3 |
| 営業時間 | 10:00~18:00 |
| 定休日 | 水曜日 |
| 宅建免許番号 | 佐賀県知事(1)第2561号 |
| アクセス | 店舗への地図はこちら |

来店ご予約
福岡県久留米市で価格が似ている物件はこちら
- 福岡県
マイページ物件数 - 8,881件
最近見た物件
-
-

-
- 中古一戸建て
- 798万円
-
児玉郡上里町大字神保原町
-
JR高崎線神保原
-
-
-

-
- 中古マンション
- 9,980万円
-
江東区平野1丁目
-
都営大江戸線清澄白河
-
福岡県新築一戸建て新着物件
-
-

-
- 新築一戸建て
- 4,698万円
-
福岡市早良区原4丁目
-
福岡市空港線室見駅
-
-
-

-
- 新築一戸建て
- 4,998万円
-
福岡市早良区原4丁目
-
福岡市空港線室見駅
-
-
-

-
- 新築一戸建て
- 2,499万円
-
北九州市小倉北区黒住町
-
JR日豊本線城野駅
-
-
-

-
- 新築一戸建て
- 3,999万円
-
福岡市博多区浦田2丁目
-
JR香椎線須恵中央駅
-
-
-

-
- 新築一戸建て
- 2,999万円
-
筑後市大字熊野
-
JR鹿児島本線羽犬塚駅
-
-
-

-
- 新築一戸建て
- 3,199万円
-
筑後市大字熊野
-
JR鹿児島本線羽犬塚駅
-
-
-

-
- 新築一戸建て
- 4,199万円
-
小郡市小板井
-
西鉄天神大牟田線西鉄小郡駅
-
- お近くの店舗を探す
-
おすすめ物件
-
-

-
- 新築一戸建て
- 3,880万円
-
福岡市早良区飯倉3丁目
-
福岡市空港線西新
-
-
-

-
- 新築一戸建て
- 2,998万円
-
北九州市小倉北区今町2丁目
-
北九州高速鉄道城野
-
-
-

-
- 新築一戸建て
- 3,288万円
-
福岡市南区柏原1丁目
-
西鉄天神大牟田線高宮
-
-
-

-
- 新築一戸建て
- 2,498万円
-
宗像市ひかりヶ丘4丁目
-
JR鹿児島本線東郷
-
-
-

-
- 新築一戸建て
- 3,698万円
-
宗像市自由ヶ丘9丁目
-
JR鹿児島本線赤間
-
-
-

-
- 新築一戸建て
- 3,698万円
-
宗像市田熊2丁目
-
JR鹿児島本線東郷
-
-
-

-
- 新築一戸建て
- 4,398万円
-
福岡市早良区梅林7丁目
-
福岡市七隈線梅林
-
-
-

-
- 新築一戸建て
- 2,588万円
-
宗像市東郷6丁目
-
JR鹿児島本線東郷
-
-
-

-
- 新築一戸建て
- 4,080万円
-
宗像市田久3丁目
-
JR鹿児島本線赤間
-
-
-

-
- 新築一戸建て
- 3,198万円
-
宗像市原町
-
JR鹿児島本線東郷
-























担当エージェント:今里
土地・新築、中古戸建、全国700店舗以上の
ネットワークでお手伝い致します!
0942-50-5735鳥栖郵便局そば、お気軽にご相談ください♪