久留米市東櫛原 3号棟 DSK
掲載情報更新日:2026年03月09日 次回更新予定日:2026年03月23日
- 3,399万円
-
- 借入ご希望金額
万円 - 借入期間
年 - 借入金利
% - 月々のお支払い金額
円
- 借入ご希望金額
※ 月々のお支払例は目安の試算となりますので、実際の金額とは異なる場合がございます。詳しくは店舗までお問合わせください。
- 久留米市東櫛原町
-
西鉄天神大牟田線『櫛原』 徒歩4分 (約320m)
久留米市東櫛原 3号棟 DSK一戸建て | 物件情報
物件の設備
- 電気
- オール電化
- 上水道
- 下水道
- 浄水器
- 食器洗浄乾燥機
- IHクッキングヒータ
- カウンターキッチン
- システムキッチン
- バス
- オートバス
- 追焚機能
- 浴室暖房
- 浴室乾燥機
- 浴室に窓
- トイレ
- トイレ2箇所
- 温水洗浄便座
- 室内洗濯機置場
- 洗髪洗面化粧台
- モニタ付インターホン
- LDK15畳以上
- 複層ガラス
- 全居室複層ガラス
- フローリング
- 全室フローリング
- シャッター雨戸
- 24時間換気システム
- クローゼット
- ウォークインクローゼット
- 床下収納
- 全居室収納
- シューズボックス
物件の特徴
- 2階建
物件詳細情報
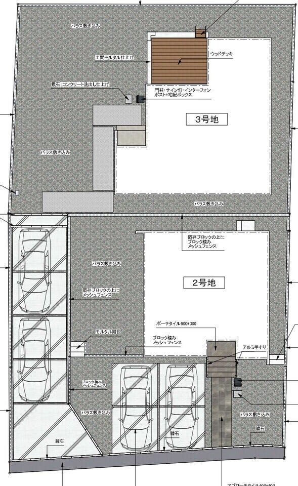
| 価格 | 3,399万円 | 間取り | 4LDK |
|---|---|---|---|
| 物件種別 | 新築一戸建て | ||
| 所在地 | 福岡県久留米市東櫛原町 | ||
| アクセス |
|
||
| 建物面積 | 107.64㎡ | 駐車場 | あり |
| 築年月 | 2026年(令和8年)01月予定 | 建築確認 | 第R07確認建築福住セ本00435号 |
| 建物構造 | 木造 2階建 | 工法 | |
| 主要採光 | バルコニー | ||
| 保証・評価 | |||
| 分譲情報 | 【販売戸数】:2戸 |
||
| 土地面積 | 258.86㎡(78.30坪) | 接道 | 北側幅 約3.3m 間口 約3.50m |
| 私道 | セットバック | ||
| 地目 | 宅地 | 地勢 | |
| 権利 | 所有権 |
||
| 都市計画 | 市街化区域 |
用途地域 | 1種住居 |
| 建ぺい/容積率 | 60% / 160% | 土地国土法 | |
| 許可番号 | 建築基準法 | ||
| 法令制限 | |||
| 小学区 | 南薫小学校 徒歩7分 (約560m) | 中学区 | 櫛原中学校 徒歩6分 (約420m) |
| 現況 | 建築中 | 引渡 | 期日指定:2026年01月以降 |
| その他費用 | |||
| 周辺環境 | 西鉄天神大牟田線 櫛原駅 徒歩4分 (約320m) 久留米市立櫛原中学校 徒歩6分 (約440m) 久留米市立南薫小学校 徒歩8分 (約570m) セブンイレブン 久留米櫛原店 徒歩9分 (約660m) マックスバリュ 櫛原店 徒歩11分 (約870m) ドラッグストアモリ 櫛原店 徒歩12分 (約890m) ファミリーマート 東櫛原店 徒歩12分 (約910m) 業務スーパー 久留米東櫛原店 徒歩12分 (約960m) |
||
| 備考 | |||
| 物件番号 | 4403792 | 取引態様 | 媒介 |
取扱店舗情報
| 電話番号 | 0942-50-5735 |
|---|---|
| 所在地 | 〒841-0051 佐賀県鳥栖市元町1246番地3 |
| 営業時間 | 10:00~18:00 |
| 定休日 | 水曜日 |
| 宅建免許番号 | 佐賀県知事(2)第2561号 |
| アクセス | 店舗への地図はこちら |

来店ご予約
福岡県久留米市で価格が似ている物件はこちら
- 福岡県
マイページ物件数 - 8,778件
最近見た物件
-
-

-
- 土地
- 1,008.40万円
-
尾道市向島町
-
田尻バス停
-
-
-

-
- 土地
- 1,200万円
-
北九州市門司区緑ケ丘
-
JR鹿児島本線門司
-
福岡県新築一戸建て新着物件
-
-

-
- 新築一戸建て
- 3,998万円
-
筑紫野市紫1丁目
-
西鉄天神大牟田線紫駅
-
-
-

-
- 新築一戸建て
- 2,998万円
-
糟屋郡宇美町障子岳2丁目
-
西鉄バス極楽寺入口
-
-
-

-
- 新築一戸建て
- 3,198万円
-
糟屋郡宇美町障子岳2丁目
-
西鉄バス極楽寺入口
-
-
-

-
- 新築一戸建て
- 3,398万円
-
糟屋郡宇美町障子岳2丁目
-
西鉄バス極楽寺入口
-
-
-

-
- 新築一戸建て
- 3,798万円
-
筑紫野市二日市北6丁目
-
西鉄太宰府線西鉄二日市駅
-
-
-

-
- 新築一戸建て
- 3,489万円
-
糟屋郡宇美町大字井野
-
JR香椎線宇美駅
-
-
-

-
- 新築一戸建て
- 3,298万円
-
糟屋郡宇美町大字井野
-
JR香椎線宇美駅
-
- お近くの店舗を探す
-
おすすめ物件
-
-

-
- 新築一戸建て
- 4,098万円
-
那珂川市今光8丁目
-
JR博多南線博多南
-
-
-

-
- 新築一戸建て
- 4,280万円
-
糟屋郡志免町王子2丁目
-
福岡市空港線福岡空港
-
-
-

-
- 新築一戸建て
- 2,688万円
-
福津市西福間3丁目
-
JR鹿児島本線福間
-
-
-

-
- 新築一戸建て
- 3,980万円
-
福津市西福間1丁目
-
JR鹿児島本線福間
-
-
-

-
- 新築一戸建て
- 3,498万円
-
北九州市小倉南区葛原本町5丁目
-
西鉄バス葛原東1丁目停
-
-
-

-
- 新築一戸建て
- 3,999万円
-
福岡市南区皿山1丁目
-
西鉄天神大牟田線高宮
-
-
-

-
- 新築一戸建て
- 3,298万円
-
宗像市須恵4丁目
-
JR鹿児島本線赤間
-
-
-

-
- 新築一戸建て
- 3,198万円
-
太宰府市青山2丁目
-
西鉄太宰府線西鉄五条
-
-
-

-
- 新築一戸建て
- 4,498万円
-
福岡市南区長住1丁目
-
西鉄天神大牟田線高宮
-
-
-

-
- 新築一戸建て
- 3,098万円
-
宗像市徳重
-
JR鹿児島本線教育大前
-





