神埼郡吉野ヶ里町田手2号地
掲載情報更新日:2026年04月10日 次回更新予定日:2026年04月24日
- 3,599万円
-
- 借入ご希望金額
万円 - 借入期間
年 - 借入金利
% - 月々のお支払い金額
円
- 借入ご希望金額
※ 月々のお支払例は目安の試算となりますので、実際の金額とは異なる場合がございます。詳しくは店舗までお問合わせください。
- 神埼郡吉野ヶ里町田手
-
JR長崎本線『吉野ヶ里公園』 徒歩16分 (約1250m)
神埼郡吉野ヶ里町田手2号地一戸建て | 物件情報
物件の設備
- オール電化
- 上水道
- 下水道
- 複層ガラス
- シャッター雨戸
物件の特徴
- 24工法
- 前道6m以上
- 2階建
物件詳細情報
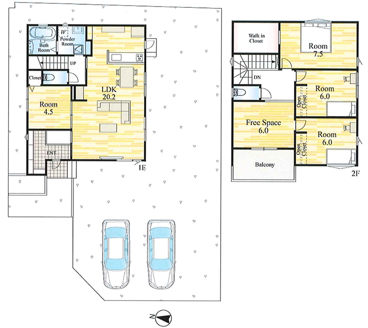
| 価格 | 3,599万円 | 間取り | 4LDK |
|---|---|---|---|
| 物件種別 | 新築一戸建て | ||
| 所在地 | 佐賀県神埼郡吉野ヶ里町田手 | ||
| アクセス |
|
||
| 建物面積 | 120.06㎡ | 駐車場 | あり 普通:2台 |
| 築年月 | 2026年(令和8年)02月築 | 建築確認 | 第12503540号 |
| 建物構造 | 木造 2階建 | 工法 | |
| 主要採光 | バルコニー | ||
| 保証・評価 | |||
| 土地面積 | 218.77㎡(66.17坪) | 接道 | 東側(公道)幅 約5.4m 間口 約13.20m 西側(公道)幅 約6.0m 間口 約17.10m |
| 私道 | セットバック | ||
| 地目 | 宅地 | 地勢 | |
| 権利 | 所有権 |
||
| 都市計画 | 非線引区域 |
用途地域 | 指定無 |
| 建ぺい/容積率 | 70% / 200% | 土地国土法 | |
| 許可番号 | 建築基準法 | ||
| 法令制限 | |||
| 小学区 | 三田川小学校 徒歩10分 (約780m) | 中学区 | 三田川中学校 徒歩9分 (約680m) |
| 現況 | 完工済 | 引渡 | 相談 |
| その他費用 | |||
| 周辺環境 | スーパーモリナガ 吉野ヶ里店 徒歩4分 (約320m) 佐賀銀行ATM吉野ヶ里田手 徒歩4分 (約320m) 吉野ヶ里町立三田川小学校 徒歩10分 (約780m) 吉野ヶ里町中央公民館 徒歩11分 (約840m) 吉野ヶ里町立三田川中学校 徒歩9分 (約680m) 吉野ヶ里歴史公園 徒歩13分 (約970m) 吉野ヶ里町役場 三田川庁舎 徒歩11分 (約880m) 吉野ヶ里公園駅 徒歩16分 (約1250m) ダイレックス 神埼店 徒歩20分 (約1530m) 吉野ヶ里町立吉野ヶ里保育園 徒歩22分 (約1710m) |
||
| 備考 | 記載面積は分筆前の面積であり、分筆後に面積の増減がある場合があります。あらかじめご了承下さい | ||
| 物件番号 | 4411119 | 取引態様 | 媒介 |
取扱店舗情報
| 電話番号 | 0952-20-7791 |
|---|---|
| 所在地 | 〒842-0031 佐賀県神埼郡吉野ヶ里町吉田272-12 |
| 営業時間 | 9:30~18:00 |
| 定休日 | 火・水曜日,年末年始等 |
| 宅建免許番号 | 佐賀県知事(1)第2688号 |
| アクセス | 店舗への地図はこちら |

来店ご予約
佐賀県神埼郡吉野ヶ里町で価格が似ている物件はこちら
- 佐賀県
マイページ物件数 - 1,587件
最近見た物件
-
-

-
- 土地
- 1,200万円
-
阪南市箱作
-
南海電鉄本線箱作
-
-
-

-
- 土地
- 1,150万円
-
姫路市網干区田井
-
JR山陽本線はりま勝原
-
-
-

-
- 土地
- 1,980万円
-
名古屋市緑区大清水5丁目
-
名鉄名古屋本線中京競馬場前
-
佐賀県新築一戸建て新着物件
-
-

-
- 新築一戸建て
- 2,998万円
-
佐賀市巨勢町大字牛島
-
バス停「モラージュ佐賀前」
-
-
-

-
- 新築一戸建て
- 2,998万円
-
佐賀市高木瀬町大字東高木
-
JR長崎本線佐賀駅
-
-
-

-
- 新築一戸建て
- 2,998万円
-
佐賀市高木瀬町大字東高木
-
JR長崎本線佐賀駅
-
-
-

-
- 新築一戸建て
- 3,080万円
-
三養基郡上峰町大字坊所
-
JR長崎本線吉野ヶ里公園駅
-
-
-

-
- 新築一戸建て
- 2,998万円
-
佐賀市高木瀬町大字東高木
-
JR長崎本線佐賀駅
-
-
-

-
- 新築一戸建て
- 2,998万円
-
佐賀市高木瀬町大字東高木
-
JR長崎本線佐賀駅
-
-
-

-
- 新築一戸建て
- 2,998万円
-
佐賀市多布施4丁目
-
JR長崎本線佐賀駅
-
- お近くの店舗を探す
-
おすすめ物件
-
-

-
- 新築一戸建て
- 2,498万円
-
鳥栖市平田町
-
JR長崎本線肥前麓
-
-
-

-
- 新築一戸建て
- 2,498万円
-
鳥栖市田代外町
-
JR鹿児島本線田代
-
-
-

-
- 新築一戸建て
- 3,680万円
-
佐賀市本庄町大字袋
-
バス停「八田橋」
-
-
-

-
- 新築一戸建て
- 4,380万円
-
佐賀市高木瀬西5丁目
-
佐賀市営バス「高木瀬公民館前」
-
-
-

-
- 新築一戸建て
- 3,299万円
-
神埼郡吉野ヶ里町豆田
-
JR長崎本線吉野ヶ里公園
-
-
-

-
- 新築一戸建て
- 2,798万円
-
鳥栖市宿町
-
JR鹿児島本線鳥栖
-
-
-

-
- 新築一戸建て
- 2,798万円
-
鳥栖市曽根崎町
-
JR鹿児島本線鳥栖
-
-
-

-
- 新築一戸建て
- 3,899万円
-
鳥栖市宿町
-
JR九州新幹線新鳥栖
-
-
-

-
- 新築一戸建て
- 3,799万円
-
鳥栖市宿町
-
JR九州新幹線新鳥栖
-
-
-

-
- 新築一戸建て
- 3,300万円
-
三養基郡上峰町大字前牟田字上米多
-
JR長崎本線吉野ヶ里公園
-




















