長期優良♪性能評価♪ブルーミングガーデン東広島市西条町寺家
掲載情報更新日:2025年10月31日 次回更新予定日:2025年11月14日
- 3,990万円
-
- 借入ご希望金額
万円 - 借入期間
年 - 借入金利
% - 月々のお支払い金額
円
- 借入ご希望金額
※ 月々のお支払例は目安の試算となりますので、実際の金額とは異なる場合がございます。詳しくは店舗までお問合わせください。
- 東広島市西条町寺家
-
JR山陽本線『西条』 徒歩7分 (約490m)
長期優良♪性能評価♪ブルーミングガーデン東広島市西条町寺家一戸建て | 物件情報
住宅の性能に自信ありの物件!人気の寺家地区で令和7年11月に完成予定! 教育施設も徒歩圏内に充実♪
●長期優良住宅、住宅性能評価W取得(設計&建設)
●制震ダンパー・耐震等級3 ●省エネ基準適合認定書あり
●エネルギー消費性能★★★(削減率20%達成)
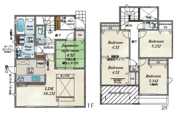
◇LDKに隣接する和室を開放すれば”20帖超”で広々
◇吹抜を利用して、明るい開放的空間
【教育施設】
西条保育所・・・徒歩約9分
西条幼稚園、龍王小学校、西条中学校・・・徒歩約14分
【商業施設他】
セブンイレブン東広島西条駅北店・・・徒歩約4分
ハローズ東広島店・・・徒歩約12分
東広島市役所・・・徒歩約15分
物件の設備
- オール電化
- 給湯
- 浄水器
- 食器洗浄乾燥機
- IHクッキングヒータ
- コンロ三口
- カウンターキッチン
- システムキッチン
- バス
- ユニットバス
- オートバス
- バス1坪以上
- 追焚機能
- 浴室暖房
- 浴室乾燥機
- 浴室に窓
- トイレ
- トイレ2箇所
- 温水洗浄便座
- 洗髪洗面化粧台
- ダウンライト
- 省エネ給湯器
- カードキー
- モニタ付インターホン
- 火災警報器/報知機
- LDK15畳以上
- 和室
- 吹抜
- 複層ガラス
- 全居室複層ガラス
- フローリング
- 24時間換気システム
- 網戸
- クローゼット
- クローゼット2箇所
- クローゼット3箇所
- 床下収納
- 全居室収納
- シューズボックス
- バルコニー
- ワイドバルコニー
- インナーバルコニー
物件の特徴
- 南向
- 制震構造
- 駅まで平坦
- 前道6m以上
- リバーサイド
- 閑静な住宅街
- 市街地が近い
- 2階建
- 外壁サイディング
- 長期優良住宅
- 建設住宅性能評価付
- 設計住宅性能評価付
- 建築確認完了検査済証
- 新築
- 増改築設計図書
- BELS/省エネ基準適合
物件詳細情報
| 価格 | 3,990万円 | 間取り | 4LDK |
|---|---|---|---|
| 物件種別 | 新築一戸建て | ||
| 所在地 | 広島県東広島市西条町寺家 | ||
| アクセス |
|
||
| 建物面積 | 実107.23㎡ | 駐車場 | あり 普通:2台 |
| 築年月 | 2025年(令和7年)11月予定 | 建築確認 | 第R07SHC111840号 |
| 建物構造 | 木造 2階建 | 工法 | |
| 主要採光 | バルコニー | 南西向6.62㎡ | |
| 保証・評価 | 長期優良住宅認定通知書・設計住宅性能評価書・建設住宅性能評価書(新築時) |
||
| 土地面積 | 公125.82㎡(38.06坪) | 接道 | 東側幅 約6.5m 間口 約12.50m |
| 私道 | 別:285.24㎡(持分 1/20) | セットバック | |
| 地目 | 宅地 | 地勢 | |
| 権利 | 所有権 |
||
| 都市計画 | 市街化区域 |
用途地域 | 1種中高 |
| 建ぺい/容積率 | 60% / 200% | 土地国土法 | |
| 許可番号 | 建築基準法 | ||
| 法令制限 | 景観法・宅地造成工事規制区域・日影制限有 | ||
| 小学区 | 龍王小学校 徒歩15分 (約1140m) | 中学区 | 西条中学校 徒歩15分 (約1150m) |
| 現況 | 建築中 | 引渡 | 期日指定:2025年11月以降 |
| その他費用 | |||
| 周辺環境 | セブンイレブン東広島西条駅北店 徒歩4分 (約280m) JR山陽本線 西条駅 徒歩7分 (約490m) セブンイレブン東広島西条西本町店 徒歩9分 (約720m) 西条中央公園 徒歩12分 (約960m) 安芸西条郵便局 徒歩12分 (約940m) ハローズ東広島店 徒歩11分 (約820m) 東広島市立龍王小学校 徒歩15分 (約1140m) ローソン東広島市役所南店 徒歩16分 (約1270m) 東広島市立西条中学校 徒歩15分 (約1150m) |
||
| 備考 | ●長期優良住宅、住宅性能評価W取得(設計&建設) ●制震ダンパー・耐震等級3 ●省エネ基準適合認定書あり ◇LDKに隣接する和室を開放すれば”20帖超”で広々 ◇吹抜を利用して、明るい開放的空間 |
||
| 物件番号 | 4413370 | 取引態様 | 媒介 |
取扱店舗情報
ハウスドゥ 八本松正力 株式会社ノア・コーポレーション 店舗詳細ページへ
| 電話番号 | 082-490-3341 |
|---|---|
| 所在地 | 〒739-0132 広島県東広島市八本松町正力1089-6 |
| 営業時間 | 9:00~18:00 |
| 定休日 | 水曜日、年末年始 |
| 宅建免許番号 | 広島県知事(1)第11474号 |
| アクセス | 店舗への地図はこちら |

来店ご予約
広島県東広島市で価格が似ている物件はこちら
- 広島県
マイページ物件数 - 4,697件
広島県新築一戸建て新着物件
-
-

-
- 新築一戸建て
- 3,293万円
-
福山市草戸町1丁目
-
JR山陽本線福山駅
-
-
-

-
- 新築一戸建て
- 2,980万円
-
福山市今津町3丁目
-
JR山陽本線松永駅
-
-
-

-
- 新築一戸建て
- 3,080万円
-
福山市今津町3丁目
-
JR山陽本線松永駅
-
-
-

-
- 新築一戸建て
- 3,180万円
-
福山市今津町3丁目
-
JR山陽本線松永駅
-
-
-

-
- 新築一戸建て
- 2,580万円
-
福山市引野町南1丁目
-
JR山陽本線東福山駅
-
-
-

-
- 新築一戸建て
- 2,580万円
-
福山市引野町南1丁目
-
JR山陽本線東福山駅
-
-
-

-
- 新築一戸建て
- 2,980万円
-
広島市安芸区瀬野町
-
みつぎ団地バス停
-
- お近くの店舗を探す
-














リビングとつながる和室は小さなお子様がいらっしゃるご家庭にもオススメです!
2階の3部屋は将来的に4部屋に変更することも可能で、家族のカタチに合わせて過ごしていくことが出来そうですね。
完成前でもお問合せ大歓迎です!
皆様の夢の住まいのお手伝いをできれば。と思っております!