蒲郡市豊岡町中屋敷の新築戸建
掲載情報更新日:2026年01月10日 次回更新予定日:2026年01月24日
- 2,390万円
-
- 借入ご希望金額
万円 - 借入期間
年 - 借入金利
% - 月々のお支払い金額
円
- 借入ご希望金額
※ 月々のお支払例は目安の試算となりますので、実際の金額とは異なる場合がございます。詳しくは店舗までお問合わせください。
- 蒲郡市豊岡町中屋敷
-
JR東海道本線『三河三谷』 徒歩24分 (約1920m)
名鉄蒲郡線『蒲郡』 車9分(約3.0km)
JR東海道本線『蒲郡』 車9分(約3.0km)
蒲郡市豊岡町中屋敷一戸建て | 物件情報
【本日見学できます】蒲郡東部小・三谷中/まずは資料請求大歓迎!キャンペーンも開催中♪
【ハウスドゥ幸田 独自のキャンペーン!】
2025/12/27までにご購入申込みのお客様限定!
エアコン1台設置!または豊富なオプションカタログから選べる「10万円分」プレゼント!
○ご見学予約は○
フリーダイヤル 【0120-222-651】
お気軽にお問い合わせくださいませ♪
【イチオシポイント】
◎防犯カメラ&モニター付きインターホン
◎インナーバルコニーがあり、急な雨も安心です♪
◎全居室複層ガラス!
◎畳スペースがあり、お子様と遊ぶスペースや休憩に最適なスペースです!
【学校】
◎蒲郡東部小学校 徒歩約4分
◎三谷中学校 徒歩約34分
◎JR東海道本線 三河三谷駅
物件の設備
- 公営水道
- 浄化槽
- プロパンガス
- 個別プロパン
- 浄水器
- 食品庫
- コンロ三口
- グリル
- ガスオーブン
- カウンターキッチン
- システムキッチン
- バス
- ユニットバス
- オートバス
- 追焚機能
- 浴室暖房
- 浴室乾燥機
- 浴室に窓
- トイレ
- トイレ2箇所
- 温水洗浄便座
- 室内洗濯機置場
- 洗髪洗面化粧台
- 洗面所独立
- ダウンライト
- 人感照明センサー
- モニタ付インターホン
- 防犯カメラ
- 火災警報器/報知機
- LDK15畳以上
- 和室
- 2面採光
- 複層ガラス
- 全居室複層ガラス
- クローゼット
- クローゼット3箇所
- 納戸
- 床下収納
- 全居室収納
- シューズボックス
- ルーフバルコニー
- ワイドバルコニー
- インナーバルコニー
物件の特徴
- 南向
- 地盤調査済
- 耐震構造
- 始発駅
- 3沿線以上利用可
- 総合病院徒歩10分以内
- 小学校徒歩10分以内
- セットバック済
- 南側道路面す
- 閑静な住宅街
- 通風良好
- 陽当り良好
- 2階建
- フラット35
- S適合証明書
- フラット35Sに対応
物件詳細情報
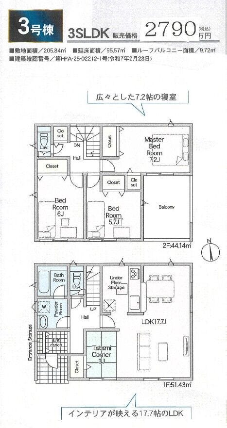
| 価格 | 2,390万円 | 間取り | 3LDK+S |
|---|---|---|---|
| 物件種別 | 新築一戸建て | ||
| 所在地 | 愛知県蒲郡市豊岡町中屋敷 3号棟 | ||
| アクセス |
|
||
| 建物面積 | 公95.57㎡ | 駐車場 | あり 普通:2台 |
| 築年月 | 2025年(令和7年)12月築 | 建築確認 | 第HPA-25-02212-1号 |
| 建物構造 | 木造 2階建 | 工法 | |
| 主要採光 | 南向 | バルコニー | 9.72㎡ |
| 保証・評価 | フラット35S適合証明書 |
||
| 分譲情報 | 【販売戸数】:4戸 【価格】:2,490万円 ~2,790万円 |
||
| 土地面積 | 公205.84㎡(62.26坪) | 接道 | 南側(公道)幅 約4.0m |
| 私道 | セットバック | 済 | |
| 地目 | 宅地 | 地勢 | |
| 権利 | 所有権 |
||
| 都市計画 | 調整区域 |
用途地域 | 指定無 |
| 建ぺい/容積率 | 60% / 200% | 土地国土法 | |
| 許可番号 | 建築基準法 | ||
| 法令制限 | 法第22条区域・下水道処理区域外 | ||
| 小学区 | 蒲郡東部小学校 徒歩4分 (約300m) | 中学区 | 三谷中学校 徒歩32分 (約2500m) |
| 現況 | 建築中 | 引渡 | 期日指定:2025年12月以降 |
| その他費用 | |||
| 周辺環境 | とよおかクリニック 徒歩3分 (約220m) 蒲郡市立蒲郡東部小学校 徒歩6分 (約430m) 蒲郡市立東部保育園 徒歩7分 (約560m) ローソン 蒲郡豊岡町店 徒歩10分 (約750m) スギ薬局 蒲郡店 徒歩11分 (約840m) 蒲郡市民病院 徒歩10分 (約760m) 五反田公園 徒歩16分 (約1230m) 業務スーパー蒲郡店 徒歩22分 (約1740m) 宝光福祉会 みどり保育園 徒歩13分 (約970m) 向山公園 徒歩14分 (約1100m) |
||
| 備考 | |||
| 物件番号 | 4416289 | 取引態様 | 媒介 |
取扱店舗情報
| 電話番号 | 0564-73-1620 |
|---|---|
| 所在地 | 〒444-0117 愛知県額田郡幸田町大字相見字沖原69番地 アヴニール相見101号室 |
| 営業時間 | 9:00~18:00 |
| 定休日 | 水曜日 |
| 宅建免許番号 | 愛知県知事(1)第25500号 |
| アクセス | 店舗への地図はこちら |

来店ご予約
愛知県蒲郡市で価格が似ている物件はこちら
- 愛知県
マイページ物件数 - 31,873件
愛知県新築一戸建て新着物件
-
-

-
- 新築一戸建て
- 5,080万円
-
名古屋市中村区大正町3丁目
-
名古屋市桜通線太閤通駅
-
-
-

-
- 新築一戸建て
- 4,980万円
-
名古屋市中村区大正町3丁目
-
名古屋市桜通線太閤通駅
-
-
-

-
- 新築一戸建て
- 4,480万円
-
名古屋市瑞穂区丸根町1丁目
-
名古屋市名城線瑞穂運動場東駅
-
-
-

-
- 新築一戸建て
- 4,480万円
-
名古屋市瑞穂区丸根町1丁目
-
名古屋市名城線瑞穂運動場東駅
-
-
-

-
- 新築一戸建て
- 3,490万円
-
豊川市美園3丁目
-
名鉄名古屋本線伊奈駅
-
-
-

-
- 新築一戸建て
- 3,190万円
-
江南市大間町新町
-
名鉄犬山線江南駅
-
-
-

-
- 新築一戸建て
- 3,090万円
-
江南市大間町新町
-
名鉄犬山線江南駅
-
- お近くの店舗を探す
-
おすすめ物件
-
-

-
- 新築一戸建て
- 1,990万円
-
蒲郡市水竹町木船
-
JR東海道本線蒲郡
-
-
-

-
- 新築一戸建て
- 2,890万円
-
清須市春日弐屋敷
-
JR東海道本線清洲
-
-
-

-
- 新築一戸建て
- 3,180万円
-
清須市春日上須ケ田
-
JR東海道本線清洲
-
-
-

-
- 新築一戸建て
- 3,590万円
-
半田市亀崎高根町8丁目
-
JR武豊線亀崎
-
-
-

-
- 新築一戸建て
- 3,490万円
-
小牧市郷中2丁目
-
名鉄小牧線小牧口
-
-
-

-
- 新築一戸建て
- 3,190万円
-
西尾市中畑町宮東
-
名鉄三河線碧南中央
-
-
-

-
- 新築一戸建て
- 3,499万円
-
名古屋市南区観音町9丁目
-
名鉄常滑線道徳
-
-
-

-
- 新築一戸建て
- 3,599万円
-
清須市須ケ口野中
-
名鉄名古屋本線須ヶ口
-
-
-

-
- 新築一戸建て
- 3,380万円
-
清須市土器野本山
-
名鉄名古屋本線須ヶ口
-
-
-

-
- 新築一戸建て
- 2,890万円
-
知多郡阿久比町大字草木字東郷
-
名鉄河和線坂部
-



























【ハウスドゥ幸田 株式会社アクア】
■何を相談して良いか、わからなくても大丈夫♪
■皆様のライフプランに寄り添ったご提案♪
■自己資金0円で購入出来る方法♪
■月々の支払いでご不安な方も、お気軽にどうぞ♪