岡山市中区山崎の新築戸建
掲載情報更新日:2026年02月05日 次回更新予定日:2026年02月19日
- 2,420万円
-
- 借入ご希望金額
万円 - 借入期間
年 - 借入金利
% - 月々のお支払い金額
円
- 借入ご希望金額
※ 月々のお支払例は目安の試算となりますので、実際の金額とは異なる場合がございます。詳しくは店舗までお問合わせください。
- 岡山市中区山崎
-
『『曹源寺』バス停』 徒歩5分 (約400m)
岡山市中区山崎一戸建て | 物件情報
物件の設備
- 上水道
- 下水道
- 都市ガス
- カウンターキッチン
- システムキッチン
- 浴室乾燥機
- 浴室に窓
- トイレ2箇所
- 温水洗浄便座
- 洗髪洗面化粧台
- 複層ガラス
- ウォークインクローゼット
- 床下収納
- 全居室収納
- シューズボックス
物件の特徴
- 南側道路面す
- 2階建
- 即入居可
物件詳細情報
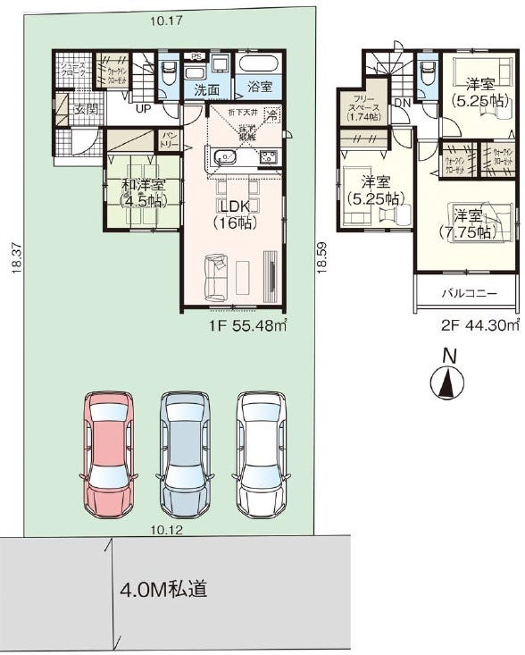
| 価格 | 2,420万円 | 間取り | 4LDK |
|---|---|---|---|
| 物件種別 | 新築一戸建て | ||
| 所在地 | 岡山県岡山市中区山崎 | ||
| アクセス |
|
||
| 建物面積 | 99.78㎡ | 駐車場 | あり 普通:3台 |
| 築年月 | 2025年(令和7年)05月築 | 建築確認 | |
| 建物構造 | 木造 2階建 | 工法 | |
| 主要採光 | バルコニー | ||
| 保証・評価 | |||
| 土地面積 | 187.53㎡(56.72坪) | 接道 | 南側(私道)幅 約4.0m |
| 私道 | セットバック | ||
| 地目 | 宅地 | 地勢 | |
| 権利 | 所有権 |
||
| 都市計画 | 市街化区域 |
用途地域 | 1種低層 |
| 建ぺい/容積率 | 50% / 100% | 土地国土法 | |
| 許可番号 | 建築基準法 | ||
| 法令制限 | |||
| 小学区 | 旭操小学校 徒歩8分 (約600m) | 中学区 | 操南中学校 徒歩33分 (約2600m) |
| 現況 | 完工済 | 引渡 | 即 |
| その他費用 | |||
| 備考 | |||
| 物件番号 | 4421798 | 取引態様 | 媒介 |
取扱店舗情報
ハウスドゥ 岡山平井 株式会社インテックスホームズ 店舗詳細ページへ
| 電話番号 | 086-206-6710 |
|---|---|
| 所在地 | 〒703-8282 岡山県岡山市中区平井7丁目1-18 |
| 営業時間 | 9:00~18:00 |
| 定休日 | 毎週水曜日、第二火曜日 |
| 宅建免許番号 | 岡山県知事(2)第5693号 |
| アクセス | 店舗への地図はこちら |

来店ご予約
岡山県岡山市中区で価格が似ている物件はこちら
- 岡山県
マイページ物件数 - 4,496件
最近見た物件
-
-

-
- 新築一戸建て
- 3,590万円
-
船橋市二宮1丁目
-
東葉高速鉄道飯山満
-
-
-

-
- 中古マンション
- 700万円
-
高崎市昭和町
-
JR信越本線北高崎
-
-
-

-
- 中古一戸建て
- 4,780万円
-
島尻郡与那原町字板良敷
-
北板良敷
-
岡山県新築一戸建て新着物件
-
-

-
- 新築一戸建て
- 2,380万円
-
岡山市北区吉備津
-
JR吉備線吉備津駅
-
-
-

-
- 新築一戸建て
- 2,480万円
-
岡山市北区吉備津
-
JR吉備線吉備津駅
-
-
-

-
- 新築一戸建て
- 3,480万円
-
倉敷市中島
-
JR山陽本線西阿知駅
-
-
-

-
- 新築一戸建て
- 3,080万円
-
浅口市鴨方町六条院中
-
JR山陽本線鴨方駅
-
-
-

-
- 新築一戸建て
- 4,280万円
-
浅口市鴨方町六条院中
-
JR山陽本線鴨方駅
-
-
-

-
- 新築一戸建て
- 3,280万円
-
岡山市中区原尾島2丁目
-
JR山陽本線高島駅
-
-
-

-
- 新築一戸建て
- 3,390万円
-
倉敷市粒江
-
JR宇野線茶屋町駅
-
- お近くの店舗を探す
-
























