子育て世帯も安心な住環境
掲載情報更新日:2026年01月09日 次回更新予定日:2026年01月23日
- 3,380万円
-
- 借入ご希望金額
万円 - 借入期間
年 - 借入金利
% - 月々のお支払い金額
円
- 借入ご希望金額
※ 月々のお支払例は目安の試算となりますので、実際の金額とは異なる場合がございます。詳しくは店舗までお問合わせください。
- 平塚市出縄
-
JR東海道本線『平塚』 バス乗車20分 高村団地 停 徒歩6分 (約450m)
子育て世帯も安心な住環境一戸建て | 物件情報
■子育て世帯も安心な住環境
■学区内小・中学校まで徒歩約6分で通学安心
■スーパーやコンビニ近く生活便利な住環境
■吹抜からの採光で明るく広々としたLDK
■カースペース2台駐車可(車種による)
※その他持分:ゴミ集積所(4.42㎡×1/10)
※都市計画道路:平塚山下線(5号棟~9号棟)
物件の設備
- 電気
- 上水道
- 公営水道
- 下水道
- 公共下水
- プロパンガス
- 個別プロパン
- 給湯
- 浄水器
- 食器洗浄乾燥機
- カウンターキッチン
- システムキッチン
- オートバス
- 浴室暖房
- 浴室乾燥機
- トイレ2箇所
- 温水洗浄便座
- 室内洗濯機置場
- 洗髪洗面化粧台
- 室内物干機
- モニタ付インターホン
- ロフト
- LDK15畳以上
- 吹抜
- 全居室複層ガラス
- 24時間換気システム
- 全居室収納
- シューズボックス
物件の特徴
- 耐震構造
- 制震構造
- 2階建
- 建設住宅性能評価付
- 設計住宅性能評価付
- BELS/省エネ基準適合
物件詳細情報
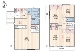
| 価格 | 3,380万円 | 間取り | 4LDK |
|---|---|---|---|
| 物件種別 | 新築一戸建て | ||
| 所在地 | 神奈川県平塚市出縄 9号棟 | ||
| アクセス |
|
||
| 建物面積 | 公100.48㎡ | 駐車場 | あり 普通:2台 |
| 築年月 | 2026年(令和8年)02月予定 | 建築確認 | 第R07SHC116741号 |
| 建物構造 | 木造 2階建 | 工法 | |
| 主要採光 | バルコニー | ||
| 保証・評価 | 設計住宅性能評価書・建設住宅性能評価書(新築時) |
||
| 分譲情報 | |||
| 土地面積 | 公127.79㎡(38.65坪) | 接道 | 南西側(私道)幅 約4.5m |
| 私道 | 別:公323.55㎡(持分 1/10) | セットバック | |
| 地目 | 宅地 | 地勢 | |
| 権利 | 所有権 |
||
| 都市計画 | 市街化区域 |
用途地域 | 1種中高 |
| 建ぺい/容積率 | 60% / 200% | 土地国土法 | |
| 許可番号 | 建築基準法 | ||
| 法令制限 | 高度地区・準防火地域 | ||
| 小学区 | 勝原小学校 徒歩6分 (約450m) | 中学区 | 山城中学校 徒歩5分 (約400m) |
| 現況 | 建築中 | 引渡 | 期日指定:2026年02月下旬 |
| その他費用 | |||
| 周辺環境 | 勝原小学校 徒歩6分 (約450m) 山城中学校 徒歩5分 (約400m) いずみ保育園 徒歩6分 (約450m) 育英幼稚園 徒歩5分 (約380m) セブンイレブン 万田店 徒歩6分 (約450m) しまむらストアー 旭店 徒歩8分 (約620m) クリエイトS・D万田店 徒歩11分 (約830m) |
||
| 備考 | ■学区内小・中学校まで徒歩約6分で通学安心 ■スーパーやコンビニ近く生活便利な住環境 ■吹抜からの採光で明るく広々としたLDK ■カースペース2台駐車可(車種による) ※その他持分:ゴミ集積所(4.42㎡×1/10) ※都市計画道路:平塚山下線(5号棟~9号棟) |
||
| 物件番号 | 4426008 | 取引態様 | 媒介 |
取扱店舗情報
| 電話番号 | 0463-24-8885 |
|---|---|
| 所在地 | 〒254-0073 神奈川県平塚市西八幡2丁目9-1 |
| 営業時間 | 9:00~18:00 |
| 定休日 | 第1・3火曜日、水曜日、年末年始 |
| 宅建免許番号 | 神奈川県知事(3)第28824号 |
| アクセス | 店舗への地図はこちら |

来店ご予約
神奈川県平塚市で価格が似ている物件はこちら
- 神奈川県
マイページ物件数 - 3,048件
神奈川県新築一戸建て新着物件
-
-

-
- 新築一戸建て
- 3,680万円
-
厚木市戸田
-
小田急小田原線本厚木駅
-
-
-

-
- 新築一戸建て
- 4,499万円
-
海老名市下今泉4丁目
-
JR相模線入谷駅
-
-
-

-
- 新築一戸建て
- 4,199万円
-
海老名市下今泉4丁目
-
JR相模線入谷駅
-
-
-

-
- 新築一戸建て
- 6,199万円
-
厚木市南町
-
小田急小田原線本厚木駅
-
-
-

-
- 新築一戸建て
- 6,199万円
-
厚木市南町
-
小田急小田原線本厚木駅
-
-
-

-
- 新築一戸建て
- 3,680万円
-
横浜市南区大橋町1丁目
-
横浜市営地下鉄ブルーライン弘明寺駅
-
-
-

-
- 新築一戸建て
- 3,180万円
-
厚木市下川入
-
小田急小田原線本厚木駅
-
- お近くの店舗を探す
-
おすすめ物件
-
-

-
- 新築一戸建て
- 4,580万円
-
厚木市妻田南1丁目
-
小田急小田原線本厚木
-
-
-

-
- 新築一戸建て
- 5,799万円
-
横浜市南区大岡3丁目
-
横浜市営地下鉄ブルーライン弘明寺
-
-
-

-
- 新築一戸建て
- 2,680万円
-
平塚市公所
-
JR東海道本線平塚
-
-
-

-
- 新築一戸建て
- 7,180万円
-
横浜市中区本郷町3丁目
-
JR京浜東北・根岸線山手
-








ハウスドゥ 湘南平塚(株式会社プレジャー)
[営業時間]9:00~18:00
[定休日]第1週・第3週の火曜日、及び毎週水曜日
JR東海道線「平塚」駅よりバス乗車6分
「八幡」停留所 目の前です。
●店舗前に5台分の駐車スペースがございます。
●平塚駅など近隣地への送迎いたします。
●キッズスペース、授乳室を完備しております。
お子様連れのお客様もご安心してご来店ください。
●すぐにご来店が難しいお客様もお気軽にご相談ください。