岸和田市極楽寺町1丁目の新築戸建
掲載情報更新日:2025年11月22日 次回更新予定日:2025年12月06日
- 2,680万円
-
- 借入ご希望金額
万円 - 借入期間
年 - 借入金利
% - 月々のお支払い金額
円
- 借入ご希望金額
※ 月々のお支払例は目安の試算となりますので、実際の金額とは異なる場合がございます。詳しくは店舗までお問合わせください。
- 岸和田市極楽寺町1丁目
-
JR阪和線『東岸和田』 徒歩20分 (約1600m)
JR阪和線『東貝塚』 徒歩19分 (約1520m)
JR阪和線『下松』 徒歩41分 (約3280m)
岸和田市極楽寺町1丁目一戸建て | 物件情報
◆◇ 全居室収納◇◆ゆったり3SLDK◆
◇◆全居室収納◆◇小学校徒歩10分圏内◇
物件の設備
- 電気
- 公営水道
- 公共下水
- 都市ガス
物件の特徴
- 2階建
物件詳細情報
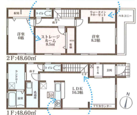
| 価格 | 2,680万円 | 間取り | 3LDK+S |
|---|---|---|---|
| 物件種別 | 新築一戸建て | ||
| 所在地 | 大阪府岸和田市極楽寺町1丁目 1号棟 | ||
| アクセス |
|
||
| 建物面積 | 106.82㎡ | 駐車場 | あり 普通:2台 |
| 築年月 | 2026年(令和8年)02月予定 | 建築確認 | 第KS125-0420-55199号 |
| 建物構造 | 木造 2階建 | 工法 | |
| 主要採光 | バルコニー | ||
| 保証・評価 | |||
| 土地面積 | 134.74㎡(40.75坪) | 接道 | 北西側(公道)幅 約3.6m |
| 私道 | セットバック | ||
| 地目 | 宅地 | 地勢 | 平坦 |
| 権利 | 所有権 |
||
| 都市計画 | 市街化区域 |
用途地域 | 1種住居 |
| 建ぺい/容積率 | 60% / 200% | 土地国土法 | |
| 許可番号 | 建築基準法 | ||
| 法令制限 | |||
| 小学区 | 太田小学校 徒歩9分 (約700m) | 中学区 | 土生中学校 徒歩23分 (約1800m) |
| 現況 | 未着工 | 引渡 | 期日指定:2026年02月上旬以降 |
| その他費用 | |||
| 周辺環境 | 岸和田市立太田小学校 徒歩12分 (約890m) 岸和田市立土生中学校 徒歩22分 (約1710m) 流木町高田ちびっこ広場 徒歩9分 (約680m) 坂本内科小児科医院 徒歩10分 (約750m) みらい薬局 畑町店 徒歩11分 (約810m) ウエルシア貝塚半田店 徒歩14分 (約1060m) ジョイフル貝塚半田店 徒歩14分 (約1100m) 東岸和田薬局 徒歩12分 (約930m) JAいずみの土生郷支店街かどデイあさひ 徒歩13分 (約980m) 小南記念病院 徒歩15分 (約1200m) |
||
| 備考 | ※網戸・照明・カーテン・カーテンレールはオプション有料となります。 ※添付図面は設計図書の為、軽微な変更がありますので現況優先とします。 ※全棟が長期優良住宅対象物件です。 ※駐車スペース2台有(車種による) |
||
| 物件番号 | 4428925 | 取引態様 | 媒介 |
取扱店舗情報
ハウスドゥ 岸和田下松駅前 株式会社サンライト住まいる 店舗詳細ページへ
| 電話番号 | 072-468-6336 |
|---|---|
| 所在地 | 〒596-0823 大阪府岸和田市下松町1丁目15-3 |
| 営業時間 | 10:00~19:00 |
| 定休日 | 年末年始 |
| 宅建免許番号 | 大阪府知事(1)第63102号 |
| アクセス | 店舗への地図はこちら |

来店ご予約
大阪府岸和田市で価格が似ている物件はこちら
- 大阪府
マイページ物件数 - 15,463件
最近見た物件
-
-

-
- 中古一戸建て
- 698万円
-
桐生市相生町2丁目
-
JR両毛線岩宿
-
-
-

-
- 新築一戸建て
- 2,898万円
-
北九州市小倉南区上吉田1丁目
-
JR日豊本線下曽根
-
-
-

-
- 中古一戸建て
- 3,690万円
-
豊川市西豊町1丁目
-
JR飯田線豊川
-
大阪府新築一戸建て新着物件
- お近くの店舗を探す
-
おすすめ物件
-
-

-
- 新築一戸建て
- 4,680万円
-
茨木市島2丁目
-
阪急電鉄京都線南茨木
-
-
-

-
- 新築一戸建て
- 4,580万円
-
大阪市淀川区新北野3丁目
-
JR東海道線塚本
-
-
-

-
- 新築一戸建て
- 4,680万円
-
茨木市島2丁目
-
阪急電鉄京都線南茨木
-
-
-

-
- 新築一戸建て
- 5,180万円
-
高槻市北昭和台町
-
阪急電鉄京都線総持寺
-
-
-

-
- 新築一戸建て
- 3,980万円
-
茨木市橋の内3丁目
-
阪急電鉄京都線総持寺
-
-
-

-
- 新築一戸建て
- 4,280万円
-
堺市北区金岡町
-
大阪市御堂筋線新金岡
-
-
-

-
- 新築一戸建て
- 3,480万円
-
茨木市橋の内1丁目
-
阪急電鉄京都線総持寺
-
-
-

-
- 新築一戸建て
- 4,680万円
-
茨木市島2丁目
-
阪急電鉄京都線南茨木
-
-
-

-
- 新築一戸建て
- 5,080万円
-
大阪市住之江区粉浜西3丁目
-
南海電鉄本線住吉大社
-
-
-

-
- 新築一戸建て
- 4,780万円
-
堺市北区新金岡町5丁
-
大阪市御堂筋線新金岡
-



























担当エージェント:片山 祐成
住宅ローンの審査手続きは当社にお任せください!
各種住宅ローン商品には様々な特徴があります。
住宅ローンの種類や特徴のご説明と合わせて、ひとりひとりのお客様に合った商品をご提案いたします。