狛江市西野川2丁目 新築戸建 2号棟
NEW 10.03掲載情報更新日:2025年10月24日 次回更新予定日:2025年11月07日
- 7,580万円
-
- 借入ご希望金額
万円 - 借入期間
年 - 借入金利
% - 月々のお支払い金額
円
- 借入ご希望金額
※ 月々のお支払例は目安の試算となりますので、実際の金額とは異なる場合がございます。詳しくは店舗までお問合わせください。
- 狛江市西野川2丁目
-
京王線『柴崎』 徒歩17分 (約1360m)
京王線『つつじヶ丘』 徒歩20分 (約1600m)
狛江市西野川2丁目 新築戸建 2号棟一戸建て | 物件情報
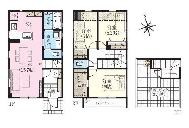
■整然とした街並み・閑静な住宅街 西野川2丁目 ♪ ■3LDK+WIC+カースペース2台分
《Access》
・京王線「柴崎駅」歩17分
・同線「つつじヶ丘駅」歩20分
《Point》
・西野川2丁目 緑豊かで閑静な住宅街
・敷地広々107.44㎡(32坪超え)
・カースペース2台分(車種による)
・宅配ボックス設置◎
・エアコン設置が必要のない全館空調(Z空調)搭載住宅!
・機能性を重視した間取り設計
・ゆとり広さのある約15.7帖のLDK空間
・各居室収納+WICで豊富な収納が可能
・南向き&全居室2面採光 日当たり・通風良好
・BBQなどが楽しめる屋上庭園あり♪
物件の設備
- 公営水道
- 公共下水
- 都市ガス
- 給湯
- コンロ三口
- グリル
- システムキッチン
- バス
- オートバス
- 浴室に窓
- トイレ
- トイレ2箇所
- 温水洗浄便座
- 室内洗濯機置場
- 洗面所独立
- リビング階段
- 省エネ給湯器
- モニタ付インターホン
- 火災警報器/報知機
- グルニエ
- LDK15畳以上
- 2面採光
- 全室2面採光
- フローリング
- 全室フローリング
- シャッター雨戸
- 24時間換気システム
- クローゼット
- クローゼット2箇所
- ウォークインクローゼット
- 床下収納
- 全居室収納
- 屋根裏収納
- シューズボックス
- 庭
- 宅配BOX
- 屋上
物件の特徴
- 南向
- 地盤調査済
- 耐震構造
- 前道6m以上
- 南側道路面す
- 緑豊かな住宅地
- 閑静な住宅街
- 周辺交通量少なめ
- 眺望良好
- 通風良好
- 陽当り良好
- 2階建
- 角地
- 平坦地
- フラット35Sに対応
物件詳細情報
| 価格 | 7,580万円 | 間取り | 3LDK |
|---|---|---|---|
| 物件種別 | 新築一戸建て | ||
| 所在地 | 東京都狛江市西野川2丁目 2号棟 | ||
| アクセス |
|
||
| 建物面積 | 実86.12㎡ | 駐車場 | あり 普通:2台 |
| 築年月 | 2025年(令和7年)10月築 | 建築確認 | 第SJK-KX256001260号 |
| 建物構造 | 木造 2階建 | 工法 | |
| 主要採光 | 南向 | バルコニー | |
| 保証・評価 | |||
| 土地面積 | 実107.44㎡(32.50坪) | 接道 | 南側(公道)幅 約6.5m 東側(公道)幅 約4.0m |
| 私道 | セットバック | ||
| 地目 | 宅地 | 地勢 | |
| 権利 | 所有権 |
||
| 都市計画 | 市街化区域 |
用途地域 | 1種低層 |
| 建ぺい/容積率 | 40% / 80% | 土地国土法 | |
| 許可番号 | 建築基準法 | ||
| 法令制限 | |||
| 小学区 | 緑野小学校 徒歩13分 (約1000m) | 中学区 | 狛江第四中学校 徒歩11分 (約880m) |
| 現況 | 建築中 | 引渡 | 期日指定:2025年10月末以降 |
| その他費用 | |||
| 周辺環境 | 狛江保育園 徒歩3分 (約190m) 狛江西野川郵便局 徒歩4分 (約260m) いなげや狛江東野川店 徒歩8分 (約600m) 前原公園 徒歩8分 (約610m) スギドラッグ狛江店 徒歩8分 (約620m) 慈恵医大第三病院 徒歩11分 (約860m) 狛江市立第四中学校 徒歩11分 (約880m) ユニディ狛江店 徒歩13分 (約980m) 狛江市立狛江緑野小学校 徒歩13分 (約1000m) |
||
| 備考 | |||
| 物件番号 | 4434048 | 取引態様 | 媒介 |
取扱店舗情報
ハウスドゥ 千歳船橋 R2-CONNECT株式会社 店舗詳細ページへ
| 電話番号 | 03-5799-7621 |
|---|---|
| 所在地 | 〒156-0054 東京都世田谷区桜丘5丁目47-19 |
| 営業時間 | 9:00~19:00 |
| 定休日 | 火曜日、水曜日 |
| 宅建免許番号 | 東京都知事(1)第107079号 |
| アクセス | 店舗への地図はこちら |

来店ご予約
東京都狛江市で価格が似ている物件はこちら
- 東京都
マイページ物件数 - 5,474件
最近見た物件
-
-

-
- 新築一戸建て
- 3,480万円
-
京都市右京区太秦蜂岡町
-
JR山陰本線太秦
-
-
-

-
- 新築一戸建て
- 4,890万円
-
東大和市向原3丁目
-
西武拝島線東大和市
-
東京都新築一戸建て新着物件
- お近くの店舗を探す
-
おすすめ物件
-
-

-
- 新築一戸建て
- 6,780万円
-
三鷹市中原2丁目
-
京王線つつじヶ丘
-
-
-

-
- 新築一戸建て
- 6,590万円
-
三鷹市中原4丁目
-
京王線つつじヶ丘
-
-
-

-
- 新築一戸建て
- 2,880万円
-
八王子市大楽寺町
-
JR中央本線西八王子
-
-
-

-
- 新築一戸建て
- 1億4,990万円
-
世田谷区上馬5丁目
-
東急田園都市線駒沢大学
-
-
-

-
- 新築一戸建て
- 4,999万円
-
葛飾区西水元6丁目
-
JR千代田・常磐緩行線亀有
-
-
-

-
- 新築一戸建て
- 6,190万円
-
調布市深大寺北町1丁目
-
京王相模原線調布
-
-
-

-
- 新築一戸建て
- 2,880万円
-
八王子市下恩方町
-
JR中央本線高尾
-
-
-

-
- 新築一戸建て
- 6,590万円
-
狛江市東野川2丁目
-
小田急小田原線喜多見
-
-
-

-
- 新築一戸建て
- 7,190万円
-
狛江市東野川2丁目
-
小田急小田原線喜多見
-
-
-

-
- 新築一戸建て
- 7,580万円
-
大田区中央6丁目
-
東急池上線池上
-







即対応いたします!
物件、資金計画、周辺環境もご案内させて頂きます♪
資料請求、ご見学お気軽にお問合せください。