郡山市富久山町久保田字下河原の新築戸建
掲載情報更新日:2025年11月28日 次回更新予定日:2025年12月12日
- 3,430万円
-
- 借入ご希望金額
万円 - 借入期間
年 - 借入金利
% - 月々のお支払い金額
円
- 借入ご希望金額
※ 月々のお支払例は目安の試算となりますので、実際の金額とは異なる場合がございます。詳しくは店舗までお問合わせください。
- 郡山市富久山町久保田字下河原
-
JR東北本線『郡山』 バス乗車12分 太郎殿 停 徒歩6分 (約480m)
郡山市富久山町久保田字下河原一戸建て | 物件情報
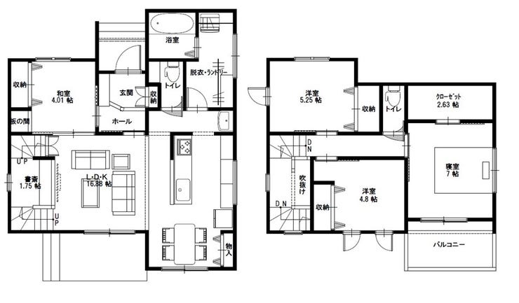
\スキップフロア・和室もあります♪/ 太陽光発電◇展示家具一式プレゼント!
□リビング階段で自然と家族が集まるリビングに♪
□スキップフロアを書斎として使える♪
□ただいま~!から真っ直ぐ手洗いへ行ける間取♪
お子様への習慣づけもラクラク♪
□共働きにも嬉しい浴室暖房乾燥機完備
□ワンランク上のコンセプト住宅、こだわりが詰まったお家
□コンビニやドラックストアへ徒歩圏内♪
□国道288号線、東部幹線へのアクセス良好
ぜひ、実際に内覧してみませんか?
「お家探し」「ご売却」は全国700店舗展開中の
地域密着型不動産ハウスドゥ郡山菜根店におまかせ下さい♪
物件の設備
- オール電化
- 公営水道
- 公共下水
- 側溝
- プロパンガス
- 個別プロパン
- 食器洗浄乾燥機
- 食品庫
- IHクッキングヒータ
- コンロ三口
- カウンターキッチン
- システムキッチン
- バス1坪以上
- 追焚機能
- 浴室乾燥機
- 浴室に窓
- トイレ2箇所
- 温水洗浄便座
- 室内洗濯機置場
- 洗髪洗面化粧台
- エアコン4基以上
- 照明器具
- 家具付
- リビング階段
- 太陽光発電システム
- 非接触型ICカードキー
- モニタ付インターホン
- LDK15畳以上
- 和室
- 2面採光
- 吹抜
- 24時間換気システム
- 網戸
- ウォークインクローゼット
- 全居室収納
- シューズインクローク
物件の特徴
- 24工法
- 地盤調査済
- 始発駅
- 2沿線利用可
- 前道6m以上
- 閑静な住宅街
- 2階建
- 整形地
- 大型タウン内
- 省エネルギー対策
物件詳細情報
| 価格 | 3,430万円 | 間取り | 4LDK |
|---|---|---|---|
| 物件種別 | 新築一戸建て | ||
| 所在地 | 福島県郡山市富久山町久保田字下河原 NO.3 | ||
| アクセス |
|
||
| 建物面積 | 107.97㎡ | 駐車場 | あり 普通:3台 |
| 築年月 | 2025年(令和7年)11月予定 | 建築確認 | R07確申建築BHC中支0143号 |
| 建物構造 | 木造 枠組壁工法(2×4) 2階建 | 工法 | |
| 主要採光 | 南向 | バルコニー | |
| 保証・評価 | |||
| 分譲情報 | 【販売戸数】:2戸 【価格】:3,430万円 ~3,567万円 【最多価格】:3,400万円 ~3,500万円(1戸) 【土地面積】:160.54㎡ ~160.63㎡ |
||
| 土地面積 | 160.54㎡(48.56坪) | 接道 | 北側(公道)幅 約6.0m |
| 私道 | セットバック | ||
| 地目 | 宅地 | 地勢 | |
| 権利 | 所有権 |
||
| 都市計画 | 市街化区域 |
用途地域 | 工業 |
| 建ぺい/容積率 | 60% / 200% | 土地国土法 | |
| 許可番号 | 建築基準法 | ||
| 法令制限 | 法22条区域 | ||
| 小学区 | 行健小学校 徒歩24分 (約1900m) | 中学区 | 行健中学校 徒歩37分 (約2900m) |
| 現況 | 建築中 | 引渡 | 期日指定:2025年11月以降 |
| その他費用 | |||
| 備考 | |||
| 物件番号 | 4435672 | 取引態様 | 媒介 |
取扱店舗情報
ハウスドゥ 郡山菜根 株式会社Good Agency 店舗詳細ページへ
| 電話番号 | 024-954-3122 |
|---|---|
| 所在地 | 〒963-8862 福島県郡山市菜根1丁目11-7 |
| 営業時間 | 10:00~18:00 |
| 定休日 | 火曜日、水曜日 |
| 宅建免許番号 | 福島県知事(2)第3409号 |
| アクセス | 店舗への地図はこちら |

来店ご予約
福島県郡山市で価格が似ている物件はこちら
- 福島県
マイページ物件数 - 379件
福島県新築一戸建て新着物件
-
-

-
- 新築一戸建て
- 3,290万円
-
福島市南沢又字下番匠田
-
福島交通飯坂線上松川駅
-
-
-

-
- 新築一戸建て
- 2,990万円
-
福島市南沢又字下番匠田
-
福島交通飯坂線上松川駅
-
-
-

-
- 新築一戸建て
- 3,180万円
-
郡山市喜久田町字入ノ内
-
JR東北本線郡山駅
-
-
-

-
- 新築一戸建て
- 3,490万円
-
郡山市富田町字坦ノ腰
-
JR東北本線郡山駅
-
-
-

-
- 新築一戸建て
- 3,198万円
-
郡山市小原田2丁目
-
JR東北本線郡山駅
-
-
-

-
- 新築一戸建て
- 3,298万円
-
郡山市小原田2丁目
-
JR東北本線郡山駅
-
-
-

-
- 新築一戸建て
- 3,330万円
-
福島市飯坂町平野字堂ノ前
-
福島交通飯坂線平野駅
-
- お近くの店舗を探す
-



































