国分寺市東戸倉1丁目の新築戸建
掲載情報更新日:2025年11月24日 次回更新予定日:2025年12月08日
- 6,490万円
-
- 借入ご希望金額
万円 - 借入期間
年 - 借入金利
% - 月々のお支払い金額
円
- 借入ご希望金額
※ 月々のお支払例は目安の試算となりますので、実際の金額とは異なる場合がございます。詳しくは店舗までお問合わせください。
- 国分寺市東戸倉1丁目
-
西武国分寺線『恋ヶ窪』 徒歩8分 (約640m)
国分寺市東戸倉1丁目一戸建て | 物件情報
ひときわ洗練された機能的で快適な私的空間!
18帖以上の開放感あるLDK!
物件の設備
- 電気
- 上水道
- 下水道
- 公共下水
- 都市ガス
- コンロ三口
- カウンターキッチン
- システムキッチン
- バス
- ユニットバス
- トイレ
- トイレ2箇所
- 太陽光発電システム
- 防犯カメラ
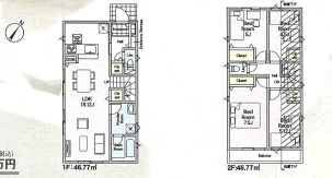
- LDK18畳以上
- フローリング
- クローゼット
- バルコニー
物件の特徴
- 南向
- 前道6m以上
- 2階建
- フラット35Sに対応
物件詳細情報
| 価格 | 6,490万円 | 間取り | 4LDK |
|---|---|---|---|
| 物件種別 | 新築一戸建て | ||
| 所在地 | 東京都国分寺市東戸倉1丁目 | ||
| アクセス |
|
||
| 建物面積 | 93.54㎡ | 駐車場 | あり |
| 築年月 | 2026年(令和8年)01月予定 | 建築確認 | 第R07SHC115704号 |
| 建物構造 | 木造 2階建 | 工法 | |
| 主要採光 | バルコニー | ||
| 保証・評価 | |||
| 土地面積 | 118.99㎡(35.99坪) | 接道 | 北西側幅 約6.0m |
| 私道 | セットバック | ||
| 地目 | 宅地 | 地勢 | |
| 権利 | 所有権 |
||
| 都市計画 | 市街化区域 |
用途地域 | 1種低層 |
| 建ぺい/容積率 | 40% / 80% | 土地国土法 | |
| 許可番号 | 建築基準法 | ||
| 法令制限 | 高度地区・宅地造成工事規制区域・法22条区域 | ||
| 小学区 | 第六小学校 徒歩19分 (約1500m) | 中学区 | 第一中学校 徒歩6分 (約450m) |
| 現況 | 建築中 | 引渡 | 期日指定:2026年01月 |
| その他費用 | |||
| 備考 | ※図面と現況が異なる場合は、現況を優先させて頂きます。 | ||
| 物件番号 | 4439963 | 取引態様 | 媒介 |
取扱店舗情報
ハウスドゥ 国分寺本町4丁目 株式会社エンジョイパパ 店舗詳細ページへ
| 電話番号 | 042-313-9555 |
|---|---|
| 所在地 | 〒185-0012 東京都国分寺市本町4丁目3番16号サンクレストビル101 |
| 営業時間 | 10:00~14:00 |
| 定休日 | 水曜日、土曜日、日曜日 |
| 宅建免許番号 | 東京都知事(1)第111593号 |
| アクセス | 店舗への地図はこちら |

来店ご予約
東京都国分寺市で価格が似ている物件はこちら
- 東京都
マイページ物件数 - 5,141件
最近見た物件
-
-

-
- 新築一戸建て
- 4,590万円
-
松戸市八ケ崎1丁目
-
JR千代田・常磐緩行線新松戸
-
-
-

-
- 新築一戸建て
- 4,788万円
-
福岡市西区小戸3丁目
-
福岡市空港線姪浜
-
-
-

-
- 中古一戸建て
- 3,000万円
-
防府市大字田島
-
JR山陽本線防府
-
東京都新築一戸建て新着物件
-
-

-
- 新築一戸建て
- 5,899万円
-
府中市是政1丁目
-
京王線東府中駅
-
-
-

-
- 新築一戸建て
- 5,090万円
-
府中市日新町5丁目
-
JR南武線西府駅
-
-
-

-
- 新築一戸建て
- 5,390万円
-
府中市日新町5丁目
-
JR南武線西府駅
-
-
-

-
- 新築一戸建て
- 5,290万円
-
府中市日新町5丁目
-
JR南武線西府駅
-
-
-

-
- 新築一戸建て
- 5,380万円
-
西東京市住吉町1丁目
-
西武池袋・豊島線ひばりケ丘駅
-
-
-

-
- 新築一戸建て
- 5,280万円
-
西東京市住吉町1丁目
-
西武池袋・豊島線ひばりケ丘駅
-
-
-

-
- 新築一戸建て
- 5,480万円
-
西東京市住吉町1丁目
-
西武池袋・豊島線ひばりケ丘駅
-
- お近くの店舗を探す
-
おすすめ物件
-
-

-
- 新築一戸建て
- 2,580万円
-
八王子市川口町
-
JR中央本線八王子
-
-
-

-
- 新築一戸建て
- 9,980万円
-
世田谷区砧1丁目
-
小田急小田原線祖師ヶ谷大蔵
-
-
-

-
- 新築一戸建て
- 5,090万円
-
調布市深大寺南町5丁目
-
京王線つつじヶ丘
-
-
-

-
- 新築一戸建て
- 2,380万円
-
八王子市川口町
-
JR中央本線八王子
-
-
-

-
- 新築一戸建て
- 8,999万円
-
練馬区東大泉7丁目
-
西武池袋・豊島線大泉学園
-
-
-

-
- 新築一戸建て
- 2,780万円
-
八王子市川口町
-
JR中央本線八王子
-
-
-

-
- 新築一戸建て
- 7,880万円
-
横浜市青葉区たちばな台2丁目
-
東急田園都市線青葉台
-
-
-

-
- 新築一戸建て
- 8,199万円
-
江戸川区南葛西5丁目
-
JR京葉線葛西臨海公園
-
-
-

-
- 新築一戸建て
- 2,780万円
-
八王子市下恩方町
-
JR中央本線高尾
-
-
-

-
- 新築一戸建て
- 2,850万円
-
八王子市諏訪町
-
JR中央本線西八王子
-




担当エージェント:草野 そら
お気軽にお問合せください。