国分寺市東戸倉1丁目の新築戸建
NEW 10.07掲載情報更新日:2025年10月06日 次回更新予定日:2025年10月20日
- 6,390万円
-
- 借入ご希望金額
万円 - 借入期間
年 - 借入金利
% - 月々のお支払い金額
円
- 借入ご希望金額
※ 月々のお支払例は目安の試算となりますので、実際の金額とは異なる場合がございます。詳しくは店舗までお問合わせください。
- 国分寺市東戸倉1丁目
-
西武国分寺線『恋ヶ窪』 徒歩8分 (約640m)
国分寺市東戸倉1丁目一戸建て | 物件情報
ひときわ洗練された機能的で快適な私的空間!
18帖以上の開放感あるLDK!
物件の設備
- 電気
- 上水道
- コンロ三口
- システムキッチン
- ユニットバス
- 太陽光発電システム
- 防犯カメラ
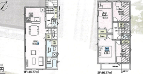
- LDK18畳以上
- フローリング
- クローゼット
- バルコニー
物件の特徴
- 南向
- 2階建
- フラット35Sに対応
物件詳細情報
価格 | 6,390万円 | 間取り | 4LDK |
---|---|---|---|
物件種別 | 新築一戸建て | ||
所在地 | 東京都国分寺市東戸倉1丁目 | ||
アクセス |
|
||
建物面積 | 93.54㎡ | 駐車場 | なし |
築年月 | 2026年(令和8年)01月予定 | 建築確認 | 第R07SHC115703号 |
建物構造 | 木造 2階建 | 工法 | |
主要採光 | バルコニー | ||
保証・評価 | |||
土地面積 | 118.98㎡(35.99坪) | 接道 | |
私道 | セットバック | ||
地目 | 宅地 | 地勢 | |
権利 | 所有権 |
||
都市計画 | 市街化区域 |
用途地域 | 1種低層 |
建ぺい/容積率 | 40% / 80% | 土地国土法 | |
許可番号 | 建築基準法 | ||
法令制限 | 高度地区・宅地造成工事規制区域・法22条区域 | ||
小学区 | 第六小学校 徒歩19分 (約1500m) | 中学区 | 第一中学校 徒歩6分 (約450m) |
現況 | 建築中 | 引渡 | 期日指定:2026年01月 |
その他費用 | |||
備考 | ※図面と現況が異なる場合は、現況を優先させて頂きます。 | ||
物件番号 | 4439898 | 取引態様 | 媒介 |
取扱店舗情報
ハウスドゥ 国分寺本町4丁目 株式会社エンジョイパパ 店舗詳細ページへ
電話番号 | 042-313-9555 |
---|---|
所在地 | 〒185-0012 東京都国分寺市本町4丁目3番16号サンクレストビル101 |
営業時間 | 10:00~14:00 |
定休日 | 水曜日、土曜日、日曜日 |
宅建免許番号 | 東京都知事(1)第111593号 |
アクセス | 店舗への地図はこちら |
来店ご予約
東京都国分寺市で価格が似ている物件はこちら
- 東京都
マイページ物件数 - 5,818件
最近見た物件
-
-
-
- 新築一戸建て
- 4,780万円
-
八王子市大和田町3丁目
-
京王線京王八王子
-
東京都新築一戸建て新着物件
-
-
-
- 新築一戸建て
- 3,880万円
-
昭島市郷地町2丁目
-
JR青梅線東中神駅
-
-
-
-
- 新築一戸建て
- 6,490万円
-
国分寺市東戸倉1丁目
-
西武国分寺線恋ヶ窪駅
-
-
-
-
- 新築一戸建て
- 6,390万円
-
国分寺市東戸倉1丁目
-
西武国分寺線恋ヶ窪駅
-
-
-
-
- 新築一戸建て
- 5,180万円
-
調布市深大寺東町6丁目
-
京王線調布駅
-
-
-
-
- 新築一戸建て
- 4,980万円
-
調布市深大寺東町6丁目
-
京王線調布駅
-
-
-
-
- 新築一戸建て
- 4,730万円
-
八王子市上柚木
-
京王相模原線南大沢駅
-
-
-
-
- 新築一戸建て
- 5,280万円
-
八王子市上柚木
-
京王相模原線南大沢駅
-
- お近くの店舗を探す
-
おすすめ物件
-
-
-
- 新築一戸建て
- 8,480万円
-
調布市国領町1丁目
-
京王線国領
-
-
-
-
- 新築一戸建て
- 7,880万円
-
横浜市青葉区たちばな台2丁目
-
東急田園都市線青葉台
-
-
-
-
- 新築一戸建て
- 2,680万円
-
八王子市川口町
-
JR中央本線八王子
-
-
-
-
- 新築一戸建て
- 4,999万円
-
葛飾区西水元6丁目
-
JR千代田・常磐緩行線亀有
-
-
-
-
- 新築一戸建て
- 4,780万円
-
調布市上石原3丁目
-
京王線西調布
-
-
-
-
- 新築一戸建て
- 7,980万円
-
世田谷区北烏山4丁目
-
京王線千歳烏山
-
-
-
-
- 新築一戸建て
- 8,780万円
-
調布市国領町1丁目
-
京王線国領
-
-
-
-
- 新築一戸建て
- 1億4,990万円
-
世田谷区上馬5丁目
-
東急田園都市線駒沢大学
-
-
-
-
- 新築一戸建て
- 8,199万円
-
江戸川区南葛西5丁目
-
JR京葉線葛西臨海公園
-
-
-
-
- 新築一戸建て
- 4,980万円
-
調布市深大寺東町6丁目
-
京王線調布
-
担当エージェント:草野 そら
お気軽にお問合せください。