国分寺市東戸倉1丁目 全3棟1号棟 新築分譲住宅
掲載情報更新日:2025年12月20日 次回更新予定日:2026年01月03日
- 6,390万円
-
- 借入ご希望金額
万円 - 借入期間
年 - 借入金利
% - 月々のお支払い金額
円
- 借入ご希望金額
※ 月々のお支払例は目安の試算となりますので、実際の金額とは異なる場合がございます。詳しくは店舗までお問合わせください。
- 国分寺市東戸倉1丁目
-
西武国分寺線『恋ヶ窪』 徒歩8分 (約640m)
国分寺市東戸倉1丁目 全3棟1号棟 新築分譲住宅一戸建て | 物件情報
【新築仲介手数料無料のハウスドゥ立川北】国分寺市東戸倉全 3棟 1号棟
こちらの物件は【ハウスドゥ立川北限定のゼロキャンペーン対象物件】です。ご購入の際の仲介手数料が【無料】の0円です。中古住宅ご購入のお客様には【Wキャンペーン対象物件】でギフト券をプレゼント!大変お得なキャンペーンなのでぜひご利用ください。さらにローンシュミレーションからライフプランの設計も【無料】で作成いたします。賢く買うならハウスドゥ 立川北で検索!
物件の設備
- 電気
- 公営水道
- 公共下水
- 都市ガス
- 浄水器
- コンロ三口
- カウンターキッチン
- システムキッチン
- ユニットバス
- バス1坪以上
- 追焚機能
- 浴室暖房
- 浴室乾燥機
- 浴室に窓
- トイレ2箇所
- 温水洗浄便座
- 室内洗濯機置場
- 洗髪洗面化粧台
- 洗面所独立
- ダウンライト
- リビング階段
- 太陽光発電システム
- カードキー
- モニタ付インターホン
- 防犯カメラ
- 火災警報器/報知機
- LDK18畳以上
- 2面採光
- 全居室複層ガラス
- 全室フローリング
- 床下収納
- 全居室収納
- シューズボックス
物件の特徴
- 前道6m以上
- スーパーが近い
- 閑静な住宅街
- 市街地が近い
- 都市近郊
- 通風良好
- 2階建
- 外壁サイディング
- バリアフリー
- 建設住宅性能評価付
- 設計住宅性能評価付
- 建築確認完了検査済証
- 新築
- 増改築設計図書
物件詳細情報
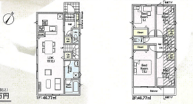
| 価格 | 6,390万円 | 間取り | 4LDK |
|---|---|---|---|
| 物件種別 | 新築一戸建て | ||
| 所在地 | 東京都国分寺市東戸倉1丁目6-6 1号棟 | ||
| アクセス |
|
||
| 建物面積 | 93.5㎡ | 駐車場 | あり 普通:1台 |
| 築年月 | 2026年(令和8年)01月築 | 建築確認 | 第R07SHC115703号 |
| 建物構造 | 木造 2階建 | 工法 | |
| 主要採光 | 南向 | バルコニー | |
| 保証・評価 | 設計住宅性能評価書・建設住宅性能評価書(新築時) |
||
| 分譲情報 | 【販売戸数】:2戸 |
||
| 土地面積 | 118.9㎡(35.96坪) | 接道 | 北西側(公道)幅 約6.0m 間口 約6.01m |
| 私道 | セットバック | ||
| 地目 | 宅地 | 地勢 | |
| 権利 | 所有権 |
||
| 都市計画 | 市街化区域 |
用途地域 | 1種低層 |
| 建ぺい/容積率 | 40% / 80% | 土地国土法 | |
| 許可番号 | 建築基準法 | ||
| 法令制限 | |||
| 小学区 | 第六小学校 徒歩19分 (約1500m) | 中学区 | 第一中学校 徒歩6分 (約450m) |
| 現況 | 完工済 | 引渡 | 期日指定:2026年01月 |
| その他費用 | |||
| 備考 | ☆西武国分寺線「恋ヶ窪」駅徒歩8分 サミットストア恋ヶ窪店・・・徒歩約8分/セブンイレブン国分寺東戸倉店・・・徒歩約1分/社会福祉法人浴光会国分寺病院・・・徒歩約13分/国分寺東恋ヶ窪四郵便局・・・徒歩約6分 |
||
| 物件番号 | 4445419 | 取引態様 | 媒介 |
取扱店舗情報
ハウスドゥ 立川北 株式会社シティリノベーション 店舗詳細ページへ
| 電話番号 | 042-537-9361 |
|---|---|
| 所在地 | 〒190-0004 東京都立川市柏町3-19-14 フレンテ1F |
| 営業時間 | 9:00~18:00 |
| 定休日 | GW、夏季、冬季 |
| 宅建免許番号 | 東京都知事(2)第100954号 |
| アクセス | 店舗への地図はこちら |

来店ご予約
東京都国分寺市で価格が似ている物件はこちら
- 東京都
マイページ物件数 - 5,138件
最近見た物件
-
-

-
- 新築一戸建て
- 2,498万円
-
熊本市西区城山半田2丁目
-
JR鹿児島本線西熊本
-
-
-

-
- 新築一戸建て
- 4,580万円
-
戸田市笹目2丁目
-
JR埼京線戸田
-
-
-

-
- 中古マンション
- 4,399万円
-
三郷市三郷2丁目
-
JR武蔵野線三郷
-
東京都新築一戸建て新着物件
-
-

-
- 新築一戸建て
- 6,490万円
-
国分寺市日吉町3丁目
-
西武国分寺線恋ヶ窪駅
-
-
-

-
- 新築一戸建て
- 7,499万円
-
国分寺市戸倉1丁目
-
西武国分寺線恋ヶ窪駅
-
-
-

-
- 新築一戸建て
- 7,299万円
-
立川市錦町2丁目
-
JR中央本線立川駅
-
-
-

-
- 新築一戸建て
- 7,299万円
-
立川市錦町2丁目
-
JR中央本線立川駅
-
-
-

-
- 新築一戸建て
- 6,399万円
-
国分寺市並木町1丁目
-
西武国分寺線恋ヶ窪駅
-
-
-

-
- 新築一戸建て
- 3,680万円
-
立川市一番町6丁目
-
西武拝島線西武立川駅
-
-
-

-
- 新築一戸建て
- 5,180万円
-
立川市富士見町4丁目
-
JR青梅線西立川駅
-
- お近くの店舗を探す
-
おすすめ物件
-
-

-
- 新築一戸建て
- 2,680万円
-
八王子市大楽寺町
-
JR中央本線西八王子
-
-
-

-
- 新築一戸建て
- 9,980万円
-
世田谷区砧1丁目
-
小田急小田原線祖師ヶ谷大蔵
-
-
-

-
- 新築一戸建て
- 2,690万円
-
八王子市丸山町
-
JR中央本線八王子
-
-
-

-
- 新築一戸建て
- 4,580万円
-
調布市上石原3丁目
-
京王線西調布
-
-
-

-
- 新築一戸建て
- 1億399万円
-
世田谷区北烏山3丁目
-
京王線千歳烏山
-
-
-

-
- 新築一戸建て
- 4,990万円
-
足立区東綾瀬3丁目
-
東京メトロ千代田線北綾瀬
-
-
-

-
- 新築一戸建て
- 6,790万円
-
狛江市東野川2丁目
-
小田急小田原線喜多見
-
-
-

-
- 新築一戸建て
- 4,180万円
-
足立区東伊興2丁目
-
日暮里舎人ライナー舎人
-
-
-

-
- 新築一戸建て
- 5,180万円
-
調布市富士見町2丁目
-
京王相模原線調布
-
-
-

-
- 新築一戸建て
- 6,590万円
-
狛江市東野川2丁目
-
小田急小田原線喜多見
-




担当エージェント:板谷 和友樹
ハウスドゥ立川北のホームページをご覧頂きありがとうございます。
お客様の多くがお家を買うのに不安があるかと思われます。ハウスドゥではお客様の不安や問題解決に一つ一つ誠心誠意お答えいたします。また、お家探しに役立つ多くの物件に関する情報を掲載しております。
ハウスドゥ立川北ではお客様お一人お一人にあったご提案を心がけており、ローンシュミレーションや人工知能を使ったライフプランの作成(要予約)を行いお客様の不安を解決いたします
■頭金は必要なのか?
■ローンは払っていけるのか?
■どのタイミングで住み替えや引越しが出来るのか?etc
お気軽に相談できるハウスドゥ立川北へお問い合わせ下さい
◆ご予約方法◆
直接お電話ください。【0120-537-936】
メールでのご予約も承ります。お気軽にご来店ください。
物件によっては事前に鍵の手配が必要な場合がありますので、お早目にご連絡をいただけるとご案内がスムーズです。
◆ご案内方法◆
①最寄駅や周辺地での待ち合わせ②ハウスドゥ立川北へのご来店などご相談ください。