小城市牛津町乙柳 9号棟
掲載情報更新日:2026年01月29日 次回更新予定日:2026年02月12日
- 2,798万円
-
- 借入ご希望金額
万円 - 借入期間
年 - 借入金利
% - 月々のお支払い金額
円
- 借入ご希望金額
※ 月々のお支払例は目安の試算となりますので、実際の金額とは異なる場合がございます。詳しくは店舗までお問合わせください。
- 小城市牛津町乙柳
-
JR長崎本線『牛津』 徒歩30分 (約2400m)
JR唐津線『小城』 徒歩34分 (約2720m)
JR長崎本線『佐賀』 バス乗車31分 佐賀駅バスセンター(唐津-佐賀線) 大寺 停 徒歩28分 (約2240m)
小城市牛津町乙柳 9号棟一戸建て | 物件情報
1/29価格変更あり/平屋/類似物件案内可/車5台/収納充実4LDK!ご来場特典有
お家探しを始めたばかりで、
「何をしたらいいかわからない」という方も、
ゆっくり時間をかけてご相談いただけます。ご安心ください!
■ご案内について
店内の混雑をさけ、安心してご相談いただくため、
ご来店前のご予約をお願いしております。
ご希望の場所へお迎え、弊社へのご来店等ご相談ください。
■ご見学のお問合せ・ご相談
◎物件が未完成の場合、類似物件のご見学も可能です。
◎当日の物件へのご案内も可能です。ご相談下さい。
■住宅ローンについて
店頭で住宅ローン、資金計画のご相談、
住宅ローンのお申込みもお手伝いさせていただきます。
■ご売却について
売却のご相談・査定も無料で受付中です。
■キッズスペースもございます
お子様が退屈しないお遊びスペースがあります!
お菓子やジュースをお渡ししております。
是非ご家族でお越し下さい♪
なんでもお気軽にお申しつけくださいませ。
物件の設備
- 電気
- 公営水道
- 公共下水
- 側溝
- プロパンガス
- 個別プロパン
- 給湯
- 浄水器
- 食器乾燥機
- 食器洗浄乾燥機
- コンロ三口
- カウンターキッチン
- システムキッチン
- バス
- ユニットバス
- オートバス
- バス1坪以上
- 追焚機能
- 浴室暖房
- 浴室乾燥機
- 浴室に窓
- 温水洗浄便座
- 室内洗濯機置場
- 洗髪洗面化粧台
- 洗面所独立
- ダウンライト
- ディンプルキー
- モニタ付インターホン
- LDK18畳以上
- 複層ガラス
- フローリング
- 全室フローリング
- シャッター雨戸
- クローゼット
- ウォークインクローゼット
- 床下収納
- 全居室収納
- シューズボックス
- 庭
物件の特徴
- 前道6m以上
- 緑豊かな住宅地
- スーパーが近い
- 閑静な住宅街
- 市街地が近い
- 通風良好
- 陽当り良好
- 整形地
- フラット35
- S適合証明書
- フラット35Sに対応
物件詳細情報
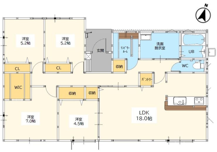
| 価格 | 2,798万円 | 間取り | 4LDK |
|---|---|---|---|
| 物件種別 | 新築一戸建て | ||
| 所在地 | 佐賀県小城市牛津町乙柳 | ||
| アクセス |
|
||
| 建物面積 | 公101.85㎡ | 駐車場 | あり 普通:3台 軽:2台 |
| 築年月 | 2026年(令和8年)01月予定 | 建築確認 | 第R07SHC117278号 |
| 建物構造 | 木造 1階建 | 工法 | |
| 主要採光 | 南向 | バルコニー | |
| 保証・評価 | フラット35S適合証明書 |
||
| 土地面積 | 公246.47㎡(74.55坪) | 接道 | 東側(公道)幅 約11.6m 北側(公道)幅 約6.0m |
| 私道 | セットバック | ||
| 地目 | 宅地 | 地勢 | |
| 権利 | 所有権 |
||
| 都市計画 | 非線引区域 |
用途地域 | 指定無 |
| 建ぺい/容積率 | 60% / 200% | 土地国土法 | |
| 許可番号 | 建築基準法 | ||
| 法令制限 | |||
| 小学区 | 牛津小学校 徒歩14分 (約1070m) | 中学区 | 牛津中学校 徒歩30分 (約2350m) |
| 現況 | 建築中 | 引渡 | 期日指定:2026年02月下旬以降 |
| その他費用 | |||
| 周辺環境 | ホームセンターグッデイ牛津店 徒歩13分 (約1040m) 牛津小学校 徒歩14分 (約1070m) 小城市役所 徒歩18分 (約1400m) 小城公民館 徒歩20分 (約1560m) ダイレックス三日月店 徒歩23分 (約1830m) 佐賀銀行 三日月出張所 徒歩22分 (約1730m) セブンイレブン三日月樋口店 徒歩30分 (約2360m) ファミリーマート積文館書店三日月店 徒歩23分 (約1800m) ジョイフル三日月店 徒歩24分 (約1920m) トライアル三日月店 徒歩30分 (約2350m) |
||
| 備考 | |||
| 物件番号 | 4445295 | 取引態様 | 媒介 |
取扱店舗情報
ハウスドゥ 佐賀兵庫北 株式会社栗原木材店 店舗詳細ページへ
| 電話番号 | 0952-20-0725 |
|---|---|
| 所在地 | 〒849-0919 佐賀県佐賀市兵庫北7丁目18-2 |
| 営業時間 | 9:30~18:30 |
| 定休日 | 火曜日、水曜日 |
| 宅建免許番号 | 国土交通大臣(1)第010320号 |
| アクセス | 店舗への地図はこちら |

来店ご予約
佐賀県小城市で価格が似ている物件はこちら
- 佐賀県
マイページ物件数 - 1,479件
最近見た物件
佐賀県新築一戸建て新着物件
-
-

-
- 新築一戸建て
- 3,399万円
-
佐賀市木原1丁目
-
枝吉
-
-
-

-
- 新築一戸建て
- 3,188万円
-
佐賀市神野西3丁目
-
バス停「電通通り」バス停「電通通り」
-
-
-

-
- 新築一戸建て
- 3,288万円
-
佐賀市神野西3丁目
-
バス停「電通通り」バス停「電通通り」
-
-
-

-
- 新築一戸建て
- 3,599万円
-
佐賀市大和町大字久池井
-
金立
-
-
-

-
- 新築一戸建て
- 3,088万円
-
佐賀市西田代1丁目
-
バス停「西田代」
-
-
-

-
- 新築一戸建て
- 3,299万円
-
神埼郡吉野ヶ里町豆田
-
JR長崎本線吉野ヶ里公園駅
-
-
-

-
- 新築一戸建て
- 3,599万円
-
神埼郡吉野ヶ里町豆田
-
JR長崎本線吉野ヶ里公園駅
-
- お近くの店舗を探す
-
おすすめ物件
-
-

-
- 新築一戸建て
- 3,680万円
-
佐賀市本庄町大字袋
-
バス停「八田橋」
-
-
-

-
- 新築一戸建て
- 3,198万円
-
鳥栖市宿町
-
JR鹿児島本線鳥栖
-
-
-

-
- 新築一戸建て
- 3,999万円
-
鳥栖市宿町
-
JR九州新幹線新鳥栖
-
-
-

-
- 新築一戸建て
- 2,898万円
-
鳥栖市曽根崎町
-
JR鹿児島本線鳥栖
-
-
-

-
- 新築一戸建て
- 2,798万円
-
鳥栖市田代外町
-
JR鹿児島本線田代
-
-
-

-
- 新築一戸建て
- 2,998万円
-
鳥栖市鎗田町
-
JR鹿児島本線田代
-
-
-

-
- 新築一戸建て
- 3,460万円
-
鳥栖市山浦町
-
JR九州新幹線新鳥栖
-
-
-

-
- 新築一戸建て
- 2,998万円
-
鳥栖市松原町
-
JR鹿児島本線田代
-
-
-

-
- 新築一戸建て
- 2,798万円
-
鳥栖市平田町
-
JR長崎本線肥前麓
-
-
-

-
- 新築一戸建て
- 2,998万円
-
鳥栖市曽根崎町
-
JR鹿児島本線鳥栖
-






























担当エージェント:福田 拓也
【ご来場特典/QUOカード2,000円分】
※アンケート記入&当店で住宅ローン審査を行って頂く方対象
【ご成約特典/体験型カタログギフト「EXETIME Part5」をプレゼント】
\5万7860円分の旅行・デイナー・最新家具・家電をお届け! /
人気温泉旅館や五つ星ホテルでの宿泊、
高級レストランのディナー、貸し切りクルーズなど
掲載商品は500点以上!
欲しいものが見つかりますよ(*^-^*)
詳細はお気軽に問い合わせください♪
■階段のないワンフロア設計で、毎日の生活がスムーズ!
◎ご家族みんなが快適に過ごせる平屋住宅です
■洗面脱衣室とは別にランドリールームを設け、洗濯動線を効率化
◎家事の時短に嬉しい設計です
■WICやパントリー完備で収納充実♪
■LDK18帖!広々としたゆとりのあるリビング
◎システムカウンターキッチンには家事を時短する食洗器を完備
■牛津小学校まで徒歩14分/牛津中学校まで徒歩30分
担当:福田(080-7651-9433)