東大阪市永和3丁目の新築戸建
掲載情報更新日:2026年02月07日 次回更新予定日:2026年02月21日
- 4,480万円
-
- 借入ご希望金額
万円 - 借入期間
年 - 借入金利
% - 月々のお支払い金額
円
- 借入ご希望金額
※ 月々のお支払例は目安の試算となりますので、実際の金額とは異なる場合がございます。詳しくは店舗までお問合わせください。
- 東大阪市永和3丁目
-
近鉄難波・奈良線『河内永和』 徒歩11分 (約830m)
JRおおさか東線『JR河内永和』 徒歩11分 (約860m)
近鉄難波・奈良線『河内小阪』 徒歩11分 (約830m)
東大阪市永和3丁目一戸建て | 物件情報
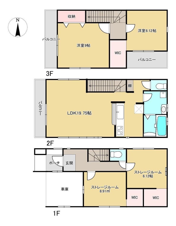
駅徒歩8分×19.7帖LDK!長期優良住宅&WIC3か所の高性能邸宅。小・スーパー徒歩4分で便利!
【河内永和駅徒歩8分】19.7帖の大空間LDKと充実の収納力が魅力!
安心の「長期優良住宅」認定物件が東大阪に誕生
利便性と住環境が調和する東大阪市。2沿線利用可能な「河内永和」駅より徒歩8分という好立地に、一建設の新築戸建てが登場しました。ゆとりある19.75帖のLDK 3階建ての特性を活かし、家族が集うLDKは19.7帖超の大空間を確保。人気のカウンターキッチンを採用し、家事をしながら家族との会話が弾みます。浄水器や浴室乾燥機など、日々の生活を支える設備も充実しています。
「収納」と「安心」のこだわり 間取りは2LDK+2S。3か所のウォークインクローゼット(WIC)や床下収納を備え、居住空間を常にスッキリと保てます。また、本物件は「長期優良住宅」認定に加え、住宅性能表示6項目で最高等級を取得。地震に強く、メンテナンス性にも優れた、永く安心してお住まいいただける住まいです。
周辺施設も充実の「徒歩圏内」 小学校まで徒歩4分、スーパーまで徒歩4分と、お子様の通学や毎日のお買い物もスムーズ。郵便局やコンビニも近く、共働き世帯にも嬉しい住環境が整っています。
物件の設備
- 浄水器
- システムキッチン
- 追焚機能
- 浴室乾燥機
- 洗髪洗面化粧台
- 照明器具
- ディンプルキー
- モニタ付インターホン
- 24時間換気システム
- 床下収納
- バルコニー
物件の特徴
- 3階建以上
物件詳細情報
| 価格 | 4,480万円 | 間取り | 2LDK+S |
|---|---|---|---|
| 物件種別 | 新築一戸建て | ||
| 所在地 | 大阪府東大阪市永和3丁目 01 | ||
| アクセス |
|
||
| 建物面積 | 120.61㎡ | 駐車場 | あり 普通:1台 |
| 築年月 | 2025年(令和7年)10月築 | 建築確認 | KS125-0420-51464号 |
| 建物構造 | 木造 3階建 | 工法 | |
| 主要採光 | 東向 | バルコニー | |
| 保証・評価 | |||
| 土地面積 | 70.15㎡(21.22坪) | 接道 | |
| 私道 | セットバック | ||
| 地目 | 宅地 | 地勢 | 平坦 |
| 権利 | 所有権 |
||
| 都市計画 | 市街化区域 |
用途地域 | 1種中高 |
| 建ぺい/容積率 | 60% / 200% | 土地国土法 | |
| 許可番号 | 建築基準法 | ||
| 法令制限 | |||
| 小学区 | 桜橋小学校 徒歩4分 (約260m) | 中学区 | 上小阪中学校 徒歩16分 (約1250m) |
| 現況 | 建築中 | 引渡 | 期日指定:2025年10月以降 |
| その他費用 | |||
| 周辺環境 | 桜橋小学校 徒歩4分 (約260m) 近鉄河内永和駅 徒歩11分 (約830m) 河内小阪駅 徒歩11分 (約830m) JR河内永和駅 徒歩11分 (約860m) 上小阪中学校 徒歩16分 (約1250m) |
||
| 備考 | |||
| 物件番号 | 4448627 | 取引態様 | 媒介 |
取扱店舗情報
ハウスドゥ 河内永和北 アーキエステート株式会社 店舗詳細ページへ
| 電話番号 | 06-6720-9010 |
|---|---|
| 所在地 | 〒577-0055 大阪府東大阪市長栄寺5-21 |
| 営業時間 | 10:00~18:00 |
| 定休日 | 火・水曜日、年末年始 |
| 宅建免許番号 | 大阪府知事(1)第66482号 |
| アクセス | 店舗への地図はこちら |

来店ご予約
大阪府東大阪市で価格が似ている物件はこちら
- 大阪府
マイページ物件数 - 17,122件
最近見た物件
大阪府新築一戸建て新着物件
-
-

-
- 新築一戸建て
- 2,850万円
-
摂津市鳥飼新町1丁目
-
大阪モノレール沢良宜駅
-
-
-

-
- 新築一戸建て
- 2,880万円
-
岸和田市門前町1丁目
-
JR阪和線東岸和田駅
-
-
-

-
- 新築一戸建て
- 2,980万円
-
岸和田市門前町1丁目
-
JR阪和線東岸和田駅
-
-
-

-
- 新築一戸建て
- 2,930万円
-
岸和田市門前町1丁目
-
JR阪和線東岸和田駅
-
-
-

-
- 新築一戸建て
- 2,880万円
-
岸和田市門前町1丁目
-
JR阪和線東岸和田駅
-
-
-

-
- 新築一戸建て
- 2,880万円
-
岸和田市門前町1丁目
-
JR阪和線東岸和田駅
-
-
-

-
- 新築一戸建て
- 3,680万円
-
高槻市下田部町2丁目
-
阪急電鉄京都線高槻市駅
-
- お近くの店舗を探す
-
おすすめ物件
-
-

-
- 新築一戸建て
- 3,850万円
-
泉大津市昭和町
-
南海電鉄本線泉大津
-
-
-

-
- 新築一戸建て
- 4,350万円
-
東大阪市新家2丁目
-
大阪市中央線長田
-
-
-

-
- 新築一戸建て
- 3,680万円
-
東大阪市水走2丁目
-
近鉄けいはんな線吉田
-
-
-

-
- 新築一戸建て
- 2,380万円
-
松原市天美北3丁目
-
近鉄南大阪線河内天美
-
-
-

-
- 新築一戸建て
- 3,899万円
-
高槻市川西町1丁目
-
JR東海道線高槻
-
-
-

-
- 新築一戸建て
- 4,480万円
-
茨木市島2丁目
-
阪急電鉄京都線南茨木
-
-
-

-
- 新築一戸建て
- 3,380万円
-
茨木市橋の内1丁目
-
阪急電鉄京都線総持寺
-
-
-

-
- 新築一戸建て
- 3,080万円
-
泉大津市下条町
-
南海電鉄本線泉大津
-
-
-

-
- 新築一戸建て
- 3,680万円
-
高槻市津之江町2丁目
-
JR東海道線摂津富田
-
-
-

-
- 新築一戸建て
- 6,800万円
-
箕面市稲5丁目
-
北大阪急行南北線箕面船場阪大前
-

























