嬉野市嬉野町大字下野甲 3号地
掲載情報更新日:2026年04月07日 次回更新予定日:2026年04月21日
- 3,198万円
-
- 借入ご希望金額
万円 - 借入期間
年 - 借入金利
% - 月々のお支払い金額
円
- 借入ご希望金額
※ 月々のお支払例は目安の試算となりますので、実際の金額とは異なる場合がございます。詳しくは店舗までお問合わせください。
- 嬉野市嬉野町大字下野甲
-
西九州新幹線『嬉野温泉』 徒歩19分 (約1520m)
西九州新幹線『武雄温泉』 バス乗車32分 武雄温泉駅(南口)嬉野線 嬉野市役所前 停 徒歩8分 (約640m)
JR長崎本線『肥前鹿島』 バス乗車33分 肥前鹿島駅前(嬉野線) 嬉野市役所前 停 徒歩9分 (約720m)
嬉野市嬉野町大字下野甲 3号地一戸建て | 物件情報
即日ご案内できます/吹き抜けリビング/収納充実4LDK/来場特典有ります♪
お家探しを始めたばかりで、
「何をしたらいいかわからない」という方も、
ゆっくり時間をかけてご相談いただけます。ご安心ください!
■ご案内について
店内の混雑をさけ、安心してご相談いただくため、
ご来店前のご予約をお願いしております。
ご希望の場所へお迎え、弊社へのご来店等ご相談ください。
■ご見学のお問合せ・ご相談
◎物件が未完成の場合、類似物件のご見学も可能です。
◎当日の物件へのご案内も可能です。ご相談下さい。
■住宅ローンについて
店頭で住宅ローン、資金計画のご相談、
住宅ローンのお申込みもお手伝いさせていただきます。
■ご売却について
売却のご相談・査定も無料で受付中です。
■キッズスペースもございます
お子様が退屈しないお遊びスペースがあります!
お菓子やジュースをお渡ししております。
是非ご家族でお越し下さい♪
なんでもお気軽にお申しつけくださいませ。
物件の設備
- 電気
- オール電化
- 公営水道
- 公共下水
- 側溝
- 給湯
- 浄水器
- 食器乾燥機
- 食器洗浄乾燥機
- IHクッキングヒータ
- コンロ三口
- グリル
- カウンターキッチン
- システムキッチン
- バス
- ユニットバス
- オートバス
- バス1坪以上
- 追焚機能
- 浴室に窓
- トイレ
- トイレ2箇所
- 温水洗浄便座
- 室内洗濯機置場
- 洗髪洗面化粧台
- エアコン
- 照明器具
- ダウンライト
- リビング階段
- 太陽光発電システム
- 省エネ給湯器
- ディンプルキー
- ダブルロックキー
- モニタ付インターホン
- LDK15畳以上
- 和室
- 吹抜
- 複層ガラス
- 24時間換気システム
- クローゼット
- ウォークインクローゼット
- 全居室収納
- シューズボックス
- シューズインクローク
- ワイドバルコニー
- 庭
- 宅配BOX
物件の特徴
- 南向
- 前道6m以上
- 緑豊かな住宅地
- 閑静な住宅街
- 市街地が近い
- 通風良好
- 陽当り良好
- 2階建
- 平坦地
- 整形地
- 建築確認完了検査済証
- 新築
- 増改築設計図書
- BELS/省エネ基準適合
- 設備保証付
- 即入居可
- フラット35Sに対応
物件詳細情報
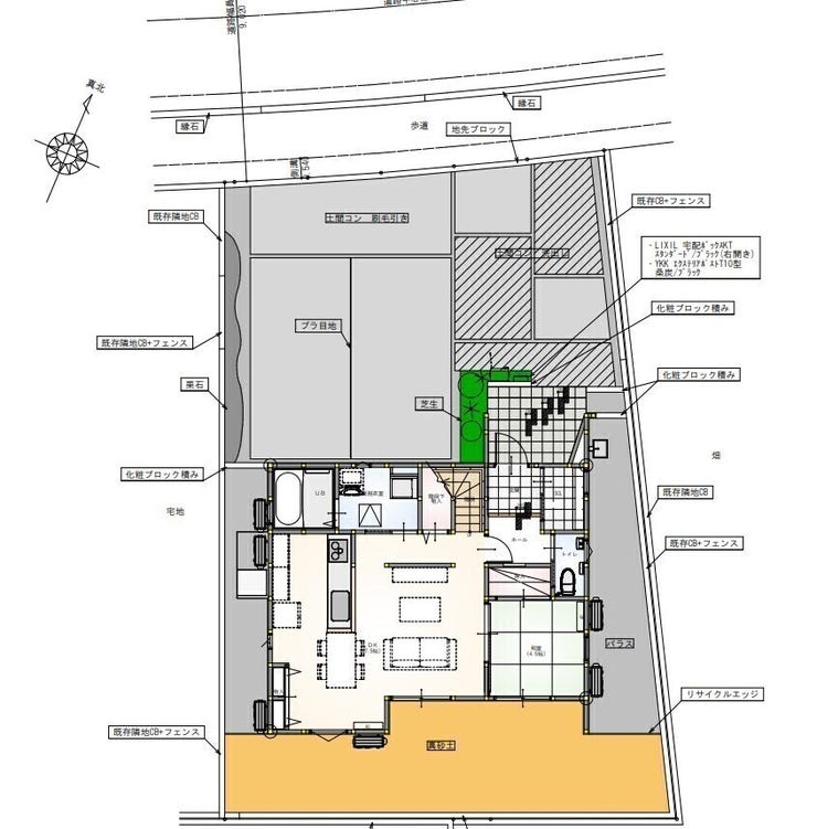
| 価格 | 3,198万円 | 間取り | 4LDK |
|---|---|---|---|
| 物件種別 | 新築一戸建て | ||
| 所在地 | 佐賀県嬉野市嬉野町大字下野甲 | ||
| アクセス |
|
||
| 建物面積 | 公108.47㎡ | 駐車場 | あり 普通:3台 |
| 築年月 | 2025年(令和7年)03月築 | 建築確認 | 第12403840号 |
| 建物構造 | 木造 2階建 | 工法 | |
| 主要採光 | バルコニー | ||
| 保証・評価 | |||
| 土地面積 | 公203.06㎡(61.42坪) | 接道 | 北側(公道)幅 約9.0m 間口 約10.40m |
| 私道 | セットバック | ||
| 地目 | 宅地 | 地勢 | |
| 権利 | 所有権 |
||
| 都市計画 | 非線引区域 |
用途地域 | 2種中高 |
| 建ぺい/容積率 | 60% / 200% | 土地国土法 | |
| 許可番号 | 建築基準法 | ||
| 法令制限 | |||
| 小学区 | 嬉野小学校 徒歩19分 (約1500m) | 中学区 | 嬉野中学校 徒歩23分 (約1800m) |
| 現況 | 完工済 | 引渡 | 即 |
| その他費用 | |||
| 周辺環境 | 嬉野幼稚園 徒歩7分 (約490m) ドラッグストアモリ嬉野店 徒歩6分 (約460m) ファミリーマート嬉野温泉店 徒歩9分 (約720m) 佐賀銀行 嬉野支店 徒歩11分 (約870m) セブンイレブン佐賀嬉野みゆき通り店 徒歩12分 (約890m) マルキョウ嬉野店 徒歩14分 (約1060m) ディスカウントドラッグコスモス嬉野店 徒歩19分 (約1510m) 嬉野市立嬉野小学校 徒歩19分 (約1500m) 嬉野市立嬉野中学校 徒歩23分 (約1800m) |
||
| 備考 | |||
| 物件番号 | 4450006 | 取引態様 | 媒介 |
取扱店舗情報
ハウスドゥ 佐賀兵庫北 株式会社栗原木材店 店舗詳細ページへ
| 電話番号 | 0952-20-0725 |
|---|---|
| 所在地 | 〒849-0919 佐賀県佐賀市兵庫北7丁目18-2 |
| 営業時間 | 9:30~18:30 |
| 定休日 | 火曜日、水曜日 |
| 宅建免許番号 | 国土交通大臣(1)第010320号 |
| アクセス | 店舗への地図はこちら |

来店ご予約
- 佐賀県
マイページ物件数 - 1,593件
最近見た物件
-
-

-
- 中古マンション
- 4,480万円
-
さいたま市浦和区北浦和1丁目
-
JR京浜東北・根岸線北浦和
-
-
-

-
- 中古一戸建て
- 1,680万円
-
広島市中区江波東1丁目
-
広島電鉄江波線舟入南
-
-
-

-
- 土地
- 380万円
-
岡山市北区津高
-
木村バス停
-
佐賀県新築一戸建て新着物件
-
-

-
- 新築一戸建て
- 2,798万円
-
三養基郡上峰町大字坊所
-
上峰住宅停留所
-
-
-

-
- 新築一戸建て
- 2,798万円
-
三養基郡上峰町大字坊所
-
上峰住宅停留所
-
-
-

-
- 新築一戸建て
- 2,888万円
-
佐賀市高木瀬東3丁目
-
東高木
-
-
-

-
- 新築一戸建て
- 2,688万円
-
佐賀市高木瀬東3丁目
-
バス停「東高木」
-
-
-

-
- 新築一戸建て
- 2,688万円
-
佐賀市高木瀬東3丁目
-
東高木
-
-
-

-
- 新築一戸建て
- 2,788万円
-
佐賀市高木瀬東3丁目
-
バス停「東高木」
-
-
-

-
- 新築一戸建て
- 2,788万円
-
佐賀市高木瀬東3丁目
-
東高木
-
- お近くの店舗を探す
-
おすすめ物件
-
-

-
- 新築一戸建て
- 2,798万円
-
鳥栖市曽根崎町
-
JR鹿児島本線鳥栖
-
-
-

-
- 新築一戸建て
- 3,899万円
-
鳥栖市宿町
-
JR九州新幹線新鳥栖
-
-
-

-
- 新築一戸建て
- 3,460万円
-
鳥栖市山浦町
-
JR九州新幹線新鳥栖
-
-
-

-
- 新築一戸建て
- 4,380万円
-
佐賀市高木瀬西5丁目
-
佐賀市営バス「高木瀬公民館前」
-
-
-

-
- 新築一戸建て
- 2,798万円
-
鳥栖市宿町
-
JR鹿児島本線鳥栖
-
-
-

-
- 新築一戸建て
- 2,698万円
-
三養基郡みやき町大字白壁
-
JR長崎本線中原
-
-
-

-
- 新築一戸建て
- 2,498万円
-
鳥栖市平田町
-
JR長崎本線肥前麓
-
-
-

-
- 新築一戸建て
- 3,298万円
-
鳥栖市姫方町
-
JR鹿児島本線田代
-
-
-

-
- 新築一戸建て
- 3,299万円
-
神埼郡吉野ヶ里町豆田
-
JR長崎本線吉野ヶ里公園
-
-
-

-
- 新築一戸建て
- 3,680万円
-
佐賀市本庄町大字袋
-
バス停「八田橋」
-






































担当エージェント:福田 拓也
【ご成約特典】
体験型カタログギフト「EXETIME Part5(5万7860円)」をプレゼント!!
人気温泉旅館や五つ星ホテルでの宿泊、
高級レストランのディナー、貸し切りクルーズなど
掲載商品は500点以上!
欲しいものが見つかりますよ(*^-^*)
詳細はお気軽に問い合わせください♪
■嬉野小学校まで徒歩19分/嬉野中学校まで徒歩27分
■リビング部分が明るい吹き抜けリビング
■豊富な収納スペース
◎2階にウォークインクローゼットを完備
◎玄関横にシューズインクロークを完備
■和室はキッズスペースとしても便利
◎キッチン向かいに和室があるのでお料理中も見守れます
■この物件はZEH対応住宅!
<安心の保証>
・定期点検(10年間)
・地盤保証(20年間)
・延長瑕疵保証(最長25年間)
・シロアリ防除保証(5年間)
・緊急かけつけサポート(10年間) など