小平市学園東町1丁目の新築戸建
掲載情報更新日:2026年01月04日 次回更新予定日:2026年01月18日
- 5,280万円
-
- 借入ご希望金額
万円 - 借入期間
年 - 借入金利
% - 月々のお支払い金額
円
- 借入ご希望金額
※ 月々のお支払例は目安の試算となりますので、実際の金額とは異なる場合がございます。詳しくは店舗までお問合わせください。
- 小平市学園東町1丁目
-
西武多摩湖線『一橋学園』 徒歩6分 (約480m)
西武多摩湖線『青梅街道』 徒歩9分 (約720m)
小平市学園東町1丁目一戸建て | 物件情報
西武多摩湖線「一橋学園」駅まで徒歩6分! 「青梅街道」駅まで徒歩9分!
「一橋学園」駅徒歩6分の駅チカの地に太陽光パネル付の家☆
物件の設備
- 電気
- 公営水道
- 公共下水
- 都市ガス
- 食器洗浄乾燥機
- 浴室乾燥機
- トイレ2箇所
- LDK15畳以上
- バルコニー
- 南面バルコニー
物件の特徴
- 2階建
物件詳細情報
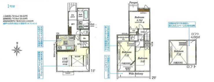
| 価格 | 5,280万円 | 間取り | 3LDK |
|---|---|---|---|
| 物件種別 | 新築一戸建て | ||
| 所在地 | 東京都小平市学園東町1丁目 | ||
| アクセス |
|
||
| 建物面積 | 77.76㎡ | 駐車場 | あり 普通:1台 |
| 築年月 | 2025年(令和7年)12月予定 | 建築確認 | 第R07SHC114164号 |
| 建物構造 | 木造 2階建 | 工法 | |
| 主要採光 | 南向 | バルコニー | 南向2.00㎡ |
| 保証・評価 | |||
| 土地面積 | 97.54㎡(29.50坪) | 接道 | |
| 私道 | セットバック | ||
| 地目 | 宅地 | 地勢 | |
| 権利 | 所有権 |
||
| 都市計画 | 市街化区域 |
用途地域 | 1種低層 |
| 建ぺい/容積率 | 40% / 80% | 土地国土法 | |
| 許可番号 | 建築基準法 | ||
| 法令制限 | 景観法・航空法・宅地造成工事規制区域 | ||
| 小学区 | 学園東小学校 徒歩8分 (約643m) | 中学区 | 小平第一中学校 徒歩13分 (約987m) |
| 現況 | 建築中 | 引渡 | 期日指定:2025年12月下旬以降 |
| その他費用 | |||
| 周辺環境 | どんぐり保育園 徒歩2分 (約110m) Le Pain Dore(ル・パン・ドレ) 徒歩2分 (約120m) ビッグ・エー小平学園東町店 徒歩3分 (約180m) ココカラファインくすりセイジョー一橋学園駅前店 徒歩3分 (約170m) 小平市立学園東小学校 徒歩6分 (約480m) 小平市立小平第一中学校 徒歩12分 (約960m) |
||
| 備考 | |||
| 物件番号 | 4450426 | 取引態様 | 媒介 |
取扱店舗情報
ハウスドゥ 国分寺本町4丁目 株式会社エンジョイパパ 店舗詳細ページへ
| 電話番号 | 042-313-9555 |
|---|---|
| 所在地 | 〒185-0012 東京都国分寺市本町4丁目3番16号サンクレストビル101 |
| 営業時間 | 10:00~14:00 |
| 定休日 | 水曜日、土曜日、日曜日 |
| 宅建免許番号 | 東京都知事(1)第111593号 |
| アクセス | 店舗への地図はこちら |

来店ご予約
東京都小平市で価格が似ている物件はこちら
- 東京都
マイページ物件数 - 4,868件
最近見た物件
-
-

-
- 中古一戸建て
- 2,980万円
-
平塚市御殿4丁目
-
JR東海道本線平塚
-
-
-

-
- 土地
- 1,700万円
-
岡山市中区さい東町1丁目
-
JR山陽本線高島
-
-
-

-
- 新築一戸建て
- 3,390万円
-
船橋市三山9丁目
-
京成本線実籾
-
東京都新築一戸建て新着物件
-
-

-
- 新築一戸建て
- 3,280万円
-
日野市日野台5丁目
-
JR中央本線豊田駅
-
-
-

-
- 新築一戸建て
- 3,580万円
-
日野市日野台5丁目
-
JR中央本線豊田駅
-
-
-

-
- 新築一戸建て
- 6,590万円
-
日野市日野本町4丁目
-
JR中央本線日野駅
-
-
-

-
- 新築一戸建て
- 1億5,980万円
-
世田谷区東玉川1丁目
-
東急目黒線奥沢駅
-
-
-

-
- 新築一戸建て
- 6,699万円
-
足立区伊興本町1丁目
-
東武伊勢崎・大師線竹ノ塚駅
-
-
-

-
- 新築一戸建て
- 6,999万円
-
足立区伊興本町1丁目
-
東武伊勢崎・大師線竹ノ塚駅
-
-
-

-
- 新築一戸建て
- 6,799万円
-
足立区伊興本町1丁目
-
東武伊勢崎・大師線竹ノ塚駅
-
- お近くの店舗を探す
-
おすすめ物件
-
-

-
- 新築一戸建て
- 7,798万円
-
江戸川区南葛西5丁目
-
JR京葉線葛西臨海公園
-
-
-

-
- 新築一戸建て
- 6,790万円
-
狛江市東野川2丁目
-
小田急小田原線喜多見
-
-
-

-
- 新築一戸建て
- 5,180万円
-
調布市富士見町2丁目
-
京王相模原線調布
-
-
-

-
- 新築一戸建て
- 6,390万円
-
三鷹市中原4丁目
-
京王線つつじヶ丘
-
-
-

-
- 新築一戸建て
- 4,990万円
-
調布市深大寺南町5丁目
-
京王線つつじヶ丘
-
-
-

-
- 新築一戸建て
- 9,980万円
-
世田谷区砧1丁目
-
小田急小田原線祖師ヶ谷大蔵
-
-
-

-
- 新築一戸建て
- 3,980万円
-
足立区大谷田4丁目
-
東京メトロ千代田線北綾瀬
-
-
-

-
- 新築一戸建て
- 8,180万円
-
大田区中央6丁目
-
東急池上線池上
-
-
-

-
- 新築一戸建て
- 6,590万円
-
狛江市東野川2丁目
-
小田急小田原線喜多見
-
-
-

-
- 新築一戸建て
- 1億399万円
-
世田谷区北烏山3丁目
-
京王線千歳烏山
-




担当エージェント:鈴木 絢子
どんな些細なことでもお気軽にお問合せください♪