札幌市手稲区曙三条3丁目の新築戸建
NEW 10.20掲載情報更新日:2025年10月20日 次回更新予定日:2025年11月03日
- 2,590万円
-
- 借入ご希望金額
万円 - 借入期間
年 - 借入金利
% - 月々のお支払い金額
円
- 借入ご希望金額
※ 月々のお支払例は目安の試算となりますので、実際の金額とは異なる場合がございます。詳しくは店舗までお問合わせください。
- 札幌市手稲区曙三条3丁目
-
JR函館本線『稲穂』 徒歩20分 (約1600m)
札幌市手稲区曙三条3丁目一戸建て | 物件情報
~子育て世代に優しい住環境と安心の暮らし~
<おすすめポイント>
◎耐震+制震の家
◎駐車2台可能
◎ルーフバルコニー
◎納戸有り
◎全居室収納スペース
◎収納スペース充実
◎全居室6帖以上
◎トイレ2箇所
◎対面式キッチン
◎浴室乾燥機
◎閑静な住宅地
◎建設住宅性能評価書付
◎住宅性能保証付
◎外断熱工法
物件の設備
- 電気
- 公営水道
- 公共下水
- プロパンガス
- 浄水器
- コンロ三口
- グリル
- システムキッチン
- 浴室乾燥機
- トイレ
- トイレ2箇所
- 室内洗濯機置場
- 洗面所独立
- クローゼット
- 納戸
- 床下収納
- 全居室収納
物件の特徴
- 前道6m以上
- 南側道路面す
- 2階建
- 即入居可
物件詳細情報
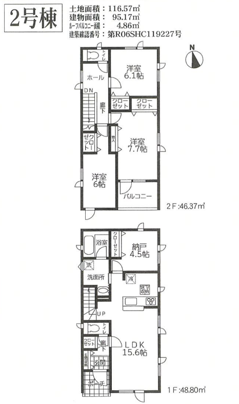
| 価格 | 2,590万円 | 間取り | 3LDK+S |
|---|---|---|---|
| 物件種別 | 新築一戸建て | ||
| 所在地 | 北海道札幌市手稲区曙三条3丁目 2号棟 | ||
| アクセス |
|
||
| 建物面積 | 公95.17㎡ | 駐車場 | なし |
| 築年月 | 2025年(令和7年)08月築 | 建築確認 | |
| 建物構造 | 木造 2階建 | 工法 | |
| 主要採光 | 南向 | バルコニー | |
| 保証・評価 | |||
| 土地面積 | 公116.57㎡(35.26坪) | 接道 | 南側(公道)幅 約8.0m 間口 約6.90m |
| 私道 | セットバック | ||
| 地目 | 宅地 | 地勢 | |
| 権利 | 所有権 |
||
| 都市計画 | 市街化区域 |
用途地域 | 1種住居 |
| 建ぺい/容積率 | 60% / 200% | 土地国土法 | |
| 許可番号 | 建築基準法 | ||
| 法令制限 | 18m高度地区・法22条区域 | ||
| 小学区 | 手稲鉄北小学校 徒歩18分 (約1400m) | 中学区 | 稲陵中学校 徒歩17分 (約1300m) |
| 現況 | 完工済 | 引渡 | 即 |
| その他費用 | |||
| 備考 | ■駐車2台可能 ■3棟同時販売/1号棟・2号棟販売中(※3号棟成約済) |
||
| 物件番号 | 4456593 | 取引態様 | 媒介 |
取扱店舗情報
ハウスドゥ 宮の沢駅前 札幌アポロ株式会社 店舗詳細ページへ
| 電話番号 | 011-668-3000 |
|---|---|
| 所在地 | 〒063-0051 北海道札幌市西区宮の沢1条1丁目10番19号 |
| 営業時間 | 9:00~18:00 |
| 定休日 | 水曜日 |
| 宅建免許番号 | 北海道知事 石狩(2)第8772号 |
| アクセス | 店舗への地図はこちら |

来店ご予約
北海道札幌市手稲区で価格が似ている物件はこちら
- 北海道
マイページ物件数 - 6,068件
最近見た物件
-
-

-
- 中古マンション
- 8,399万円
-
墨田区本所4丁目
-
都営浅草線本所吾妻橋
-
北海道新築一戸建て新着物件
-
-

-
- 新築一戸建て
- 3,290万円
-
札幌市北区東茨戸一条2丁目
-
札幌市南北線麻生駅
-
-
-

-
- 新築一戸建て
- 3,290万円
-
札幌市北区東茨戸一条2丁目
-
札幌市南北線麻生駅
-
-
-

-
- 新築一戸建て
- 3,590万円
-
札幌市北区北二十六条西15丁目
-
JR札沼線新川駅
-
-
-

-
- 新築一戸建て
- 3,590万円
-
札幌市北区北二十六条西15丁目
-
JR札沼線新川駅
-
-
-

-
- 新築一戸建て
- 3,990万円
-
千歳市富丘2丁目
-
JR千歳線千歳駅
-
-
-

-
- 新築一戸建て
- 4,580万円
-
札幌市豊平区福住二条9丁目
-
札幌市東豊線福住駅
-
-
-

-
- 新築一戸建て
- 4,580万円
-
札幌市豊平区福住二条9丁目
-
札幌市東豊線福住駅
-
- お近くの店舗を探す
-
おすすめ物件
-
-

-
- 新築一戸建て
- 2,642.50万円
-
帯広市西十九条南2丁目
-
JR根室本線柏林台
-
-
-

-
- 新築一戸建て
- 3,100万円
-
北見市東相内町
-
JR石北本線西北見
-
-
-

-
- 新築一戸建て
- 2,698万円
-
函館市花園町
-
函館市電本線湯川線函館アリーナ前
-
-
-

-
- 新築一戸建て
- 4,250万円
-
札幌市白石区栄通16丁目
-
札幌市東西線南郷18丁目
-
-
-

-
- 新築一戸建て
- 3,450万円
-
北見市中央三輪2丁目
-
JR石北本線西北見
-
-
-

-
- 新築一戸建て
- 4,980万円
-
札幌市西区西野四条2丁目
-
札幌市東西線発寒南
-
-
-

-
- 新築一戸建て
- 4,130万円
-
札幌市手稲区富丘一条7丁目
-
JR函館本線手稲
-
-
-

-
- 新築一戸建て
- 3,590万円
-
札幌市北区北二十六条西15丁目
-
JR札沼線新川
-
-
-

-
- 新築一戸建て
- 3,845万円
-
北見市緑ケ丘1丁目
-
JR石北本線北見
-
-
-

-
- 新築一戸建て
- 3,990万円
-
札幌市手稲区富丘一条7丁目
-
JR函館本線手稲
-



























担当エージェント:長濱 寛
公園が目の前♪子育て世代に優しい住環境良好な立地です♪
お気軽にお問い合わせください!
【ハウスドゥ宮の沢駅前:011-668-3000】