寝屋川市太秦中町の新築戸建
掲載情報更新日:2026年04月25日 次回更新予定日:2026年05月09日
- 4,490万円
-
- 借入ご希望金額
万円 - 借入期間
年 - 借入金利
% - 月々のお支払い金額
円
- 借入ご希望金額
※ 月々のお支払例は目安の試算となりますので、実際の金額とは異なる場合がございます。詳しくは店舗までお問合わせください。
- 寝屋川市太秦中町
-
JR片町線『寝屋川公園』 バス乗車11分 太秦住宅 停 徒歩3分 (約240m)
京阪本線『寝屋川市』 徒歩26分 (約2080m)
JR片町線『寝屋川公園』 徒歩29分 (約2320m)
寝屋川市太秦中町一戸建て | 物件情報
■北西角地の4LDKで車2台駐車可能♪ ■耐震等級3+制震ダンパー付きなので繰り返す地震に強いお家♪
■北西角地の2階建て4LDKのお家です♪ ■普通車2台駐車可能です♪
■耐震等級3+制震ダンパー付きなので繰り返す地震に強いお家です♪
■長期優良住宅♪ ■建設住宅性能表示♪ ■設計住宅性能表示♪
■コミュニケーションが取りやすく開放的な空間を提供するフルオープンキッチン♪
■キッチンがスッキリ片付くパントリー収納付きです♪
■全居室に収納があり、3カ所はたっぷり収納可能なウォークインクローゼット仕様♪
■ハンガーパイプと可動棚付きで収納しやすい玄関土間収納ございます♪
■閑静な住宅街に位置し、静かで落ち着いた生活環境やリラックスした日常を提供♪
■リビングイン階段、オープンサニタリー、土間収納などデザインを重視したお家です♪
ぜひお気軽にお問い合わせください。
物件の設備
- 公営水道
- 公共下水
- 側溝
- 都市ガス
- 給湯
- 浄水器
- 食器洗浄乾燥機
- 食品庫
- コンロ三口
- システムキッチン
- オープンキッチン
- バス
- 追焚機能
- 浴室乾燥機
- 浴室に窓
- トイレ2箇所
- 温水洗浄便座
- 室内洗濯機置場
- 洗髪洗面化粧台
- 洗面所独立
- 室内物干機
- ダウンライト
- リビング階段
- 人感照明センサー
- ダブルロックキー
- モニタ付インターホン
- LDK18畳以上
- 全室2面採光
- 全室フローリング
- シャッター雨戸
- 24時間換気システム
- クローゼット
- ウォークインクローゼット
- 床下収納
- 全居室収納
- シューズWIC
- シューズボックス
- シューズインクローク
- バルコニー
- ワイドバルコニー
- 南面バルコニー
- ハイルーフ駐車可能
- 宅配BOX
物件の特徴
- 耐震構造
- 2沿線利用可
- 小学校徒歩10分以内
- 緑豊かな住宅地
- 閑静な住宅街
- 周辺交通量少なめ
- 高台に立地
- 通風良好
- 陽当り良好
- 2階建
- 角地
- 平坦地
- 整形地
- 長期優良住宅
- フラット35
- S適合証明書
- BELS/省エネ基準適合
- 設備保証利用可
- 設備保証付
- フラット35Sに対応
物件詳細情報
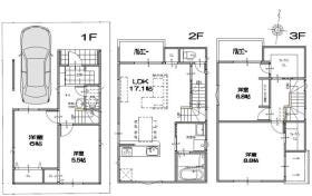
| 価格 | 4,490万円 | 間取り | 4LDK |
|---|---|---|---|
| 物件種別 | 新築一戸建て | ||
| 所在地 | 大阪府寝屋川市太秦中町 | ||
| アクセス |
|
||
| 建物面積 | 公104.42㎡ | 駐車場 | あり 普通:2台 |
| 築年月 | 2026年(令和8年)03月予定 | 建築確認 | R07SHC119773 |
| 建物構造 | 木造 2階建 | 工法 | |
| 主要採光 | 西向 | バルコニー | 南向6.83㎡ |
| 保証・評価 | 長期優良住宅認定通知書・フラット35S適合証明書 |
||
| 土地面積 | 公123.1㎡(37.23坪) | 接道 | 西側(公道)幅 約5.2m 間口 約13.34m 北側(公道)幅 約5.2m 間口 約5.09m |
| 私道 | セットバック | 無 | |
| 地目 | 宅地 | 地勢 | 平坦 |
| 権利 | 所有権 |
||
| 都市計画 | 市街化区域 |
用途地域 | 1種低層 |
| 建ぺい/容積率 | 50% / 100% | 土地国土法 | |
| 許可番号 | 建築基準法 | ||
| 法令制限 | 高度地区・準防火地域 | ||
| 小学区 | 東小学校 徒歩10分 (約769m) | 中学区 | 第一中学校 徒歩11分 (約850m) |
| 現況 | 建築中 | 引渡 | 期日指定:2026年04月上旬 |
| その他費用 | |||
| 備考 | |||
| 物件番号 | 4460541 | 取引態様 | 専属専任媒介 |
取扱店舗情報
ハウスドゥ 京阪寝屋川 株式会社Neo不動産販売 店舗詳細ページへ
| 電話番号 | 072-812-1144 |
|---|---|
| 所在地 | 〒572-0838 大阪府寝屋川市八坂町9-3 日経ビル1階 |
| 営業時間 | 10:00~20:00 |
| 定休日 | 火曜日、水曜日 |
| 宅建免許番号 | 大阪府知事(2)第61431号 |
| アクセス | 店舗への地図はこちら |

来店ご予約
大阪府寝屋川市で価格が似ている物件はこちら
- 大阪府
マイページ物件数 - 18,561件
最近見た物件
-
-

-
- 新築一戸建て
- 2,280万円
-
福山市神辺町字下御領
-
井原鉄道御領
-
-
-

-
- 中古一戸建て
- 650万円
-
和歌山市狐島
-
南海電気鉄道加太線東松江
-
-
-

-
- 中古一戸建て
- 1,698万円
-
大津市唐崎1丁目
-
JR湖西線唐崎
-
大阪府新築一戸建て新着物件
-
-

-
- 新築一戸建て
- 2,880万円
-
八尾市山本町北7丁目
-
近鉄大阪線河内山本駅
-
-
-

-
- 新築一戸建て
- 3,580万円
-
藤井寺市梅が園町
-
近鉄道明寺線柏原南口駅
-
-
-

-
- 新築一戸建て
- 2,480万円
-
八尾市東山本町9丁目
-
近鉄大阪線河内山本駅
-
-
-

-
- 新築一戸建て
- 3,580万円
-
高槻市塚原5丁目
-
JR東海道線摂津富田駅
-
-
-

-
- 新築一戸建て
- 5,290万円
-
池田市荘園2丁目
-
阪急電鉄宝塚線石橋阪大前駅
-
-
-

-
- 新築一戸建て
- 1,280万円
-
藤井寺市沢田2丁目
-
近鉄南大阪線土師ノ里駅
-
-
-

-
- 新築一戸建て
- 4,999万円
-
堺市南区新檜尾台4丁
-
南海電鉄泉北線光明池駅
-
- お近くの店舗を探す
-
おすすめ物件
-
-

-
- 新築一戸建て
- 3,480万円
-
高槻市津之江町2丁目
-
JR東海道線摂津富田
-
-
-

-
- 新築一戸建て
- 3,490万円
-
東大阪市中小阪1丁目
-
近鉄難波・奈良線河内小阪
-
-
-

-
- 新築一戸建て
- 3,480万円
-
大阪市東住吉区住道矢田4丁目
-
近鉄南大阪線矢田
-
-
-

-
- 新築一戸建て
- 3,780万円
-
摂津市一津屋2丁目
-
大阪モノレール南摂津
-
-
-

-
- 新築一戸建て
- 3,080万円
-
泉大津市下条町
-
南海電鉄本線泉大津
-
-
-

-
- 新築一戸建て
- 3,090万円
-
河内長野市南青葉台
-
南海電鉄高野線三日市町
-
-
-

-
- 新築一戸建て
- 3,180万円
-
東大阪市花園東町2丁目
-
近鉄難波・奈良線東花園
-
-
-

-
- 新築一戸建て
- 3,680万円
-
大阪市東住吉区住道矢田4丁目
-
近鉄南大阪線矢田
-
-
-

-
- 新築一戸建て
- 3,880万円
-
大阪市住之江区北島3丁目
-
南海電鉄本線住ノ江
-
-
-

-
- 新築一戸建て
- 3,680万円
-
高槻市安岡寺町2丁目
-
JR東海道線高槻
-





















