西尾市平坂町午築地の新築戸建
NEW 10.24掲載情報更新日:2025年10月24日 次回更新予定日:2025年11月07日
- 2,490万円
-
- 借入ご希望金額
万円 - 借入期間
年 - 借入金利
% - 月々のお支払い金額
円
- 借入ご希望金額
※ 月々のお支払例は目安の試算となりますので、実際の金額とは異なる場合がございます。詳しくは店舗までお問合わせください。
- 西尾市平坂町午築地
-
名鉄西尾線『西尾』 バス乗車20分 六万石くるりんバス 平坂午築地 停 徒歩3分 (約240m)
名鉄三河線『碧南』 車10分(約5.1km)
名鉄西尾線『福地』 車11分(約5.1km)
西尾市平坂町午築地一戸建て | 物件情報
\新登場/平坂小・平坂中/まずは資料請求大歓迎!キャンペーンも開催中♪
【ハウスドゥ幸田 独自のキャンペーン!】
2025/10/31までにご購入申込みのお客様限定!
エアコン1台設置!または豊富なオプションカタログから選べる「10万円分」プレゼント!
○ご見学予約は○
フリーダイヤル 【0120-222-651】
お気軽にお問い合わせくださいませ♪
【イチオシポイント】
◎住宅性能評価・耐震等級3を取得
◎モニター付きインターホン
◎子育てグリーン住宅対象物件!
◎広々18帖LDK!全居室収納付きで、収納力◎
【学校】
◎西尾小学校 徒歩約7分
◎西尾中学校 徒歩約11分
◎名鉄西尾線 西尾駅
物件の設備
- 電気
- 上水道
- 下水道
- プロパンガス
- 給湯
- 浄水器
- コンロ三口
- カウンターキッチン
- システムキッチン
- バス
- ユニットバス
- オートバス
- 追焚機能
- 浴室乾燥機
- 浴室に窓
- トイレ
- トイレ2箇所
- 温水洗浄便座
- 室内洗濯機置場
- 洗髪洗面化粧台
- 洗面所独立
- ディンプルキー
- モニタ付インターホン
- 火災警報器/報知機
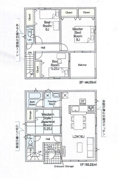
- LDK15畳以上
- 和室
- 2面採光
- 複層ガラス
- フローリング
- 24時間換気システム
- クローゼット
- クローゼット3箇所
- 床下収納
- 全居室収納
- シューズボックス
- ルーフバルコニー
- インナーバルコニー
物件の特徴
- 南向
- 地盤調査済
- 3沿線以上利用可
- 小学校徒歩10分以内
- セットバック済
- 南側道路面す
- 閑静な住宅街
- 通風良好
- 陽当り良好
- 2階建
- 前面棟無
- 角地
- 外壁サイディング
- フラット35
- S適合証明書
- フラット35Sに対応
物件詳細情報
| 価格 | 2,490万円 | 間取り | 4LDK |
|---|---|---|---|
| 物件種別 | 新築一戸建て | ||
| 所在地 | 愛知県西尾市平坂町午築地 2号棟 | ||
| アクセス |
|
||
| 建物面積 | 実94.77㎡ | 駐車場 | あり 普通:2台 |
| 築年月 | 2026年(令和8年)01月予定 | 建築確認 | 第HPA-25-09907-1号 |
| 建物構造 | 木造 アスファルトシングル葺 2階建 | 工法 | |
| 主要採光 | 南向 | バルコニー | 7.29㎡ |
| 保証・評価 | フラット35S適合証明書 |
||
| 分譲情報 | 【販売戸数】:3戸 【価格】:2,190万円 ~2,490万円 【土地面積】:110.88㎡ ~148.54㎡ |
||
| 土地面積 | 実148.54㎡(44.93坪) | 接道 | 東側(公道)幅 約2.9m 間口 約12.70m 南側(公道)幅 約4.1m 間口 約8.80m |
| 私道 | セットバック | 済 | |
| 地目 | 宅地 | 地勢 | |
| 権利 | 所有権 |
||
| 都市計画 | 市街化区域 |
用途地域 | 近隣商業 |
| 建ぺい/容積率 | 80% / 200% | 土地国土法 | |
| 許可番号 | 建築基準法 | ||
| 法令制限 | 宅地造成工事規制区域・準防火地域 | ||
| 小学区 | 平坂小学校 徒歩7分 (約549m) | 中学区 | 平坂中学校 徒歩10分 (約803m) |
| 現況 | 建築中 | 引渡 | 期日指定:2026年01月以降 |
| その他費用 | |||
| 備考 | |||
| 物件番号 | 4461231 | 取引態様 | 媒介 |
取扱店舗情報
| 電話番号 | 0564-73-1620 |
|---|---|
| 所在地 | 〒444-0117 愛知県額田郡幸田町大字相見字沖原69番地 アヴニール相見101号室 |
| 営業時間 | 9:00~18:00 |
| 定休日 | 水曜日 |
| 宅建免許番号 | 愛知県知事(1)第25500号 |
| アクセス | 店舗への地図はこちら |

来店ご予約
愛知県西尾市で価格が似ている物件はこちら
- 愛知県
マイページ物件数 - 30,384件
最近見た物件
-
-

-
- 新築一戸建て
- 2,780万円
-
碧南市岬町4丁目
-
名鉄三河線碧南
-
愛知県新築一戸建て新着物件
-
-

-
- 新築一戸建て
- 3,090万円
-
名古屋市港区名四町
-
名古屋臨海高速鉄道荒子川公園駅
-
-
-

-
- 新築一戸建て
- 2,990万円
-
名古屋市港区名四町
-
名古屋臨海高速鉄道荒子川公園駅
-
-
-

-
- 新築一戸建て
- 3,990万円
-
春日井市神領町2丁目
-
JR中央本線神領駅
-
-
-

-
- 新築一戸建て
- 3,890万円
-
北名古屋市熊之庄古井
-
名鉄犬山線徳重・名古屋芸大駅
-
-
-

-
- 新築一戸建て
- 2,590万円
-
あま市下萱津山伏
-
名鉄津島線甚目寺駅
-
-
-

-
- 新築一戸建て
- 2,490万円
-
あま市下萱津山伏
-
名鉄津島線甚目寺駅
-
-
-

-
- 新築一戸建て
- 2,690万円
-
あま市下萱津山伏
-
名鉄津島線甚目寺駅
-
- お近くの店舗を探す
-
おすすめ物件
-
-

-
- 新築一戸建て
- 4,780万円
-
岡崎市上地6丁目
-
JR東海道本線相見
-
-
-

-
- 新築一戸建て
- 4,480万円
-
知多市寺本台1丁目
-
名鉄常滑線寺本
-
-
-

-
- 新築一戸建て
- 2,478万円
-
西尾市寺津町北馬場
-
名鉄西尾線福地
-
-
-

-
- 新築一戸建て
- 4,799万円
-
名古屋市南区赤坪町
-
名鉄名古屋本線本笠寺
-
-
-

-
- 新築一戸建て
- 2,330万円
-
知多郡武豊町字小迎
-
JR武豊線武豊
-
-
-

-
- 新築一戸建て
- 2,890万円
-
名古屋市中川区打出2丁目
-
近鉄名古屋線伏屋
-
-
-

-
- 新築一戸建て
- 2,790万円
-
常滑市神明町1丁目
-
名鉄常滑線蒲池
-
-
-

-
- 新築一戸建て
- 4,830万円
-
岡崎市上地6丁目
-
JR東海道本線相見
-
-
-

-
- 新築一戸建て
- 5,490万円
-
名古屋市千種区今池南
-
名古屋市東山線今池
-
-
-

-
- 新築一戸建て
- 2,890万円
-
半田市乙川八幡町2丁目
-
JR武豊線乙川
-














【ハウスドゥ(株)アクア】
■何を相談してよいか分からなくても大丈夫♪
■ライフプランに寄り添ったご提案♪
■自己資金0円で購入可能な方法も♪
■支払いに不安な方もお気軽にどうぞ♪