相模原市中央区田名の新築戸建
NEW 10.25掲載情報更新日:2025年10月25日 次回更新予定日:2025年11月08日
- 3,899万円
-
- 借入ご希望金額
万円 - 借入期間
年 - 借入金利
% - 月々のお支払い金額
円
- 借入ご希望金額
※ 月々のお支払例は目安の試算となりますので、実際の金額とは異なる場合がございます。詳しくは店舗までお問合わせください。
- 相模原市中央区田名
-
JR横浜線『橋本』 バス乗車22分 葛和 停 徒歩6分 (約480m)
JR相模線『橋本』 バス乗車22分 葛和 停 徒歩6分 (約480m)
京王相模原線『橋本』 バス乗車22分 葛和 停 徒歩6分 (約480m)
相模原市中央区田名一戸建て | 物件情報
物件の設備
- 電気
- 公営水道
- プロパンガス
- 浄水器
- 食器洗浄乾燥機
- 浴室暖房
- 浴室乾燥機
- 浴室に窓
- トイレ2箇所
- 室内洗濯機置場
- 洗面所独立
- LDK20畳以上
- 2面採光
- 全室2面採光
- 複層ガラス
- 全居室複層ガラス
- ウォークインクローゼット
- ウォークインクローゼット2箇所
- 床下収納
- 全居室収納
- シューズボックス
物件の特徴
- 3沿線以上利用可
- 2階建
物件詳細情報
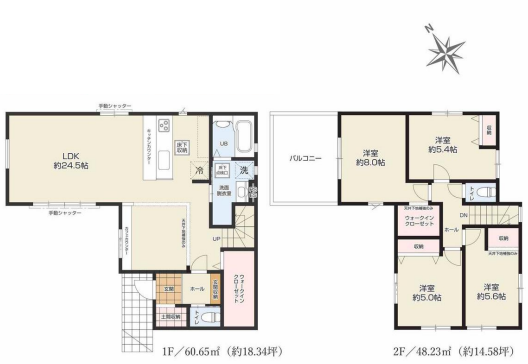
| 価格 | 3,899万円 | 間取り | 4LDK |
|---|---|---|---|
| 物件種別 | 新築一戸建て | ||
| 所在地 | 神奈川県相模原市中央区田名 | ||
| アクセス |
|
||
| 建物面積 | 108.88㎡ | 駐車場 | あり 普通:2台 |
| 築年月 | 2025年(令和7年)12月予定 | 建築確認 | 第25UDI1W建04948号 |
| 建物構造 | 木造 2階建 | 工法 | |
| 主要採光 | バルコニー | ||
| 保証・評価 | |||
| 土地面積 | 121.52㎡(36.75坪) | 接道 | 北西側(公道)幅 約5.0m |
| 私道 | セットバック | ||
| 地目 | 宅地 | 地勢 | |
| 権利 | 所有権 |
||
| 都市計画 | 市街化区域 |
用途地域 | 準工業 |
| 建ぺい/容積率 | 60% / 200% | 土地国土法 | |
| 許可番号 | 建築基準法 | ||
| 法令制限 | |||
| 小学区 | 九沢小学校 徒歩13分 (約1000m) | 中学区 | 大沢中学校 徒歩18分 (約1400m) |
| 現況 | 建築中 | 引渡 | 期日指定:2025年12月中旬 |
| その他費用 | |||
| 周辺環境 | 九沢小学校 徒歩14分 (約1050m) 大沢中学校 徒歩21分 (約1630m) てるて幼稚園 徒歩16分 (約1260m) いなげや ina21 相模原下九沢店 徒歩14分 (約1120m) ミニストップ田名葛輪店 徒歩5分 (約340m) ディスカウントドラッグコスモス上溝店 徒歩7分 (約550m) 下九沢内科クリニック 徒歩8分 (約590m) 田名葛輪公園 徒歩6分 (約450m) |
||
| 備考 | ■こども園きらきら・・・約1000m(徒歩13分) ■てるて幼稚園・・・約1100m(徒歩14分) ■いなげや ina21 相模原下九沢店・・・約1200m(徒歩16分) ■ミニストップ 田名葛輪店・・・約342m(徒歩5分) ■ドラッグストアコスモス 上溝店・・・約56m(徒歩8分) ■下九沢内科クリニック・・・約584m(徒歩8分) ■田名葛輪公園・・・約446m(徒歩6分) |
||
| 物件番号 | 4462709 | 取引態様 | 媒介 |
取扱店舗情報
ハウスドゥ!相模原横山台店 夢のなかまたち株式会社 店舗詳細ページへ
| 電話番号 | 042-851-3970 |
|---|---|
| 所在地 | 〒252-0241 神奈川県相模原市中央区横山台2丁目13番1号1F |
| 営業時間 | 9:00~18:00 |
| 定休日 | 火曜日、水曜日 |
| 宅建免許番号 | 神奈川県知事(2)第30659号 |
| アクセス | 店舗への地図はこちら |

来店ご予約
神奈川県相模原市中央区で価格が似ている物件はこちら
- 神奈川県
マイページ物件数 - 3,188件
最近見た物件
神奈川県新築一戸建て新着物件
- お近くの店舗を探す
-


















