Blooming Garden 笹木野北寺畑 4号棟
掲載情報更新日:2025年12月22日 次回更新予定日:2026年01月05日
- 3,098万円
-
- 借入ご希望金額
万円 - 借入期間
年 - 借入金利
% - 月々のお支払い金額
円
- 借入ご希望金額
※ 月々のお支払例は目安の試算となりますので、実際の金額とは異なる場合がございます。詳しくは店舗までお問合わせください。
- 福島市笹木野字北寺畑
-
JR奥羽本線『笹木野』 徒歩14分 (約1120m)
JR東北本線『福島』 バス乗車10分 萱場入口 停 徒歩4分 (約320m)
Blooming Garden 笹木野北寺畑 4号棟一戸建て | 物件情報
MyHome応援フェア!『マイホーム設備10年保証サービス』付帯プランをご用意しております。
ハウスドゥ福島御山は
常時取り扱い物件500件以上!
ハウスドゥのノウハウでみなさまの夢の実現を応援します!
●駐車場完備
建物脇等に5区画ございます。いっぱいの時はお声がけください。
●キッズルーム
小さなお子様がいらっしゃってもどうぞお気兼ねなく。
●物件資料ディスプレイ
店頭公開物件常時500件以上。お気軽に物件選びをしていただくことができます。
物件の設備
- 電気
- 公営水道
- 公共下水
- 都市ガス
- 浄水器
- 食器洗浄乾燥機
- コンロ三口
- グリル
- カウンターキッチン
- システムキッチン
- オープンキッチン
- オートバス
- バス1坪以上
- 追焚機能
- 浴室暖房
- 浴室乾燥機
- 浴室に窓
- トイレ2箇所
- 温水洗浄便座
- 室内洗濯機置場
- 洗髪洗面化粧台
- 室内物干機
- 照明器具
- ダウンライト
- 省エネ給湯器
- ダブルロックキー
- モニタ付インターホン
- 火災警報器/報知機
- 2面採光
- 全室2面採光
- 吹抜
- 複層ガラス
- 24時間換気システム
- クローゼット
- 床下収納
- 全居室収納
- シューズインクローク
物件の特徴
- 南向
- 高気密高断熱住宅
- ノンホルムアルデヒド
- 前道6m以上
- 閑静な住宅街
- 2階建
- 整形地
- 開発分譲地内
- 外壁サイディング
- バリアフリー
- 長期優良住宅
- 建設住宅性能評価付
- 設計住宅性能評価付
- 建築確認完了検査済証
- 即入居可
物件詳細情報
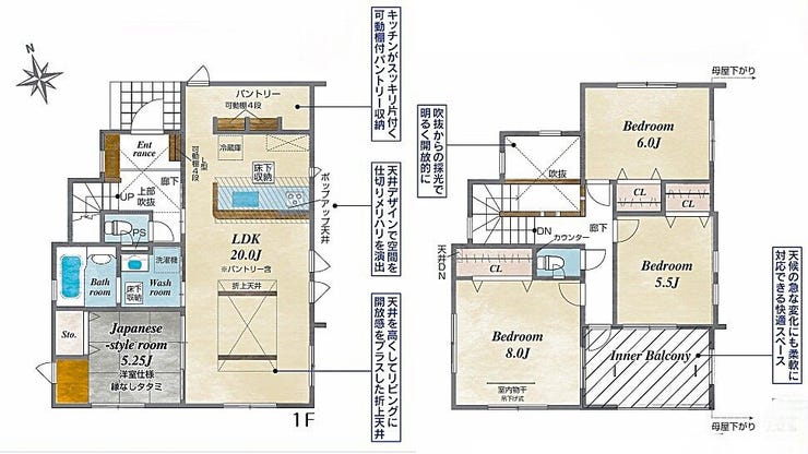
| 価格 | 3,098万円 | 間取り | 4LDK |
|---|---|---|---|
| 物件種別 | 新築一戸建て | ||
| 所在地 | 福島県福島市笹木野字北寺畑 4号棟 | ||
| アクセス |
|
||
| 建物面積 | 公112.82㎡ | 駐車場 | あり 普通:3台 |
| 築年月 | 2025年(令和7年)11月築 | 建築確認 | 第R07SHC112687号 |
| 建物構造 | 木造 2階建 | 工法 | |
| 主要採光 | 南向 | バルコニー | |
| 保証・評価 | 長期優良住宅認定通知書・フラット35適合証明書・設計住宅性能評価書・建設住宅性能評価書(新築時) |
||
| 土地面積 | 公165.98㎡(50.20坪) | 接道 | 東側(公道)幅 約12.5m 北側(私道)幅 約4.0m |
| 私道 | セットバック | 無 | |
| 地目 | 宅地 | 地勢 | 平坦 |
| 権利 | 所有権 |
||
| 都市計画 | 市街化区域 |
用途地域 | 1種住居 |
| 建ぺい/容積率 | 60% / 200% | 土地国土法 | |
| 許可番号 | 建築基準法 | ||
| 法令制限 | |||
| 小学区 | 野田小学校 徒歩7分 (約564m) | 中学区 | 野田中学校 徒歩23分 (約1779m) |
| 現況 | 完工済 | 引渡 | 即 |
| その他費用 | |||
| 周辺環境 | 福島市立野田小学校 徒歩4分 (約310m) 福島市立野田中学校 徒歩21分 (約1620m) 笹木野駅 徒歩14分 (約1080m) ダイユーエイト福島西店 徒歩23分 (約1770m) ファッションセンターしまむら八島田店 徒歩22分 (約1750m) ユニクロ 福島南沢又店 徒歩21分 (約1660m) ヨークベニマル福島西店 徒歩22分 (約1710m) ロシナンテ福島西店 徒歩19分 (約1490m) ハシドラッグ西店 徒歩26分 (約2060m) コープふくしま いずみ店 徒歩28分 (約2230m) |
||
| 備考 | |||
| 物件番号 | 4468208 | 取引態様 | 媒介 |
取扱店舗情報
ハウスドゥ 福島御山 株式会社ユメノミライズ 店舗詳細ページへ
| 電話番号 | 024-563-6868 |
|---|---|
| 所在地 | 〒960-8252 福島県福島市御山字一本松21-3 |
| 営業時間 | 9:30~17:30 |
| 定休日 | 水曜日、年末年始 |
| 宅建免許番号 | 福島県知事(11)第70068号 |
| アクセス | 店舗への地図はこちら |

来店ご予約
福島県福島市で価格が似ている物件はこちら
- 福島県
マイページ物件数 - 387件
最近見た物件
-
-

-
- 土地
- 1,322万円
-
高砂市荒井町小松原4丁目
-
山陽電鉄本線高砂
-
-
-

-
- 土地
- 1,356万円
-
佐賀市下田町
-
バス停「普門寺」
-
-
-

-
- 新築一戸建て
- 3,380万円
-
加古川市平岡町新在家
-
JR山陽本線東加古川
-
福島県新築一戸建て新着物件
-
-

-
- 新築一戸建て
- 3,498万円
-
郡山市本町2丁目
-
JR東北本線郡山駅
-
-
-

-
- 新築一戸建て
- 3,698万円
-
郡山市本町2丁目
-
JR東北本線郡山駅
-
-
-

-
- 新築一戸建て
- 3,098万円
-
福島市泉字先達
-
福島交通飯坂線岩代清水駅
-
-
-

-
- 新築一戸建て
- 3,098万円
-
福島市泉字先達
-
福島交通飯坂線岩代清水駅
-
-
-

-
- 新築一戸建て
- 2,380万円
-
郡山市日和田町字日向
-
JR東北本線日和田駅
-
-
-

-
- 新築一戸建て
- 2,580万円
-
郡山市日和田町字日向
-
JR東北本線日和田駅
-
-
-

-
- 新築一戸建て
- 2,680万円
-
郡山市日和田町字日向
-
JR東北本線日和田駅
-
- お近くの店舗を探す
-









●ハウスドゥってどんなお店?
全国約700店舗のフランチャイズチェーン。たくさんの物件の中からお気に入りの物件をお選びいただけるよう、当店1店舗で常時500以上の最新情報を取り揃えています。
●YouTubeドゥチャンネルでお勉強
https://www.youtube.com/@housedo_buy
誰でも無料で閲覧できます。購入編の他に、売却編、リフォーム編がございます。
●住宅ローンご相談、審査受付無料
地方銀行やネット銀行、変動金利や固定金利など、それぞれの特徴について納得いくまでご説明いたします。たくさんの金融機関の事前審査を無料で受け付けております。
●ライフプランニング無料相談(事前予約)
35年といった長期の住宅ローンや家賃より高い月々の返済額に、払っていけるかご心配になることもございます。ご希望の方には事前予約でライフプランニングの無料相談を受け付けています。生活レベルを変えずに節約する方法など、役立つ情報満載です。ぜひご相談ください。