須惠町大字新原 新築戸建
掲載情報更新日:2026年03月30日 次回更新予定日:2026年04月13日
- 2,988万円
-
- 借入ご希望金額
万円 - 借入期間
年 - 借入金利
% - 月々のお支払い金額
円
- 借入ご希望金額
※ 月々のお支払例は目安の試算となりますので、実際の金額とは異なる場合がございます。詳しくは店舗までお問合わせください。
- 糟屋郡須惠町大字新原
-
JR香椎線『新原』 徒歩6分 (約480m)
須惠町大字新原 新築戸建一戸建て | 物件情報
物件の設備
- 電気
- オール電化
- 公営水道
- 下水道
- 側溝
- 給湯
- 浄水器
- IHクッキングヒータ
- コンロ三口
- グリル
- カウンターキッチン
- システムキッチン
- ユニットバス
- 浴室暖房
- 浴室乾燥機
- 浴室に窓
- トイレ
- トイレ2箇所
- 温水洗浄便座
- 室内洗濯機置場
- 洗髪洗面化粧台
- ダウンライト
- 人感照明センサー
- 省エネ給湯器
- ダブルロックキー
- モニタ付インターホン
- 防犯カメラ
- 火災警報器/報知機
- LDK15畳以上
- 和室
- 全居室複層ガラス
- 24時間換気システム
- クローゼット
- 床下収納
- 全居室収納
- シューズボックス
- インナーバルコニー
物件の特徴
- 2階建
- フラット35Sに対応
物件詳細情報
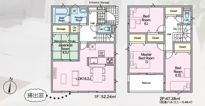
| 価格 | 2,988万円 | 間取り | 4LDK |
|---|---|---|---|
| 物件種別 | 新築一戸建て | ||
| 所在地 | 福岡県糟屋郡須惠町大字新原 1号棟 | ||
| アクセス |
|
||
| 建物面積 | 99.62㎡ | 駐車場 | あり |
| 築年月 | 2026年(令和8年)02月築 | 建築確認 | 第R07SHC110097号 |
| 建物構造 | 木造 2階建 | 工法 | |
| 主要採光 | バルコニー | ||
| 保証・評価 | |||
| 土地面積 | 219.57㎡(66.41坪) | 接道 | 東側(公道)幅 約4.0m |
| 私道 | セットバック | ||
| 地目 | 宅地 | 地勢 | |
| 権利 | 所有権 |
||
| 都市計画 | 非線引区域 |
用途地域 | 1種住居 |
| 建ぺい/容積率 | 60% / 160% | 土地国土法 | |
| 許可番号 | 建築基準法 | ||
| 法令制限 | 法22条区域 | ||
| 小学区 | 須恵第三小学校 徒歩19分 (約1500m) | 中学区 | 須恵中学校 徒歩7分 (約550m) |
| 現況 | 完工済 | 引渡 | 期日指定:2026年02月中旬 |
| その他費用 | |||
| 周辺環境 | セブンイレブン須恵新原店 徒歩5分 (約400m) わかすぎの杜保育園 徒歩7分 (約530m) 須恵中学校 徒歩7分 (約550m) 泰平病院 徒歩10分 (約790m) 西日本シティ銀行 須恵支店 徒歩11分 (約870m) トレードマート 須恵店 徒歩10分 (約790m) 須恵町役場 徒歩11分 (約830m) ファッションセンターしまむら 宇美店 徒歩23分 (約1830m) ファミリーマート 大賀ドラッグストア 宇美店 徒歩23分 (約1770m) 須恵第三小学校 徒歩19分 (約1500m) |
||
| 備考 | |||
| 物件番号 | 4484446 | 取引態様 | 媒介 |
取扱店舗情報
ハウスドゥ 福岡流通センター 有限会社セゾン 店舗詳細ページへ
| 電話番号 | 092-260-7722 |
|---|---|
| 所在地 | 〒813-0034 福岡県福岡市東区多の津4丁目9-1 103 |
| 営業時間 | 9:00~19:00 |
| 定休日 | 年末年始、GW、お盆休み |
| 宅建免許番号 | 福岡県知事(1)第20006号 |
| アクセス | 店舗への地図はこちら |

来店ご予約
福岡県糟屋郡須惠町で価格が似ている物件はこちら
- 福岡県
マイページ物件数 - 8,670件
最近見た物件
-
-

-
- 土地
- 1,098万円
-
加古川市山手2丁目
-
JR加古川線神野
-
-
-

-
- 新築一戸建て
- 2,698万円
-
熊本市南区城南町舞原
-
JR三角線富合
-
-
-

-
- 中古一戸建て
- 3,380万円
-
船橋市習志野台8丁目
-
京成電鉄松戸線習志野
-
福岡県新築一戸建て新着物件
-
-

-
- 新築一戸建て
- 3,699万円
-
太宰府市石坂2丁目
-
西鉄太宰府線西鉄五条駅
-
-
-

-
- 新築一戸建て
- 4,430万円
-
糟屋郡宇美町明神坂1丁目
-
JR香椎線新原駅
-
-
-

-
- 新築一戸建て
- 3,788万円
-
糟屋郡須惠町大字須惠
-
JR香椎線須恵駅
-
-
-

-
- 新築一戸建て
- 3,588万円
-
糟屋郡須惠町大字須惠
-
JR香椎線須恵駅
-
-
-

-
- 新築一戸建て
- 3,488万円
-
糟屋郡須惠町大字須惠
-
JR香椎線須恵駅
-
-
-

-
- 新築一戸建て
- 3,188万円
-
福津市若木台6丁目
-
JR鹿児島本線東福間駅
-
-
-

-
- 新築一戸建て
- 3,188万円
-
福津市若木台6丁目
-
JR鹿児島本線東福間駅
-
- お近くの店舗を探す
-
おすすめ物件
-
-

-
- 新築一戸建て
- 4,198万円
-
福岡市南区弥永2丁目
-
JR博多南線博多南
-
-
-

-
- 新築一戸建て
- 3,998万円
-
北九州市小倉北区皿山町
-
JR日豊本線南小倉
-
-
-

-
- 新築一戸建て
- 3,298万円
-
北九州市小倉南区中貫2丁目
-
西鉄バス貫入口停
-
-
-

-
- 新築一戸建て
- 3,098万円
-
宗像市徳重
-
JR鹿児島本線教育大前
-
-
-

-
- 新築一戸建て
- 3,699万円
-
福津市福間南3丁目
-
JR鹿児島本線福間
-
-
-

-
- 新築一戸建て
- 3,998万円
-
北九州市小倉北区三郎丸3丁目
-
北九州高速鉄道片野
-
-
-

-
- 新築一戸建て
- 3,899万円
-
福岡市南区皿山1丁目
-
西鉄天神大牟田線高宮
-
-
-

-
- 新築一戸建て
- 3,598万円
-
宗像市原町
-
JR鹿児島本線東郷
-
-
-

-
- 新築一戸建て
- 4,788万円
-
福岡市南区警弥郷2丁目
-
JR博多南線博多南
-
-
-

-
- 新築一戸建て
- 3,498万円
-
宗像市原町
-
JR鹿児島本線東郷
-




































