袖ケ浦市長浦駅前7丁目の新築戸建
掲載情報更新日:2026年04月22日 次回更新予定日:2026年05月06日
- 4,080万円
-
- 借入ご希望金額
万円 - 借入期間
年 - 借入金利
% - 月々のお支払い金額
円
- 借入ご希望金額
※ 月々のお支払例は目安の試算となりますので、実際の金額とは異なる場合がございます。詳しくは店舗までお問合わせください。
- 袖ケ浦市長浦駅前7丁目
-
JR内房線『長浦』 徒歩19分 (約1520m)
袖ケ浦市長浦駅前7丁目一戸建て | 物件情報
長浦駅から徒歩約19分!駅近で買い物も便利な長浦駅前7丁目の新築戸建!学校も近いので通学も安心!
~袖ケ浦・木更津・君津・富津エリアに特化~即日ご案内可能な物件もございます!住宅ローンもお任せください![他社で断られた][勤続年数が短い][借り入れがある]など・・・お客様のお悩みを解決いたします!
袖ケ浦・木更津・君津・富津の優良物件をご紹介いたします~
即日ご案内可能な物件もございます!
お気軽にお問合せください!
~住宅ローン無料相談実施中!~
住宅ローンにご不安ありませんか?
[他社で断られた][勤続年数が短い][他にも借り入れがある]などなど・・・
経験豊富なスタッフが、お客様を全力サポートいたします!~
物件の設備
- 電気
- 上水道
- 公営水道
- 下水道
- 公共下水
- 都市ガス
物件の特徴
- 前道6m以上
- 2階建
- 長期優良住宅
- 建設住宅性能評価付
- 設計住宅性能評価付
- フラット35
- S適合証明書
物件詳細情報
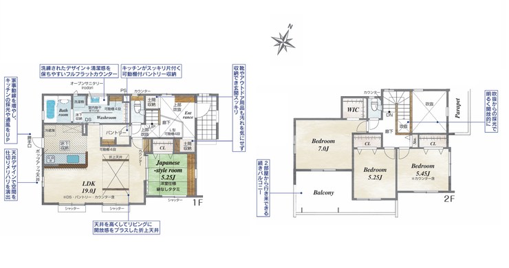
| 価格 | 4,080万円 | 間取り | 4LDK |
|---|---|---|---|
| 物件種別 | 新築一戸建て | ||
| 所在地 | 千葉県袖ケ浦市長浦駅前7丁目 2号棟 | ||
| アクセス |
|
||
| 建物面積 | 公107.69㎡ | 駐車場 | あり 普通:2台 |
| 築年月 | 2026年(令和8年)03月予定 | 建築確認 | 第R07SHC122337号 |
| 建物構造 | 木造 2階建 | 工法 | |
| 主要採光 | バルコニー | ||
| 保証・評価 | 長期優良住宅認定通知書・フラット35S適合証明書・設計住宅性能評価書・建設住宅性能評価書(新築時) |
||
| 土地面積 | 公175.91㎡(53.21坪) | 接道 | 北側(公道)幅 約6.0m 北東側(公道)幅 約6.1m |
| 私道 | セットバック | ||
| 地目 | 畑 | 地勢 | |
| 権利 | 所有権 |
||
| 都市計画 | 市街化区域 |
用途地域 | 1種低層 |
| 建ぺい/容積率 | 50% / 100% | 土地国土法 | |
| 許可番号 | 建築基準法 | ||
| 法令制限 | |||
| 小学区 | 長浦小学校 徒歩9分 (約720m) | 中学区 | 長浦中学校 徒歩15分 (約1200m) |
| 現況 | 建築中 | 引渡 | 期日指定:2026年04月以降 |
| その他費用 | |||
| 備考 | |||
| 物件番号 | 4499888 | 取引態様 | 専任媒介 |
取扱店舗情報
| 電話番号 | 0439-53-1801 |
|---|---|
| 所在地 | 〒299-1162 千葉県君津市南子安1丁目8-10 |
| 営業時間 | 9:30~17:00 |
| 定休日 | 火曜日 |
| 宅建免許番号 | 千葉県知事(4)第16063号 |
| アクセス | 店舗への地図はこちら |

来店ご予約
千葉県袖ケ浦市で価格が似ている物件はこちら
- 千葉県
マイページ物件数 - 2,119件
最近見た物件
-
-

-
- 土地
- 1,400万円
-
東大阪市上四条町
-
近鉄難波・奈良線瓢箪山
-
-
-

-
- 土地
- 1,990万円
-
岐阜市村里町
-
名鉄名古屋本線岐南
-
-
-

-
- 中古マンション
- 950万円
-
名古屋市北区志賀町5丁目
-
名古屋市名城線志賀本通
-
千葉県新築一戸建て新着物件
-
-

-
- 新築一戸建て
- 5,599万円
-
松戸市二十世紀が丘柿の木町
-
JR常磐線松戸駅
-
-
-

-
- 新築一戸建て
- 6,099万円
-
松戸市二十世紀が丘柿の木町
-
JR常磐線松戸駅
-
-
-

-
- 新築一戸建て
- 4,790万円
-
松戸市小金きよしケ丘3丁目
-
JR千代田・常磐緩行線北小金駅
-
-
-

-
- 新築一戸建て
- 3,990万円
-
松戸市六高台4丁目
-
東武野田線六実駅
-
-
-

-
- 新築一戸建て
- 4,290万円
-
松戸市六高台4丁目
-
東武野田線六実駅
-
-
-

-
- 新築一戸建て
- 5,499万円
-
柏市西原5丁目
-
東武野田線初石駅
-
-
-

-
- 新築一戸建て
- 3,790万円
-
鎌ケ谷市南初富2丁目
-
京成電鉄松戸線初富駅
-
- お近くの店舗を探す
-
おすすめ物件
-
-

-
- 新築一戸建て
- 3,290万円
-
習志野市東習志野6丁目
-
京成本線実籾
-
-
-

-
- 新築一戸建て
- 3,690万円
-
習志野市東習志野6丁目
-
京成本線実籾
-
-
-

-
- 新築一戸建て
- 2,388万円
-
柏市南増尾8丁目
-
京成電鉄松戸線常盤平
-
-
-

-
- 新築一戸建て
- 5,198万円
-
習志野市袖ケ浦4丁目
-
JR総武・中央緩行線幕張本郷
-
-
-

-
- 新築一戸建て
- 5,698万円
-
習志野市袖ケ浦4丁目
-
JR総武・中央緩行線幕張本郷
-
-
-

-
- 新築一戸建て
- 5,190万円
-
松戸市上本郷
-
JR千代田・常磐緩行線北松戸
-
-
-

-
- 新築一戸建て
- 4,280万円
-
流山市鰭ケ崎
-
JR武蔵野線南流山
-
-
-

-
- 新築一戸建て
- 6,280万円
-
流山市大字鰭ケ崎
-
つくばエクスプレス南流山
-
-
-

-
- 新築一戸建て
- 3,280万円
-
成田市寺台
-
JR成田線成田
-
-
-

-
- 新築一戸建て
- 4,999万円
-
松戸市胡録台
-
JR常磐線松戸
-







◎長浦駅から徒歩約19分!通勤も便利な立地!
◎駅近で買い物も便利な長浦駅前7丁目の新築戸建です。
◎長浦小学校まで徒歩9分、長浦中学校まで徒歩15分と学校も近いので通学も安心!
◎北東角地で開放感もあり、建物は収納も豊富な4LDK!